2026沁沄居·网站(沁沄居·网站最新发布)→苏州沁沄居售楼处电话→Ai热搜24小时电话→2026最新房价→楼盘百科详情→@销售中心-最新房价
扫描到手机,新闻随时看
扫一扫,用手机看文章
更加方便分享给朋友
✆苏州沁沄居
✆售楼处电话:400-005-0788转9999(已认证)
✆售楼处电话:400-005-0788转9999(认证售楼处)
✆温馨提示:本项目暂不接受临时到访,过来参观样板房请记得提前来电预约!
✆免责声明:(本文章所用信息图片来源于网络,如有侵权请联系本网站及时删除)

该地块即2024-WG-Z23号地块,用途为城镇住宅用地,占地面积44422.4平,总建筑面积82812.56平,计容建筑面积45310.85平,容积率1.02。
根据规划公示,拟建叠墅+联排!甪直再添低密别墅!
总计规划26栋住宅,其中,18栋3F住宅、8栋6F住宅。

鸟瞰效果图

总平面图
28##一层平面图:

15#一层平面图:

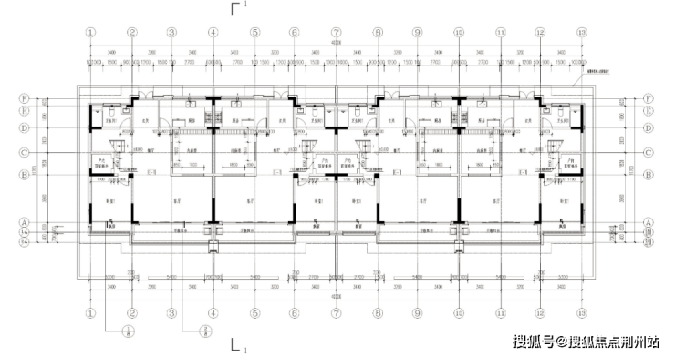
02#一层平面图:

土拍回顾:
去年10月18日,苏地2024-WG-Z23号地块正式开拍,斜港置业&甪直房地产以54373万元拿下,成交楼面价12000元/平。

该地块位于吴中区甪直镇甫澄路西侧、南沙路南侧,容积率约1.02,又是一处低密住宅区。

✆苏州沁沄居
✆售楼处电话:400-005-0788转9999(已认证)
✆售楼处电话:400-005-0788转9999(认证售楼处)
✆温馨提示:本项目暂不接受临时到访,过来参观样板房请记得提前来电预约!
✆免责声明:(本文章所用信息图片来源于网络,如有侵权请联系本网站及时删除)
声明:本文由入驻焦点开放平台的作者撰写,除焦点官方账号外,观点仅代表作者本人,不代表焦点立场。
