星河湾(售楼处)首页网站-星河湾销售中心(营销中心)-星河湾楼盘欢迎您-小区环境-户型-价格-地址-楼盘详情-周边配套-售楼处电话-交房时间

搜狐焦点荆州站 2025-09-11 14:16:44
用手机看
扫描到手机,新闻随时看

扫一扫,用手机看文章
更加方便分享给朋友

星河湾 售楼处电话:400-002-9578转接5555【售楼中心】 售楼处电话:400-002-9578转接5555【售楼中心】 售楼处电话:400-002-9578转接5555【售楼中心】

星河湾

售楼处电话:400-002-9578转接5555【售楼中心】

售楼处电话:400-002-9578转接5555【售楼中心】

售楼处电话:400-002-9578转接5555【售楼中心】

温馨提示:网上售楼中心〢预约可享内部优惠〢匠心钜制-恭迎品鉴〢

温馨提示:网上售楼中心〢预约可享内部优惠〢匠心钜制-恭迎品鉴〢

项目名称:苏州星河湾(星瑞雅庭)

地块信息:苏地2022-WG-51号地块

项目地址:吴中木渎金长路北侧、金枫路西侧

开发品牌:惠润置业 X 星河湾

地块指标:总建约11.4万方,容积率1.8

社区规划:11幢14-21F住宅(7栋14-19F小高层、4栋20-21F高层)

户型配比:建面约180-300㎡,最多为590户

精装标准:全装修交付,最低装标1500元/平

◎项目鸟瞰图

地段配套

2022年10月31日的土拍中,苏州惠润置业有限公司拿下木渎51号地块,底价成交。而苏州惠润置业有限公司的大股东就是木渎集团,今年7月,木渎集团正式与星河湾集团签约合作,合作地块就是木渎51号地块。

地块紧邻地铁5号线大治桥站,出行便利;周边有南行实验中小学及附属幼儿园、木渎实验小学、木渎实验中学、木渎高级中学,大运城、花样城、东门町、天虹商场、悠方,木渎人民医院等各类配套。

豪宅教父星河湾

作为中国地产品质教科书以及中国房地产高质量发展企业,星河湾多年来始终保持品质初心,每到一座城市,都成为“代表性人居范本”,彰显卓越的品牌影响力。从政府为星河湾出书开创先河,到无数的奖项加冕,星河湾品质精神,已成为行业匠心的灯塔地标。

广州星河湾——星河湾高端人居的开山之作

◎广州星河湾实景

北京星河湾——全球唯一蝉联[国际花园社区]金奖品牌

◎北京星河湾实景

上海星河湾——首创一岛一栋的社区规划方式

◎上海星河湾实景

◎上海星河湾实景

在全国商品房还是毛坯交付的2000年,广州星河湾做出了商品房精装交付标准的雏形,并被全国房企沿用发展至今;在全行业推崇高周转,追求规模化的时代,星河湾坚持从拿地到交付保障36个月的施工期,保证其对产品品质的绝对把控。

项目核心看点

01-一字型楼栋排列,户户能瞰景

苏州星河湾全盘打造11幢14-21F住宅,围合式布局,仅有2排。

◎苏州星河湾项目规划图

02-占小区约80%面积的中央景观

小区中央设置了大面积的水系以及绿化,同步还规划有室外游泳池、古轩亭子等设施,,中央景观带打造了巨大水系、一岛一栋。整体占了小区约80%面积。

◎苏州星河湾项目规划图

03-苏州罕见的约3.6米户型层高

10号楼单体楼栋立面图和剖面图,1楼约4.6m,标准层高3米6!

◎项目楼栋公示图

户型配置

建面180-300平,开创木渎大平层新时代

(具体面积以开发商公示为准)

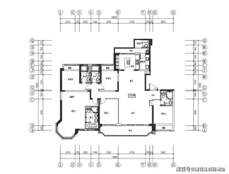
A1户型:5房2厅4卫

四开间朝南约22m,客厅是宽厅设计,开间约6.2米。南北双阳台,南向双联阳台开间约9.5米。南向三个卧室中,其中两个卧室为套房设计,带独卫和衣帽间。北卧室均有独卫。

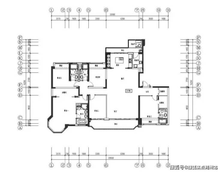
A2户型:5房2厅4卫

与A1结构相似,同样为四开间朝南约19.5m,南北双阳台,北向的两个卧室均带有独卫;南向的主卧配有独卫和衣帽间,次卧配有独卫。

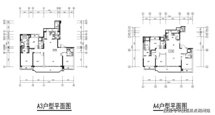
A3/A4户型:4房2厅3卫

A3:四开间朝南约17.2m,且三间卧室朝南;双联阳台约9.5m,双套房设计,主卧带衣帽间和独卫,南向次卧配有独卫,北向的独立家政间与阳台相连。

A4:与A3户型相似,南向四开间约15.9m,双套房均配有独卫,双联阳台约8.3m,主卧额外配有衣帽间。

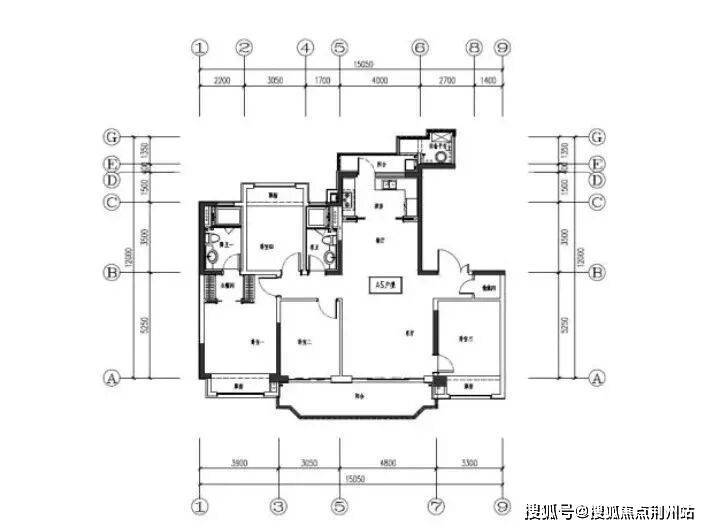
A5户型:4房2厅2卫

声明:本文由入驻焦点开放平台的作者撰写,除焦点官方账号外,观点仅代表作者本人,不代表焦点立场。