南京江海和鸣营销中心(南京江海和鸣售楼处中心)南京江海和鸣小区欢迎您-周边环境-户型-价格-地址-楼盘详情-户型配套-售楼处电话-交房时间

搜狐焦点荆州站 2025-10-07 13:09:16
用手机看
扫描到手机,新闻随时看

扫一扫,用手机看文章
更加方便分享给朋友

🌈南京江海和鸣售楼处电话☎️400-002-9578转接5555(专人接听) 🌈南京江海和鸣营销中心电话:☎️400-002-9578转接5555【营销中心】 🌈温馨提示:拨打400电话,听到嘀声后,输入分机号5555即可!

🌈南京江海和鸣售楼处电话☎️400-002-9578转接5555(专人接听)

🌈南京江海和鸣营销中心电话:☎️400-002-9578转接5555【营销中心】

🌈温馨提示:拨打400电话,听到嘀声后,输入分机号5555即可!

江北CBD江海和鸣国庆公开售楼处,到底怎么样,今天上午去看了一下~

现在各行各业都不容易,都非常卷,现在各家开发商卷的不行,都想做出好产品出来,展示给客户,小区虽然只有四栋楼,园林景观做的还挺丰富的;

小区一共四栋住宅,前面南边两栋是7层洋房,建面139平四室两卫,户型图如下图所hi:

要么露台在东西边,是L型转角露台,露台会比较大一些,要么露台朝南,一个在主卧南边,一个在玄关南次卧南边,也都是和阳台相通的,面积不算大,仔细看户型图就知道,露台与阳台相比,机会一样大,没有凸出去太多,不会存在隐私性问题;

我也到L型转角露台实体样板间看了一下,样板家做的是三室两卫,客厅那个位置的房间没有做出来,所以显得客厅非常大;

洋房是类一梯一户,采用的是双开门电梯,如下图所示:

电梯

电梯出来,其中一户,电梯出来,这都是自家空间

不过是没有消防门的,电梯边上有一个小的过道到另外一户,过道如下图所示

🌈南京江海和鸣售楼处电话☎️400-002-9578转接5555(专人接听)

🌈南京江海和鸣营销中心电话:☎️400-002-9578转接5555【营销中心】

🌈温馨提示:拨打400电话,听到嘀声后,输入分机号5555即可!

通过过道,就是另外一户,也就是样板间,子母门入户,外开门

我觉得这个设计也能接受,算是一梯一户,隔壁的三代宅花语天境两梯两户,中间是空的,没有任何遮挡,所以就差很多了;

入户门进去就是一个入户玄关

右边就是一个朝南的次卧

客厅,客厅还可以做一个房间,样板间没有做

阳台

餐厅

厨房

厨房北边,赠送一个设备平台,可以放洗衣机

站在外面,看北边的设备平台

朝北客卫

朝北次卧

我们来看看东边的L型转角露台

从阳台过去,南边的露台

南边拐到东边的露台

主卧可以看到露台,都是玻璃门,露台可以看到主卧的一切东西,隐私性差,所以玻璃内置百叶窗,起到遮挡效果,或者你可以拉上窗帘;

🌈南京江海和鸣售楼处电话☎️400-002-9578转接5555(专人接听)

🌈南京江海和鸣营销中心电话:☎️400-002-9578转接5555【营销中心】

🌈温馨提示:拨打400电话,听到嘀声后,输入分机号5555即可!

主卧的卫生间

整体看下来,也不是那么的大,大家都在宣传得房率100+%,其实真实的得房率和三代宅同样的产品差不多,唯一多的是设备平台和露台;

洋房样板间放在四楼,看江景还差点意思,可能今天天气不好的原因吧,南边还有一块商办用地,总高不高,但是也会有点遮挡前面的洋房的,只能遮挡某个角度而已,不过我觉得问题不大吧

139实体样板间视频:

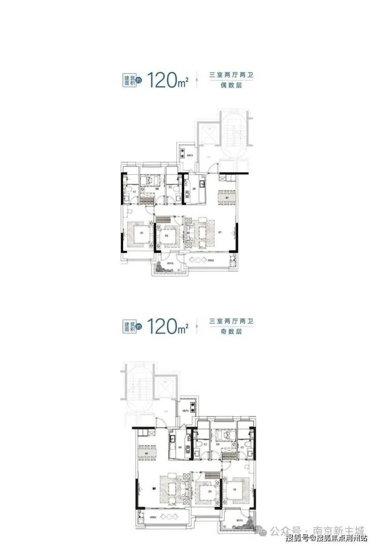
如果想要更好的江景视野,可以看看后面两栋17层的小高层,买7楼以上,我觉得江景视野都非常不错的,全是120平三室两卫户型,如下图所示:

隐私性会差一些,如下图所示:

给大家看看实景

120平做的也是类一梯一户的,中间有消防门

🌈南京江海和鸣售楼处电话☎️400-002-9578转接5555(专人接听)

🌈南京江海和鸣营销中心电话:☎️400-002-9578转接5555【营销中心】

🌈温馨提示:拨打400电话,听到嘀声后,输入分机号5555即可!

120平户型,露台要么是东西边的L型转角露台,这个露台是主卧独享的,阳台是过不去的;还有一种露台在朝南的次卧,阳台可以通过去的;最后一种是在主卧的南边,也是主卧独享的露台,不清楚的看户型图就懂了;

每一栋都做了架空层泛会所,局部地方做了中央空调,如下图所示:

🌈南京江海和鸣售楼处电话☎️400-002-9578转接5555(专人接听)

🌈南京江海和鸣营销中心电话:☎️400-002-9578转接5555【营销中心】

🌈温馨提示:拨打400电话,听到嘀声后,输入分机号5555即可!

声明:本文由入驻焦点开放平台的作者撰写,除焦点官方账号外,观点仅代表作者本人,不代表焦点立场。