青岛金茂璞园逸世售楼处电话→金茂璞园逸世售楼中心首页网站→金茂璞园逸世售楼盘百科详情→24小时电话!
扫描到手机,新闻随时看
扫一扫,用手机看文章
更加方便分享给朋友
青岛金茂璞园逸世
售楼处电话400-002-9578转接3333(已认证)
营销中心电话400-002-9578转接3333【售楼中心】
营销中心电话400-002-9578转接3333【售楼中心】
温馨提示:售楼中心〢预约尊享1V1品鉴礼遇〢匠心钜制-恭迎品鉴〢
看看青岛这个项目金茂璞逸世园,提供了居住松弛感
青岛400万+的楼盘不一定有它具备的松弛感!而这个盘只有一半不到的总价!
先看看公区和立面:
无边际泳池,四点半学堂、社区便利店、绪风茶室、儿童活动中心、棋牌室、健身区等,张村河500万起的新楼盘有的,这个盘也具备。
这个从入户大堂泛会所延伸出来的“灰空间”,特别吸引人,尤其是光线和水流交错的感觉,特别有意境。
青岛金茂璞园逸世
售楼处电话400-002-9578转接3333(已认证)
营销中心电话400-002-9578转接3333【售楼中心】
营销中心电话400-002-9578转接3333【售楼中心】
灰空间的作用就是过渡和融合,将景观和会所巧妙过渡。
像这种活动空间,不仅适用于业主休闲,还有一些从事文创、艺术职业的业主可以在此办公。不用出社区,业主皆可体验到春夏秋冬的四时风景。

这个项目的外立面大概使用的是铝板线条和水包砂。
别说,这个外立面材质看起来跟张村河的崂山华润悦府差不多,可价格得差3倍还多。
项目的底座使用玻璃、金属和类似石材的陶板,酒店化归家感给足。
建筑拔高约50CM进行挑檐设计,保障采光的同时,让整个建筑变得更为轻盈柔和。
再看看景观:

除了消防登高面外,其他地方栽种了茂密的高大乔木。
青岛金茂璞园逸世
售楼处电话400-002-9578转接3333(已认证)
营销中心电话400-002-9578转接3333【售楼中心】
营销中心电话400-002-9578转接3333【售楼中心】
优秀的景观离不开“在地性”,更离不开建筑协调性,在此基础上铺设树木、置石、水系和结构元素。
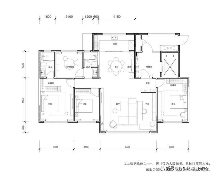
接下来,咱们必须看看户型:
项目建面143-158-184㎡,顶楼还有带露台平层。
143㎡端厅户型:客厅面宽可达9米,采光面更足。
关键是,入户的电梯厅可作为家政间,降低了公摊。
样板间内,洗衣机和收纳柜都放在了这个空间,对女性业主非常利好。
158㎡、184㎡宽厅元宝户型,同样带有“家政间”的电梯厅,公摊更小。
158㎡四房两厅两卫:
184㎡的3+X户型,实现双主卧,而且卫生间全明:
周围环境:胡Sir拍了板块内的两张照片,大概能体现周围环境带给业主的“松弛感”。
一张是年轻情侣欣赏日落的曼妙时光;一张是中年邻居们跳广场舞,有位女士把爱狗放之于桥墩。
多彩的夜幕时刻,被胡Sir记录下来。
青岛金茂璞园逸世
售楼处电话400-002-9578转接3333(已认证)
营销中心电话400-002-9578转接3333【售楼中心】
营销中心电话400-002-9578转接3333【售楼中心】
温馨提示:售楼中心〢预约尊享1V1品鉴礼遇〢匠心钜制-恭迎品鉴〢
免责声明:【本文所用信息图片来源于网络,如侵权请联系本网站及时删除】
声明:本文由入驻焦点开放平台的作者撰写,除焦点官方账号外,观点仅代表作者本人,不代表焦点立场。
