无锡华侨城雲湖别院官方售楼处电话(无锡华侨城雲湖别院)首页官方网站-无锡华侨城雲湖别院营销中心欢迎您-楼盘详情·最新价格-户型图-容积率@2026售楼处
扫描到手机,新闻随时看
扫一扫,用手机看文章
更加方便分享给朋友
无锡·云湖别院售楼处电话▓:400-005-0788转接4444(售楼处已认证)
无锡·云湖别院营销中心电话▓:400-005-0788转接4444【营销中心】
温馨提示:售楼中心〢预约尊享1V1品鉴礼遇〢匠心钜制-恭迎品鉴〢
免责声明:本文所用信息图片来源于网络,如侵权请联系本网站及时删除
无锡·云湖别院是华侨城在无锡经开区打造的高端住宅项目,以下是关于该项目的详细介绍
一、项目基础情况
【备案名】畅意雅院
【项目板块】经开芯 · 11平方公里国际示范区
【项目地址】经开区震泽路与南湖大道交汇处
【 容积率 】约1.7
【得房率】约78.5-82.5
【楼间距】约80米
【占地面积】约6.85万方
【车位配比】约1:2.2
【产品类型】A区8栋叠墅,约126户,总高6层、B区14栋小高层,约559户,总高16-17层
一梯一户,小高层、叠墅全部精装交付!
【产品面积】130㎡、152㎡、183㎡墅境小高层;180-210-310㎡艺境叠墅
平层层高3米 叠墅层高3.1米
上叠南露台约30㎡
中间院子约60㎡,边院约120㎡
【交房时间】2025年12月
外立面是一体板、铝板、玻璃
【物业费】3.4元一平
【物业公司】华侨城物业旗下高端物业服务品牌—华·管家

二、央企华侨城,38年优质生活创想家
华侨城,1985年成立于深圳特区,38年来,秉承“优质生活创想家”品牌理念,持续推进产品创新升级、丰富产品业态,已形成以文化、旅游、房地产、电子科技为主业的发展格局,业务遍及全国百余座城市以及全球多个国家和地区。目前,在境内外拥有华侨城A、深康佳、云南旅游、华侨城(亚洲)多家上市公司;位列全国文化企业30强,中国旅游集团20强,全球主题公园集团三强,位居亚洲第一。代表开发项目:欢乐谷、世界之窗、OCAT、华夏艺术中心、何香凝美术馆。
华侨城集团作为中国最早一批房地产开发企业之一,致力成为房地产行业的专业化开发商,助力城市发展。截至目前,华侨城已累计投资建设200多个精品项目。
代表项目:上海苏河湾、深圳波托菲诺、深圳国际会展中心、纯水岸......

上海苏河湾

上海宝格丽酒店

三、占位亿万级经开核芯,11平方公里国际示范区
经开区于无锡主城区南部,是无锡“一城两核”中重要一核,也是无锡市委、市政府所在地,经开区承载着无锡城市能级提升、产业发展引领、美好生活示范的时代使命,肩负未来10年无锡高质量发展重任。项目位于经开区重点打造的“11平方公里国际示范区”,且以项目为源点的2KM内汇聚了多座超能级城市地标。

城市地标聚集地
◎K11 Select购物艺术中心(规划)——香港新世界旗下,江苏首座K11 Select购物艺术中心
◎无锡中心(规划)——约450米无锡第一高,会面世界的城市天际线
◎无锡南站(规划)——无锡首个荟萃枢纽TOD,苏南半小时经济圈成型
◎奥体中心(在建)——拟投资约60亿,占地约80公顷,长三角最生态体育旅游业态标杆
◎无锡美术馆(在建)——总投资约4.5亿,无锡首个当代艺术作品馆
◎国际会议中心(在建)——总投资约41亿,无锡会展之都的起点,世界物联网永久地址
◎山姆会员店——全国第二家山姆会员旗舰店
雪浪小镇未来中心(在建)——26万方城市物联网生态集
*以上地标为无锡规划局规划与在建中项目,具体来源于政府报告及无锡官方网站



四、无锡进入“经开时间”,高能资源汇聚
项目所属经开核芯醇熟生活中心,集聚立体网络交通、国际学校、地标商圈等全方位资源。有未来可期的价值,也有当下可享的丰盛。
【优质教育】和风路幼儿园、和风路小学(在建)、规划中学、无锡狄邦文理学校(原南外国王)
【地标商圈】K11购物艺术中心(已签约)、海岸城、山姆会员商店、万象城
【便捷交通】地铁4号线博览中心站,无锡南站(规划)
【文体休闲】国际跆拳道中心、国际网球中心、少年宫、美术馆、耐克体育公园
五、无锡高品质住区
无锡为数不多的高品质标准住区,秉承了华侨城一贯的“在花园中建城市”规划理念,结合无锡城市自然文化特色,打造一座与城市共和的自然艺术社区。社区以江南至高礼遇的“院中园 园中院”,打造了“一轴六园”景观体验空间,让生活于此静隐入自然。

六、现代简约立面,值得经久细赏的品味
建筑立面采用现代简约风格,精良的立面选材,辅以细部香槟金设计,让建筑在区域内显得独具特色。


七、尊享社区会所,为无锡圈层另起一行
尊享国际会所,规划有泳池;私属健身空间;社区雅致瑜伽室;高定私宴厅等品味空间,在社区际遇同质圈层。


八、华·管家,酒店式高奢定制服务
华侨城物业,中国领先的综合物业管理服务供应商,首批获得国家物业管理一级资质企业、国家白金管家物业服务联盟会员。华侨城物业旗下高端物业服务品牌“华·管家”,以“臻于心、悦于家”的星级酒店级物业服务模式,让居者体验优质、尊贵、非凡的生活境界。

九、户型鉴赏
130㎡ 三室两厅两卫;得房率约79%
约6.6m开间宽厅;主卧套房约3.9m开间

152㎡四室两厅两卫;得房率约81%
约9.1m阔景大阳台

183㎡四室两厅三卫;得房率约83%
主卧套房约6m开间,独立双排衣帽间

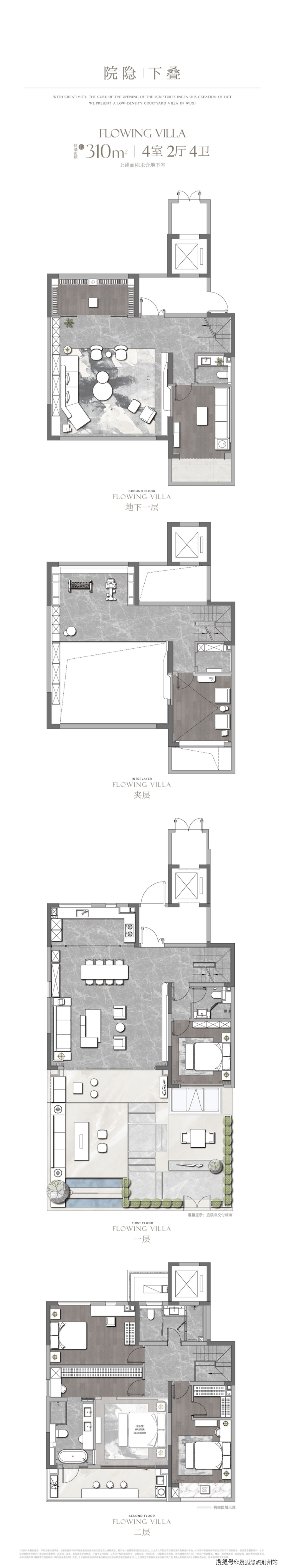
叠墅户型

中叠

下叠

无锡·云湖别院售楼处电话▓:400-005-0788转接4444(售楼处已认证)
无锡·云湖别院营销中心电话▓:400-005-0788转接4444【营销中心】
温馨提示:售楼中心〢预约尊享1V1品鉴礼遇〢匠心钜制-恭迎品鉴〢
免责声明:本文所用信息图片来源于网络,如侵权请联系本网站及时删除
声明:本文由入驻焦点开放平台的作者撰写,除焦点官方账号外,观点仅代表作者本人,不代表焦点立场。
