济南中海时光之境售楼处电话→户型→地址→【营销中心】济南中海时光之境最新价格→楼盘详情→最新销售动态
扫描到手机,新闻随时看
扫一扫,用手机看文章
更加方便分享给朋友
济南中海时光之境
售楼处电话400-002-9578转接3333(已认证)
营销中心电话400-002-9578转接3333【售楼中心】
营销中心电话400-002-9578转接3333【售楼中心】
温馨提示:售楼中心〢预约尊享1V1品鉴礼遇〢匠心钜制-恭迎品鉴〢
免责声明:【本文所用信息图片来源于网络,如侵权请联系本网站及时删除】
山东“百城名盘”活动持续发现山东“好房子”,本期我们聚焦济南市历下区中海时光之境项目,解读它的高品质内涵。

效果图

项目产品解读
今年以来,中海地产在山东楼市大放光彩,根据克而瑞统计,1-8月中海地产以80.4亿元成为全省销售业绩最高的房企。优秀的市场表现推动中海地产增加对山东核心城市的投资力度。
3月份中海地产与6家房企激战249轮、溢价近51%拿下济南市历下区盛福04地块。
6月份中海地产以32.7亿元的总价竞得被誉为“齐鲁一号地”的济南市历下区省博西地块,并刷新济南地价最高纪录。同期又以7.4亿元摘得青岛市西海岸新区城芯77亩住宅用地。
7月以来,中海地产又相继摘得济南济钢片区2宗宅地、青岛CBD核心区宅地。
中海地产在山东核心城市大手笔拿地,恰逢四代宅风潮,这一背景下,中海地产将盛福04地块打造成其在济南首个第四代住宅项目——中海时光之境。
示范区实景
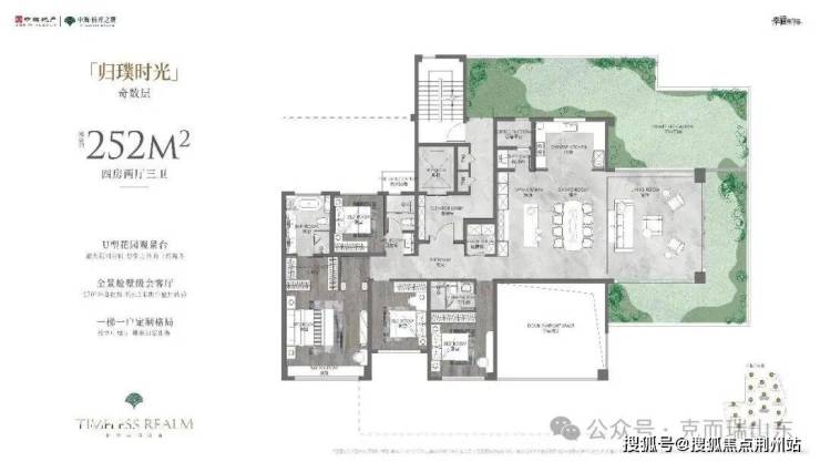
作为济南首个合规落地的第四代住宅,项目依托2025年济南计容新规政策支持,实现了“户户有花园”的空间革新,从自然融合、空间体验、场景拓展等多维度直接提升居住舒适度。

252m²户型样板间实景
第四代宅设计的核心目标之一,便是满足人与自然融合共生的心理需求。中海时光之境户户约6.2米层高的花园露台,相当于为业主在高空开辟了专属 “绿色空间”,可种植绿植、摆放休闲家具,让日常居住能直接接触自然景观,缓解高层住宅的 “疏离感”。
空中花园还可拓展空间尺度与功能,提升居住实用性。从中海时光之境的户型数据来看,不同面积段户型的空中花园均带有可观的赠送面积,如252㎡户型奇数层露台赠送约102㎡、偶数层约76㎡,155㎡户型奇数层露台赠送约16㎡、偶数层约13㎡,这些赠送空间直接提升得房率(最高达134%),让业主获得更多可自主支配的区域 —— 既可用作家庭休闲区,满足品茶、阅读等放松需求;也可作为亲子互动空间,或打造专属园艺区,打破传统住宅 “室内空间固定” 的局限,丰富居住场景。
252m²户型样板间实景
中海时光之境部分户型的空中花园搭配 270° 环幕全景舱设计(如 252㎡、210㎡户型),大面积露台与落地窗结合,视野开阔度远超传统高层住宅的封闭阳台,进一步提升居住的通透感与愉悦度。
济南中海时光之境
售楼处电话400-002-9578转接3333(已认证)
营销中心电话400-002-9578转接3333【售楼中心】
营销中心电话400-002-9578转接3333【售楼中心】
温馨提示:售楼中心〢预约尊享1V1品鉴礼遇〢匠心钜制-恭迎品鉴〢
免责声明:【本文所用信息图片来源于网络,如侵权请联系本网站及时删除】
声明:本文由入驻焦点开放平台的作者撰写,除焦点官方账号外,观点仅代表作者本人,不代表焦点立场。
