2025最新楼讯: 苏州【东吴序】售楼处电话-地址-房价-楼盘详情-24小时电话

搜狐焦点荆州站 2025-09-11 14:16:06
用手机看
扫描到手机,新闻随时看

扫一扫,用手机看文章
更加方便分享给朋友

苏州【东吴序】 ☎️售楼处电话:400-033-1899转接8888 【售楼中心】 💌 网上售楼中心〢安全通话隐藏真实号码〢一对一热情服务〢 ✅售户型图丨项目介绍丨最新房源丨周边配套丨详细解答〢营销中心✅

苏州【东吴序】

☎️售楼处电话:400-033-1899转接8888 【售楼中心】

💌 网上售楼中心〢安全通话隐藏真实号码〢一对一热情服务〢

✅售户型图丨项目介绍丨最新房源丨周边配套丨详细解答〢营销中心✅

东吴序,即苏地2024-WG-Z45号地块,位于吴中经开区长桥街道宝带西路南侧、龙西路西侧,1月8日由吴中建设以底价23443万元竞得,成交楼面价15040元/㎡

项目总建筑面积25919.37㎡,占地面积15586.8㎡,容积率为1.5

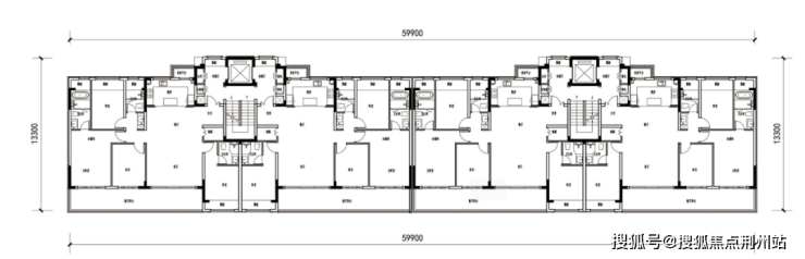
根据规划,项目拟建6幢3-8F住宅,共计78户,其中4幢3F联排2幢8F洋房8F洋房中1-2F为商业。

项目近期公布了建面约215㎡、建面约245㎡联排户型。

建面约245㎡联排,独立入户,南向面宽约11米,打破传统联排的局促感,餐客厅一体化中西双厨,还特别设置了南向老人套卧,日常起居便捷舒适。南向双套房设计其中一间连接超大露台,推窗即揽四季景致。

建面约215㎡联排,布局与上一户型相同,户型布局方正,后期方便业主改造,户型无面积浪费,实用性更强,功能布局更加合理,2F、3F均有露台赠送,真正做到有天有地有自然。

洋房户型暂未公布,根据规划来看,户型为4房2厅3卫设计,4开间朝南。客厅采用大宽厅设计,拉伸视觉尺度的同时拓展了活动空间,外接三联阳台,打破传统独立阳台的割裂感,收获超大观景区域,南向双套房设计,含独立衣帽间和卫生间多飘窗设计,有赠送面积。

项目位于吴中城南板块,周边生活配套比较成熟。

交通方面,项目西侧紧邻地铁2、3号线盘蠡路站,可快速通达全城,项目南面临近宝带西路连接吴东快速路,东面可接驳南环快速路,自驾出行也很便利。

商业方面,项目占据城南核心商圈,达丽丰购物中心、世茂广场龙湖东吴天街、海星生活广场等商业体环绕项目四周,涵盖购物、餐饮、娱乐等全业态。

教育方面,项目周边名校环伺,与吴中实验小学仅一河之隔,毗邻苏州外国语学校(吴中校区)、苏苑中学新校区,满足全学龄上学需求。

苏州【东吴序】

☎️售楼处电话:400-033-1899转接8888 【售楼中心】

💌 网上售楼中心〢安全通话隐藏真实号码〢一对一热情服务〢

✅售户型图丨项目介绍丨最新房源丨周边配套丨详细解答〢营销中心✅

声明:本文由入驻焦点开放平台的作者撰写,除焦点官方账号外,观点仅代表作者本人,不代表焦点立场。