2025武汉天创元萃(售楼处电话) 首页 -销售中心 - 户型 - 价格 - 地址 -楼盘详情 - 配套 - 电话 -武汉天创元萃交房时间
扫描到手机,新闻随时看
扫一扫,用手机看文章
更加方便分享给朋友
武汉天创元萃
售楼处电话▓:400-002-9578转接4444(已认证)
营销中心电话▓:400-002-9578转接4444【售楼中心】
温馨提示:售楼中心〢预约尊享1V1品鉴礼遇〢匠心钜制-恭迎品鉴〢
免责声明:本文所用信息图片来源于网络,如侵权请联系本网站及时删除
前一段时间我发了天创元萃的文章,很多粉丝咨询这个项目,前几天刚路过项目工地,发现小区大门施工已经基本成型了,预计很快就要面世了
整个项目的体量并不大,一共只有159套房源,啥概念,就相当于城投红树林1栋楼的量,属于日光的苗子,如果操盘操的好,搞不好想买还得找关系!
首先,小区位于武昌内环滨江,靠近武昌古城和黄鹤楼,走路到大成路也就1.2公里,距离华发外滩玺,过个马路,直线200米就是5号线昙华林站,地段没得说。
其二,由于黄鹤楼范围内限高,华发外滩玺限高80米,但是天创元萃离的更近,限高40米,所以天创元萃全部是10-13层的小高层形势,开发商叫小洋房,也没啥毛病,这种内环纯洋房类的产品,尤其是在滨江板块,真的非常少见,而且它的容积率只有2.0,非常难得,当然,唯一遗憾就是滨江板块无法看江,除了因为建筑低,还有就是农讲所地块的遮挡,该地块我看到也在动工了,估计很快也会出来。

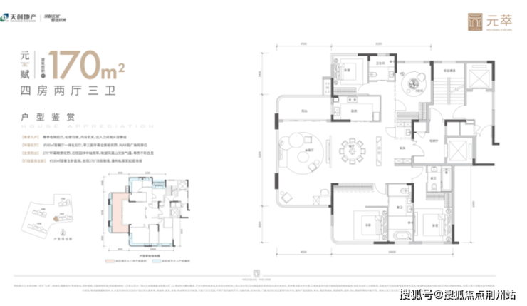
不看江,也注定了它不属于景观类产品,做不出景观溢价,它的产品定位就是偏市中心高性价比改善,户型面积段在127-170㎡,由于全部是2梯2户或1梯1户,它所有的户型都是南北通透,且是独梯独户设计,电梯厅私密性都非常好。
其中127平占比最大,一共7条腿,142平其次,有4条腿,而这两个户型,也是整个小区得房率最高的,预计在113%。170㎡一条边的,得房率大概在105%。 还有2条边分别为1号楼的130平和3号楼的142平东边户,它们都属于1梯1户,且总楼层在10层,加起来20套,目前还未公布户型图。

具体到产品设计,127平和142平格局基本一致,都是四房两厅三卫双套房,不过142平的开间更大,南向开间比127平宽3.2米,北向开间比127平宽3.4米,最大的区别体现在厨房和主卧开间上,其余的大横厅、 LDKB设计都一样,从户型来讲,功能差不多,但是142使用感受更好。

170做的有点类似全景仓的客厅,加上阳台,客厅面宽有9.2米,正对着中心园林,空间感会非常强,唯一遗憾是,有两个很窄的承重柱占据了一点空间,这个户型还有一个优势,就是几乎没有过道,且各功能分区自然界限也比较明确。当然,这几个户型都有一个问题,就是都存在暗卫,所幸不是主卫。

武汉天创元萃
售楼处电话▓:400-002-9578转接4444(已认证)
营销中心电话▓:400-002-9578转接4444【售楼中心】
温馨提示:售楼中心〢预约尊享1V1品鉴礼遇〢匠心钜制-恭迎品鉴〢
免责声明:本文所用信息图片来源于网络,如侵权请联系本网站及时删除
声明:本文由入驻焦点开放平台的作者撰写,除焦点官方账号外,观点仅代表作者本人,不代表焦点立场。
