上海保利珺园 (售楼处) 官方网站 - 保利珺园 销售中心 - 环境 - 户型 - 价格 - 地址 - 楼盘详情 - 配套 - 电话 - 交房时间 - 配套 - 电话 - 交房时间
扫描到手机,新闻随时看
扫一扫,用手机看文章
更加方便分享给朋友
上海保利•珺园售楼处电话▓:400-005-0788转接4444(售楼处已认证)
上海保利•珺园营销中心电话▓:400-005-0788转接4444【营销中心】
温馨提示:售楼中心〢预约尊享1V1品鉴礼遇〢匠心钜制-恭迎品鉴〢
免责声明:本文所用信息图片来源于网络,如侵权请联系本网站及时删除
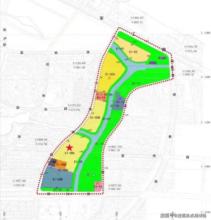
保利·珺园所在的杨浦新江湾的E1-08A地块,规划设计方案已经正式公示。
地块拟建6层洋房,以及3-4层别墅产品,两个产品东西排布,东侧为别墅,西侧为洋房。
纯粹的洋房+别墅,居住圈层十分统一。

今年9月3日,保利发展官微发布公告:保利发展与上海地产投资有限公司联手,通过上海联合产权交易所完成杨浦区新江湾社区E1-08A项目与余杭路项目股权转让竞价,确定为项目的受让方。
项目所在的E1-08A地块,容积率1.1,两面环水,毗邻城市副中心五角场;
周边汇聚复旦大学、复旦附中、上海音乐学院实验学校等全龄教育资源;
合生汇、江湾里等大型商业环伺,满足高端消费需求;
长海医院、市东医院等三甲医疗资源构筑健康屏障。尚浦领世、字节、叠纸、耐克大中华区总部等7000余家科创企业环伺,形成“产城人文”深度融合的第三代国际社区。

上海保利•珺园售楼处电话▓:400-005-0788转接4444(售楼处已认证)
上海保利•珺园营销中心电话▓:400-005-0788转接4444【营销中心】
温馨提示:售楼中心〢预约尊享1V1品鉴礼遇〢匠心钜制-恭迎品鉴〢
免责声明:本文所用信息图片来源于网络,如侵权请联系本网站及时删除
声明:本文由入驻焦点开放平台的作者撰写,除焦点官方账号外,观点仅代表作者本人,不代表焦点立场。
