2025【苏州湖西绿城凤栖东方】项目售楼处电话→地址→户型→价格→楼盘详情→苏州湖西绿城凤栖东方最新销售动态!
扫描到手机,新闻随时看
扫一扫,用手机看文章
更加方便分享给朋友
🌈苏州湖西绿城凤栖东方售楼处电话☎️400-002-9578转接5555(专人接听)
🌈苏州湖西绿城凤栖东方营销中心电话:☎️400-002-9578转接5555【营销中心】
🌈温馨提示:拨打400电话,听到嘀声后,输入分机号5555即可!
该项目即苏地2025-WG-Z01地块,所在位置十分优越。

占据一线独墅湖景,地块东侧为独墅湖,南侧正面独墅湖市政公园,属于独墅湖西岸沿线仅剩的为数不多的沿湖景观地块。
周围以低密墅区为主,北侧紧靠正荣国领小区,西侧一路之隔为泰禾金尊府。

根据规划公示显示,产品也是十分稀缺,该占地面积约2.6万㎡,地块容积率仅1.02,是板块稀缺的低密别墅地块,且含商业,其住宅更低密。
拟建16幢住宅,其中13幢为3F联排;3幢5F叠加,超大的尺度空间,期待值直接拉满。

🌈苏州湖西绿城凤栖东方售楼处电话☎️400-002-9578转接5555(专人接听)
🌈苏州湖西绿城凤栖东方营销中心电话:☎️400-002-9578转接5555【营销中心】
🌈温馨提示:拨打400电话,听到嘀声后,输入分机号5555即可!
叠加产品为5F,下叠为1-2层,上叠为3-4-5层,且层层递进式露台,上叠顶层还有整层露台空间设计,使用率相当高。

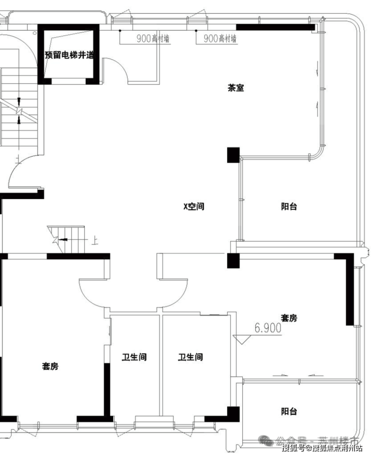
叠加户型方面,根据14#3层的平面图来看,分为中间户,和边户,两个面积,并且上叠首层为静区,与下叠2F静区相连,互不打扰。

上叠,三开间朝南,三个套房,其中南向两个套房,主卧套房连接南向阳台。

上叠东边户,四开间朝南,南向双套房,主卧套房连接阳台,此外,为东侧瞰湖预留了独立阳台,侧边阳台大大提高了室内采光和与自然的接触度。

🌈苏州湖西绿城凤栖东方售楼处电话☎️400-002-9578转接5555(专人接听)
🌈苏州湖西绿城凤栖东方营销中心电话:☎️400-002-9578转接5555【营销中心】
🌈温馨提示:拨打400电话,听到嘀声后,输入分机号5555即可!
联排为3F,根据8#公示的平面图来看,分为中间户和边户两个户型。2层带阳台,3层带大露台,全套房设计,实现家庭平权。


🌈苏州湖西绿城凤栖东方售楼处电话☎️400-002-9578转接5555(专人接听)
🌈苏州湖西绿城凤栖东方营销中心电话:☎️400-002-9578转接5555【营销中心】
🌈温馨提示:拨打400电话,听到嘀声后,输入分机号5555即可!
声明:本文由入驻焦点开放平台的作者撰写,除焦点官方账号外,观点仅代表作者本人,不代表焦点立场。
