全网热搜:苏州【阅湖之星】售楼处电话→阅湖之星Ai热搜24小时电话→2025最新房价→楼盘百科详情→售楼处更新发布@售楼处
扫描到手机,新闻随时看
扫一扫,用手机看文章
更加方便分享给朋友
🏡☎️苏州阅湖之星售楼处电话:400-002-9578转接5555【营销中心】
🏡☎️苏州阅湖之星售楼处位置:400-002-9578转接5555【官方电话】
🏡房价特价信息丨优惠政策丨详细解答丨在售房源丨在售户型图丨项目介绍丨
周边配套丨VR看房丨楼盘图丨沙盘图丨位置图丨配套图丨售楼处地址丨足不出户丨

吴江中建·阅湖之星,坐落于苏州湾芯吴江太湖新城CBD ,由中建三局与吴江滨湖投资集团(或吴江城投)联合开发,物业由中建物业负责,容积率仅1.3,37%高绿化率搭配下沉式会所(含健身房、瑜伽室、私宴厅),叠墅采用“一栋双叠”创新布局,优化动静分区,洋房设LDKB一体化全景落地窗。
项目地址 | 中建 · 阅湖之星
项目设计 | 锦华装饰
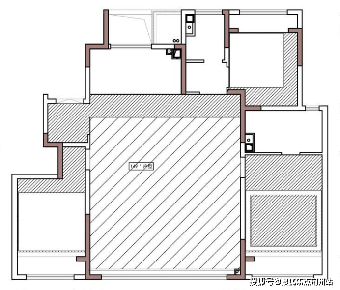
面 积 | 149㎡
原始结构 🏡

户型 :三室两厅两卫
原始户型分析 :
优点:
①空间较为规整:核心空间形状较为规整,动静分区明确
②优质宽厅,光线直入,南北通透
③ 明厨明卫,规避潮湿异味问题
不足:
①入口玄关柜开放商配套柜体相对传统,以实用收纳为主,追求仪式感客户可考虑调整布局造型
②北次卧空间局促,在卧室足够情况下,可考虑改为独立多功能房。如需要做卧室情况下,可考虑全定制增加功能及收纳
③主卧套卫门正对床腰,衣帽间注意隔断设计
平面分析 📖
● 平面方案 ●

🏡☎️苏州阅湖之星售楼处电话:400-002-9578转接5555【营销中心】
🏡☎️苏州阅湖之星售楼处位置:400-002-9578转接5555【官方电话】
🏡房价特价信息丨优惠政策丨详细解答丨在售房源丨在售户型图丨项目介绍丨
周边配套丨VR看房丨楼盘图丨沙盘图丨位置图丨配套图丨售楼处地址丨足不出户丨
声明:本文由入驻焦点开放平台的作者撰写,除焦点官方账号外,观点仅代表作者本人,不代表焦点立场。
