新盘必买:武汉城投绿城雲庐售楼处电话→武汉城投绿城雲庐Ai热搜24小时电话→2025最新房价→楼盘百科详情→售楼处更新发布@售楼处中心
扫描到手机,新闻随时看
扫一扫,用手机看文章
更加方便分享给朋友
🌈武汉城投绿城雲庐售楼处电话☎️400-002-9578转接5555(专人接听)
🌈武汉城投绿城雲庐营销中心电话:☎️400-002-9578转接5555【营销中心】
🌈温馨提示:拨打400电话,听到嘀声后,输入分机号5555即可!

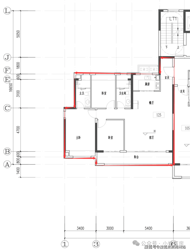
先看G5号楼,
2楼楼栋总面宽从41.2米增加到41.8米,总进深从16.6米增加到18.5米;户型面积从125、105、105、115平变为119、107、107、119平,户型内部设计有所变化;
原125平户型客厅阳台开间8.4米,现变为119平户型,阳台总开间7.2米,进深从1.4米增加到2.3米。
原105平户型现变为107平户型,客厅开间有所加大,阳台总开间由6.5米增加到6.9米,进深也是由1.4米增加到2.3米(部分区域)。
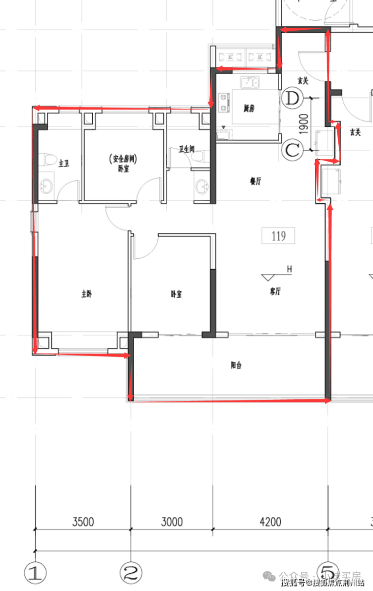
3-25层为一个标准,这也是楼栋主体,我们就以这个楼层的变化来看看户型具体怎么变
首先,户型面积跟2楼一样,也是西边户125平变为119平,中间户105平变107平,东边户115平变119平。
原西边户125平户型

新西边户119平米户型

客厅增加了S墙设计;
厨房以及主卫部分有所变化,其余部分布局基本保持一致;
面积上,由125平变为119平;
尺寸上,客厅开间由5.4米变为4.2米,阳台开间由8.4米变为7.2米,阳台进深由1.4米变为2.3米;主卧开间由3.4米变为3.5米,主卧进深由4.7米变为4.9米,主卫进深由3.1米变为2.7米,开间都为1.7米;整个厨房+餐厅+客厅(不包含阳台)的进深由8.4米变为9.65米。
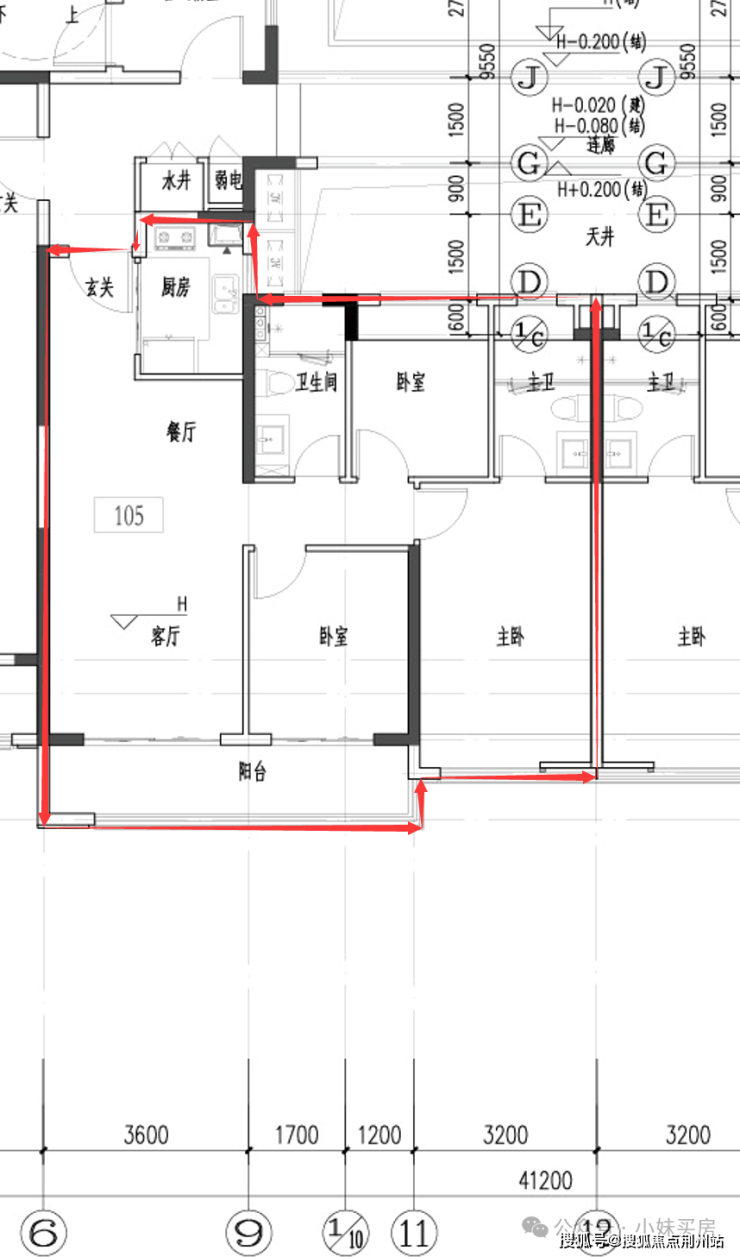
原105平米户型(中间户)

6栋高层,其中的1、2、3、5号楼已取证,其中1、3号楼整体备案价19297元/平,2号楼备案价18738元/平,5号楼备案价18712元/平,共计370套房源,均为毛坯备案价。
这里的5号楼就是上面调整规划的5号楼。
不过,绿城雲庐取证之后尚未正式对外开售,一个是规划调整,一个则是销售价格怎么定的问题。
项目其实早在2024年初就有开盘的消息,前期放风带装修售价1.8万左右,现在备案价变为毛坯,均价1.9万左右,很明显现在的售价会比之前带装修1.8万的价格要低。
其次就是光谷楼市现状了。
同为光谷东板块,已开售的四代住宅汉韵公馆,带装修均价1.95万左右,非四代住宅的宝业璞园毛坯特价能到1.7万,便宜点的还有万和光谷、万和竞界等,都是毛坯,并且从地段来说比绿城雲庐更为靠近光谷东中心。
进入2025年,光谷四代住宅供应井喷,目前已知的驿山高尔夫、深业泰然生物谷、招商天青府等均为四代住宅,也都是绿城雲庐的直接竞品,这对绿城雲庐的定价也有直接影响。
🌈武汉城投绿城雲庐售楼处电话☎️400-002-9578转接5555(专人接听)
🌈武汉城投绿城雲庐营销中心电话:☎️400-002-9578转接5555【营销中心】
🌈温馨提示:拨打400电话,听到嘀声后,输入分机号5555即可!
声明:本文由入驻焦点开放平台的作者撰写,除焦点官方账号外,观点仅代表作者本人,不代表焦点立场。
