武汉经发·凤栖蘭庭(售楼处) 首页 - 凤栖蘭庭销售中心 - 环境 - 户型 - 价格 - 地址 - 楼盘详情 - 配套 - 电话 - 交房时间 - 配套 - 电话 - 交房时间
扫描到手机,新闻随时看
扫一扫,用手机看文章
更加方便分享给朋友
武汉经发·凤栖蘭庭售楼处电话:400-002-9578转6666(已认证)
武汉经发·凤栖蘭庭售楼处电话:400-002-9578转6666【售楼中心】
温馨提示售楼中心〢预约尊享1V1品鉴礼遇〢匠心钜制-恭迎品鉴〢
温馨提示本项目暂不接受临时到访,过来参观样板房请记得提前来电预约!
高品质住宅作为各地新住宅建设标准的实施,武汉的楼盘从产品创新、建筑材料、施工品质、物业服务等方面,体现出精益求精的态度……已是未来住宅发展的必然趋势。
第四代住宅随着各地政策的推出,国内已展开对相关住宅产品的探索,不仅是建筑行业技术层面的迭代,同时也是各大房企的创新发展方向。
武汉第四代住宅,对露台、隐私露台与阳台占比、核心筒等三项进行专业论证研究,建立了一套垂直体系。汉韵公馆的空中花园,采用南向或东西向布局,奇偶交错,进深控制在3.6米以内。
住宅立面,正是选自楚建筑的线条制式、凤鸟纹、编钟云纹,手法简练飘逸,大有凤舞九天的艺术气质。
楼顶设计堪称点睛之笔,借鉴楚式双檐造型,层次丰富、错落有致,既提升了建筑的立体感,又彰显了独特的温润尊贵气质。在阳光照耀下,铝板与玻璃交相辉映,凤鸟纹与云纹若隐若现,整栋建筑仿佛焕发活力,倾诉着楚文化的深邃内涵与悠久历史。
规划了玻璃幕墙为主,配以铝板线条和金属漆打造的颜值派外立面,加上独特的弧形造型,质感十足。
为业主入住体验更好,露台花园也列入精装。绿化部分采用降板处理,配置自动灌溉系统,预留排水孔,绿植尽量选低矮、易打理、四季常绿,保证空中花园完成面相对统一;同时配置太阳能灭蚊灯,避免后期维护和蚊虫。
在错层的基础上,上下层的空中花园,使用绿化和半透栏板遮挡视线,避免对视的尴尬,并且,在上层住户的窗户前增加飘板,避免室内一眼看透,保证私密性。
与此同时,为了解决采光遮挡的隐患,中建壹品兵分两路,南侧和山墙侧交替设置边户的空中花园,减少对自身的采光影响,中间户的空中花园,设置区域排除主卧,进深控制在2.4m-2.9m之间,精细化模型测算,满足上层住户的采光需求。
这次专门邀请豪宅景观大咖山水比德 执笔,将项目自建的口袋公园与社区大门融合,60米长的赤红廊桥、汉宫屋顶的奢阔门楼,让业主从公园归家。
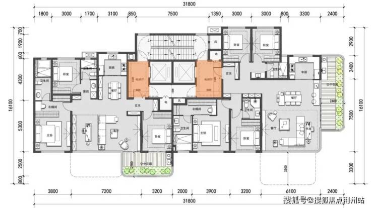
户型设计亮点:超高赠送面积,近乎零公摊,配备宽敞的露台、大阳台及多个飘窗;每户均享有私密花园,6米挑空露台花园为您的居住增添舒适度;室内空间通透,采用南向大开间设计,超高窗墙比例,巧妙奇偶错层布局。
武汉经发·凤栖蘭庭售楼处电话:400-002-9578转6666(已认证)
武汉经发·凤栖蘭庭售楼处电话:400-002-9578转6666【售楼中心】
温馨提示售楼中心〢预约尊享1V1品鉴礼遇〢匠心钜制-恭迎品鉴〢
温馨提示本项目暂不接受临时到访,过来参观样板房请记得提前来电预约!
免责声明(本文章所用信息图片来源于网络,如有侵权请联系本网站及时删除)
声明:本文由入驻焦点开放平台的作者撰写,除焦点官方账号外,观点仅代表作者本人,不代表焦点立场。
