(苏州鸿湖上官方售楼处) 电话 -苏州鸿湖上销售中心-环境 -户型 -价格 -地址 -楼盘详情 - 配套 - 电话 -交房时间 -配套 -电话 -交房时间
扫描到手机,新闻随时看
扫一扫,用手机看文章
更加方便分享给朋友
苏州鸿湖上售楼处电话▓:400-005-0788转接4444(售楼处已认证)
苏州鸿湖上营销中心电话▓:400-005-0788转接4444【营销中心】
温馨提示:售楼中心〢预约尊享1V1品鉴礼遇〢匠心钜制-恭迎品鉴〢
免责声明:本文所用信息图片来源于网络,如侵权请联系本网站及时删除
1、产品稀缺!3F合院+4代宅洋房!
根据规划公示显示,该地块将打造23幢3F合院以及6幢9F洋房,其中洋房为奇偶层露台,也就是户户有花园的四代宅。
据悉,洋房建面约185-300㎡;合院建面约245-380㎡,很有可能是吴中最大的面积段。预计今年10月份首开102套合院。


该项目的立面也十分有特色,流畅的线条极具艺术感。
从规划图中,也能看出来,铝板+石材+玻璃的材质,香槟金+灰色+浅灰色+深灰色+蓝灰色的色彩搭配,洋房的侧边转角露台,就像在一座垂直森林,户户拥有空中庭院,尽显豪宅气质。

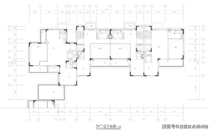
该项目户型也让人眼前一亮。以洋房31#偶数层为例,一梯一户,有独立入户厅,进门设有玄关,室内还有家政间和储藏室,收纳空间十分丰富。
整体户型为4房4卫的布局,三个套房+书房,南向开间约23.8米,东侧空中庭院,北侧有北阳台,相当于三面采光,十分通透。

洋房31#偶数层的布局来看,和奇数层相似,区别就在于空中花园的位置在南侧。

3F合院户型也同步公开,有改善需求的购房者可以冲一冲。



关于该地块的要求:装修标准不低于3000元/㎡,户型建面不低于160平,总户数不大于220户。改善购房者们又有的挑了。
苏州鸿湖上售楼处电话▓:400-005-0788转接4444(售楼处已认证)
苏州鸿湖上营销中心电话▓:400-005-0788转接4444【营销中心】
温馨提示:售楼中心〢预约尊享1V1品鉴礼遇〢匠心钜制-恭迎品鉴〢
免责声明:本文所用信息图片来源于网络,如侵权请联系本网站及时删除
声明:本文由入驻焦点开放平台的作者撰写,除焦点官方账号外,观点仅代表作者本人,不代表焦点立场。
