未来之城售楼处电话→润启未来之城售楼中心电话→2026润启未来之城→楼盘网站→楼盘测评→润启未来之城售楼中心电话→楼盘百科→24小时热线电话→楼盘详情
扫描到手机,新闻随时看
扫一扫,用手机看文章
更加方便分享给朋友
⭕杭州润启未来之城
⭕售楼处电话:400-005-0788转9999(已认证)
⭕售楼处电话:400-005-0788转9999(认证售楼处)
⭕温馨提示:本项目暂不接受临时到访,过来参观样板房请记得提前来电预约!
⭕免责声明:(本文章所用信息图片来源于网络,如有侵权请联系本网站及时删除)
润启未来之城位于西湖区三墩板块,上周末已正式开放高层样板间。
十三在看完之后不禁感慨,当前新盘产品与二手房的代际鸿沟,竟已是如此明显。
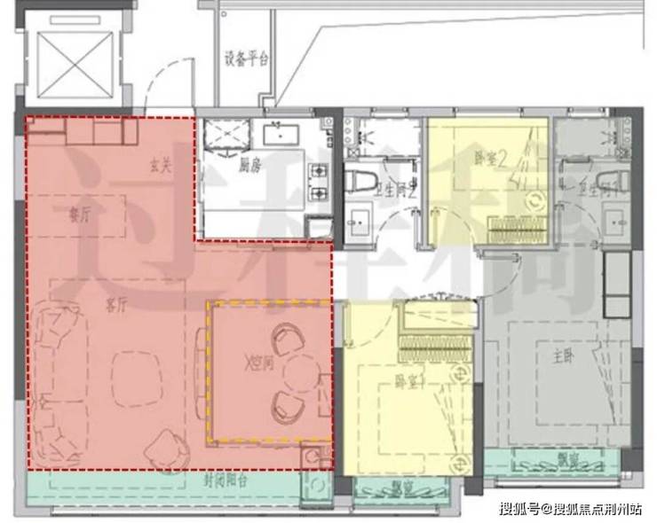
今天本文就重点分析,润启未来之城高层125平户型。从户型设计亮点、户内装修亮点,两大块详细拆解。

先是,户型设计亮点———
① 125平设计为四房两厅两卫,会发现餐客厅与卧室区隔十分明显,目的是为了能动静分区、互不干扰,保证私密感。
②长面宽,短进深:户型为四开间朝南,其中三房朝南。实际交付业主可自行改造,将书房与餐客厅连通,形成约50平超大方厅以及约6.8米南阳台。
③类一梯一户设计,125平户型也能拥有约3.5平独立电梯厅空间,即便中间套也能私享电梯入户。
④满配收纳设计,考虑日常真实居住场景,收纳需求强烈。因此,户型设计之初,尽可能多的预留收纳空间或直接配置柜体。
重点部位如玄关柜餐边柜、过道隐藏式800库、厨房5重拉篮(调味拉篮,天使拉蓝,碗碟拉篮,三层子母抽,踢脚拉篮)、卫浴收纳镜柜、阳台预留洗衣区...
除了户型设计优秀,户内装修也是华润在杭州新项目的拿手好戏。
再看,户内装修亮点———
① 装修风格高级,直击女性业主喜好。这次125平的装修风格属于艺术白法风。
整体风格定位法式浪漫,室内随处可见采用大量的白色高光烤漆板,为了美学协调性,厨房也运用的是松雾蓝烤漆板。烤漆板比墙纸、墙布的造价得高出不少。


② 超配的精装配置。在三大件属于标配的当下,空调采用的是进口品牌——大金中央空调,就连厨房也配置了单独的大金中央空调。另外两大件则配置为法国兰舍双向流新风、德国威能水地暖。
厨房标配方太六件套(油烟机、煤气灶、洗碗机、烤箱、超大单槽、净洗中心),以及华润&方太联名首发新品——净饮制冰机,既可以直接饮用矿物质水,还有直接出冰的功能。除此之外,厨房还另配置双开门博世冰箱。

卫生间为了美观,墙地面通铺整块岩板。
配置杜拉维特台盆及镜柜(美妆冰箱)、汉斯格雅恒温花洒内置式顶喷、松下智能马桶冲洗喷头、科勒复古玫瑰金龙头、防止堵塞的地漏阻挡条、电热毛巾架、线性暖风机,真是细节之处见真章!
③ 真正的好房子细节。当前政府端、开发商们都在提倡打造“好房子”产品。
那么,究竟怎样的住宅才算是好房子呢?十三认为,它应该是“够智能”、“够安静”、“够安全”。
所以,在润启未来之城的样板房里,我们看到配置了华为鸿蒙智能家居系统,操作简易轻松,解锁智慧家居新方式。
在看不见的地方也有好房子的细节。例如华润对于降噪的处理——
外部降噪采用“三玻两腔”外窗系统、全封闭阳台;
室内降噪将分户墙厚度从原来的200mm提升至240mm;卧室和起居室的上下楼板铺设10mm厚减震隔音垫;
设备降噪则是针对豪宅标配的大金空调外机采用智能低噪处理。

另外,对于水质的处理,也同样采用多重净水技术,包括前置过滤器、中央软水、末端直饮水、方太直饮制冰机。

⭕杭州润启未来之城
⭕售楼处电话:400-005-0788转9999(已认证)
⭕售楼处电话:400-005-0788转9999(认证售楼处)
⭕温馨提示:本项目暂不接受临时到访,过来参观样板房请记得提前来电预约!
⭕免责声明:(本文章所用信息图片来源于网络,如有侵权请联系本网站及时删除)
声明:本文由入驻焦点开放平台的作者撰写,除焦点官方账号外,观点仅代表作者本人,不代表焦点立场。
