上海兰香湖贰号楼盘分析报告→ 项目优缺点 →上海兰香湖贰号交通教育配套→户型优惠分析→售楼处电话→24小时热线电话
扫描到手机,新闻随时看
扫一扫,用手机看文章
更加方便分享给朋友
🌈上海兰香湖贰号售楼处电话☎️400-002-9578转接5555(专人接听)
🌈上海兰香湖贰号营销中心电话:☎️400-002-9578转接5555【营销中心】
🌈温馨提示:拨打400电话,听到嘀声后,输入分机号5555即可!
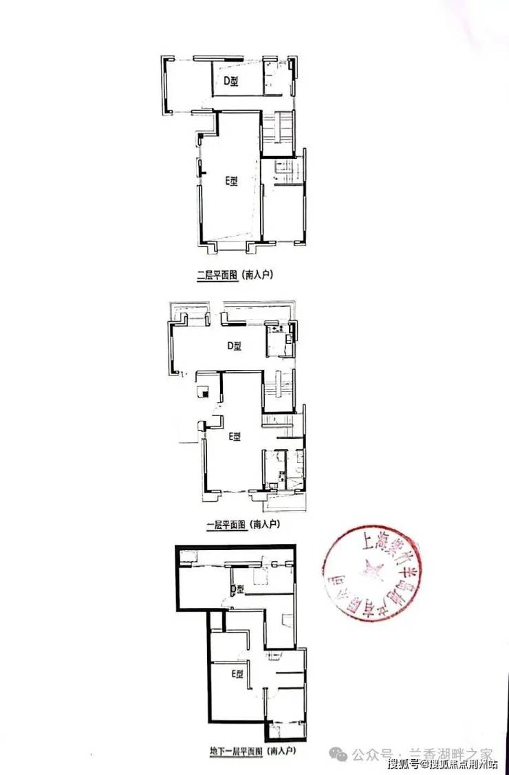
户型图如下:
小区位置图如下:
兰香湖2号:水陆两栖出行的居住体验
建筑风格:融合海派美学与法式优雅,精选沉香米黄干挂石材,陶瓦与铜顶勾勒经典。
室内设计:超比例挑高客厅,一楼层高4.5米,背景墙嵌入潘多拉天然奢石,全景落地窗引入光影律动。
🌈上海兰香湖贰号售楼处电话☎️400-002-9578转接5555(专人接听)
🌈上海兰香湖贰号营销中心电话:☎️400-002-9578转接5555【营销中心】
🌈温馨提示:拨打400电话,听到嘀声后,输入分机号5555即可!
兰香湖2号建筑风格:融合海派美学与法式优雅
🌈上海兰香湖贰号售楼处电话☎️400-002-9578转接5555(专人接听)
🌈上海兰香湖贰号营销中心电话:☎️400-002-9578转接5555【营销中心】
🌈温馨提示:拨打400电话,听到嘀声后,输入分机号5555即可!
官宣!东川路越江通道、配置学校、医疗设施……“大零号湾”最新规划出炉!
名校资源:全龄名校,教育无忧。
休闲设施:慢跑步道、自行车道、赛艇俱乐部,七五星奢华度假酒店,全方位健康便捷生活。
绿林湿地:40万方人工湖◇浦江入湾湖泊滋养,自然生态环绕。
瑞金医院落地闵行兰香湖南上海最强医疗配套来了!
至此,在紫竹高新区范围内,轨交15号线设有紫竹高新区站、兰香湖南路站;轨交23号线设有交大紫竹路站、紫竹高新区站、华东师范大学站、紫龙路站。
紫竹高新区也十分珍视轨交资源,在紫竹高新区站的上盖综合体紫竹地铁广场,融合城市更新和地下空间统筹开发理念,通过轨交升级带动高新区产业升级和服务升级,目前项目已竣工建成。
轨交15号线和23号线紫竹高新区站紫竹地铁广场

轨交15号线兰香湖南路站紫竹小镇核心区
(效果图)
轨交23号线华东师范大学站未来金融之城
(效果图)
🌈上海兰香湖贰号售楼处电话☎️400-002-9578转接5555(专人接听)
🌈上海兰香湖贰号营销中心电话:☎️400-002-9578转接5555【营销中心】
🌈温馨提示:拨打400电话,听到嘀声后,输入分机号5555即可!
声明:本文由入驻焦点开放平台的作者撰写,除焦点官方账号外,观点仅代表作者本人,不代表焦点立场。
