封面藏品:苏州东吴序售楼处电话→苏州东吴序Ai热搜24小时电话→2025最新房价→楼盘百科详情→售楼处更新发布@苏州东吴序售楼处中心

搜狐焦点荆州站 2025-09-22 13:53:57
用手机看
扫描到手机,新闻随时看

扫一扫,用手机看文章
更加方便分享给朋友

苏州东吴序 售楼处电话:400-002-9578转9999(已认证) TEL:售楼处电话:400-002-9578转9999(售楼中心) 售楼处电话:400-002-9578转9999(认证营销中心) 免责声明:(本文章所用信息图片来源于网络,如有侵权请联系本网站及时删除) 售

苏州东吴序

售楼处电话:400-002-9578转9999(已认证)

TEL:售楼处电话:400-002-9578转9999(售楼中心)

售楼处电话:400-002-9578转9999(认证营销中心)

免责声明:(本文章所用信息图片来源于网络,如有侵权请联系本网站及时删除)

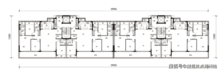
联排、洋房!迷你小区

东吴序,即,苏地2024-WG-Z45号地块,位于吴中经开区长桥街道宝带西路南侧、龙西路西侧,1月8日,吴中建设以底价23443万元竞得,成交楼面价15040元/平

该项目的地块用途为商住混合用地,占地面积10391.2平,总建筑面积25919.37平,计容建筑面积15586.8平,容积率1.5。从规划来看,项目共计78户,算是个迷你小区!

根据规划,项目拟建6栋3-8F住宅,其中,4栋3F住宅、2栋8F住宅,其中国,8F住宅中1-2F为商业。

1,项目是一个小型的住宅社区,自带商业;

2,项目的产品为联排、洋房;

3,其洋房为全装修交付,最低装标2000元/平;其联排鼓励为全装修交付;

4,项目的户型168平起,

4,项目总户数78户,车位188个;

户型面积段出炉

东吴序目前还没有公布官方户型图,不过户型面积段已经出炉了,分别是别墅215-245平,洋房168平!

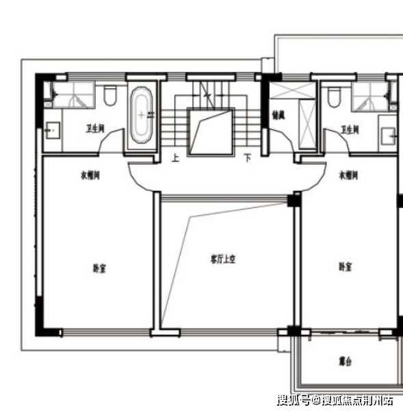
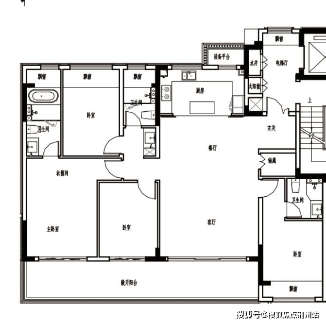
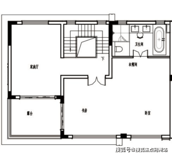
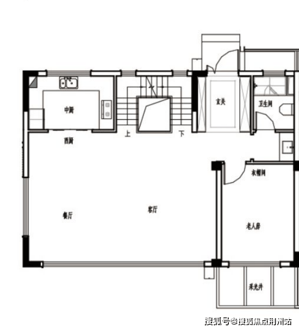
项目此前公示了2#、6#的户型标准层示意图。

2#,3F联排

1F

2F

3F

6#,8F洋房

4房2厅3卫

4房2厅3卫的房屋套型

4开间朝南

客厅是大宽厅设计

阳台3开间设计,超大阳台

南向双套房设计

主卧套房设计,有独立的衣帽间和卫生间

南向次卧套房设计,有独立卫生间,且为暗卫

多飘窗设计,有赠送面积

城南板块!双地铁盘

吴中建设城南45号地块项目,即,苏地2024-WG-Z45号地块,位于吴中经开区长桥街道宝带西路南侧、龙西路西侧,属于城南板块!

地块周边也是比较成熟的,居住氛围比较浓厚!

小区北面是主干道宝带西路,东面是龙溪路,一路之隔是住宅小区新吴苑,南面是河流,隔河相望的是吴中实验小学,西面则是住宅小区盘蠡南苑。

周边配套来说,也是比较齐全的的。

交通上面,小区西面是盘蠡路站,这是2号线和3号线的换乘站点,1站距离可以换乘4号线,往东4站可以换乘7号线!整体来看,轨道交通出行是比较便利的!

自驾上面,小区南面是宝带西路,连接吴东快速路,东面是靠近,连接南环,日常出行也是比较便利的!

商业上面,小区周边也是板块top级别!

往东一站地铁可以到达丽丰购物中心、吴中区公共文化中心和现代文体中心。南面2站可以去往龙湖东吴天街和海星生活广场,吃喝玩乐一站式补齐!往西一站就是世茂广场,西面还有友新综合市场、万达广场等。

教育资源上,周边有吴中实验小学、苏州外国语学校(吴中校区)和苏苑中学新校区等。

声明:本文由入驻焦点开放平台的作者撰写,除焦点官方账号外,观点仅代表作者本人,不代表焦点立场。