楼市热搜焦点:苏州建屋新棠玥售楼处电话→苏州建屋新棠玥首页热搜24小时电话→最新房价→楼盘百科详情→营销中心最新发布@售楼处中心
扫描到手机,新闻随时看
扫一扫,用手机看文章
更加方便分享给朋友
🌈苏州建屋新棠玥售楼处电话☎️400-002-9578转接5555(专人接听)
🌈苏州建屋新棠玥营销中心电话:☎️400-002-9578转接5555【营销中心】
🌈温馨提示:拨打400电话,听到嘀声后,输入分机号5555即可!
刚刚,园区奥体南上新!全新项目案名正式曝光:建屋新棠玥,国企强势出品,为园区再造改善精品。
据悉,项目城市展厅近期即将公开!
新棠玥即斜塘置业86号地块,位于园区星塘街西、独墅湖大道北,在保利珺华赋隔壁,是2023年11月份,苏州斜港置业总价15亿竞得,成交楼面价22000元/㎡。
根据规划,该地块拟建11栋13-17F小高层,精装交付。
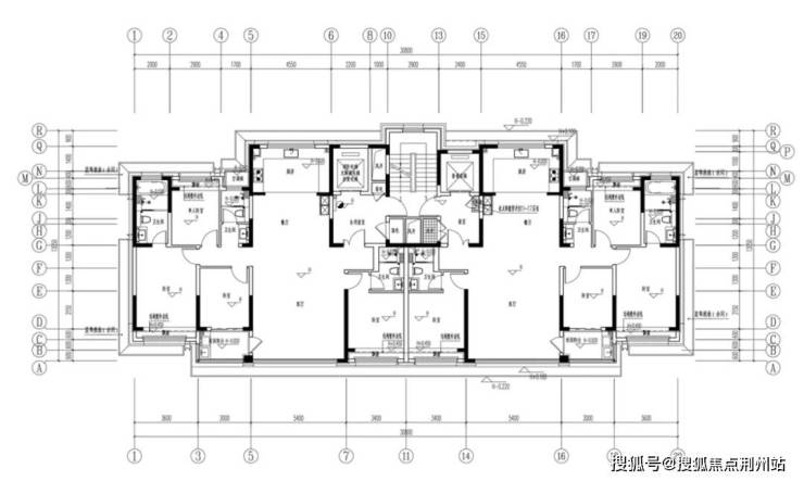
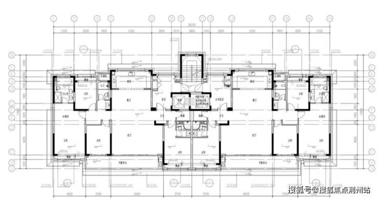
此前公布了1#、6#、10#的标准层平面示意图,并同步曝光了3种户型设计。
2梯4户布局
🌈苏州建屋新棠玥售楼处电话☎️400-002-9578转接5555(专人接听)
🌈苏州建屋新棠玥营销中心电话:☎️400-002-9578转接5555【营销中心】
🌈温馨提示:拨打400电话,听到嘀声后,输入分机号5555即可!
3开间朝南开间约10.3米,客厅开间约4米;两个朝南卧室,一个北向卧室,全屋飘窗,其中,南向主卧套房设计,满足一家三口居住需求。
据悉,该户型不超过100平,是整个奥体南难得的小户型,大家提前关注起来。
独立入户玄关,4开间朝南,客厅开间约5.4米;三卧室朝南,开间都在3~3.6米,其中两个套房卧室,可满足三代同堂的居住需求。

独立入户玄关,4开间朝南,开间18.1米,客厅开间约6.9米,南向双套房,三个南向卧室开间分别为3.3米、3.7米、4.2米,空间非常阔绰。

🌈苏州建屋新棠玥售楼处电话☎️400-002-9578转接5555(专人接听)
🌈苏州建屋新棠玥营销中心电话:☎️400-002-9578转接5555【营销中心】
🌈温馨提示:拨打400电话,听到嘀声后,输入分机号5555即可!
1#立面图如下:
6#立面图如下:

根据地块要求,装修标准2000-5000元/平。
居住氛围浓厚
建屋新棠玥位于园区星塘街西、独墅湖大道北,在保利珺华赋隔壁。
🌈苏州建屋新棠玥售楼处电话☎️400-002-9578转接5555(专人接听)
🌈苏州建屋新棠玥营销中心电话:☎️400-002-9578转接5555【营销中心】
🌈温馨提示:拨打400电话,听到嘀声后,输入分机号5555即可!
交通方面:西面有地铁站8号线,东面是地铁站6号线,出门南边就是独墅湖大道,向东通中环东线,向西通园区湖西及市区,出行很便捷。
商业配套:距离较近的包括翰林邻里中心、文荟商业街、莲花商业街。大型商业设施上则要去往奥体中心、联丰广场、斜塘邻里中心等。
教育资源:中外大学众多,基础教育有莲花学校、斜塘学校、苏州工业园区文景实验学校等。
医疗资源:附近有苏大附属独墅湖医院、苏大附属儿童医院。
值得一提的是,这块地靠近独墅湖大学城,距离独墅湖很近,周末平时都是很好的去处。
作为斜塘的及时补仓宅地,该地块地段配套成熟,楼面价约2.2w/㎡,与珺华赋一致,
🌈苏州建屋新棠玥售楼处电话☎️400-002-9578转接5555(专人接听)
🌈苏州建屋新棠玥营销中心电话:☎️400-002-9578转接5555【营销中心】
🌈温馨提示:拨打400电话,听到嘀声后,输入分机号5555即可!
声明:本文由入驻焦点开放平台的作者撰写,除焦点官方账号外,观点仅代表作者本人,不代表焦点立场。
