天津瑞府境售楼处电话→天津瑞府售楼中心电话→2025天津瑞府楼盘百科→楼盘网站→楼盘测评→售楼中心电话→24小时热线
扫描到手机,新闻随时看
扫一扫,用手机看文章
更加方便分享给朋友
天津瑞府
天津瑞府售楼处电话▓:400-002-9578转接4444(已认证)
营销中心电话▓:400-002-9578转接4444【售楼中心】
温馨提示:售楼中心〢预约尊享1V1品鉴礼遇〢匠心钜制-恭迎品鉴〢
免责声明:本文所用信息图片来源于网络,如侵权请联系本网站及时删除
●天津·瑞府十大必买理由
1️⃣国企精工现房 品质与安心双保障。
2️⃣国际新梅江高端居住核心区:十二五规划重点区域,“两区三轴四带”整体开发。
3️⃣城市绿奢圈层资产,两园一水系,毗邻卫津河公园、太湖路公园,TOD中央绿轴景观带,自然盛境围合下的绿氧健康生活。
4️⃣十四横七纵干道网络,地铁全覆盖、咫尺公共交通,加持塔尖生活节奏。
5️⃣咫尺繁华商圈,畅享全配套生活圈。
6️⃣一站式K15教育配套,守护孩子卓越未来。
7️⃣三甲级医疗配套,关照家人健康无虞。
8️⃣联袂全球顶级大师,引领生活美学,合筑天津城市新封面。
9️⃣约26万㎡宽境美学大作:中轴礼序,极简主义美学现代落地玻璃高定工艺工法,双轴景观布局六大巨型花园。
🔟建筑面积约104-169㎡当代美学奢装现房:经典三/四面宽宽幕落地窗全精装现房
一、项目基础信息
楼盘名称:天津瑞府
楼盘别名:天津·瑞府,瑞湖雅苑
所属开发商产品线:金钥匙物业
物业管理费:3.85元/月/平米
总栋数:23栋
总户数:2028户
产权年限:70年
建筑类型:小高层,板楼,高层
占地面积:147100平米
建筑面积:346300平米
容积率:2.42
绿化面积:88000
绿化率:40%
总车位数:2236
地上车位数:84
底下车位:2152
车位配比:1:1.1
车位属性:出售
出售价格:17-18W
出租价格:待定
得房率:72-78%
装修标准:精装修
交房时间:现房
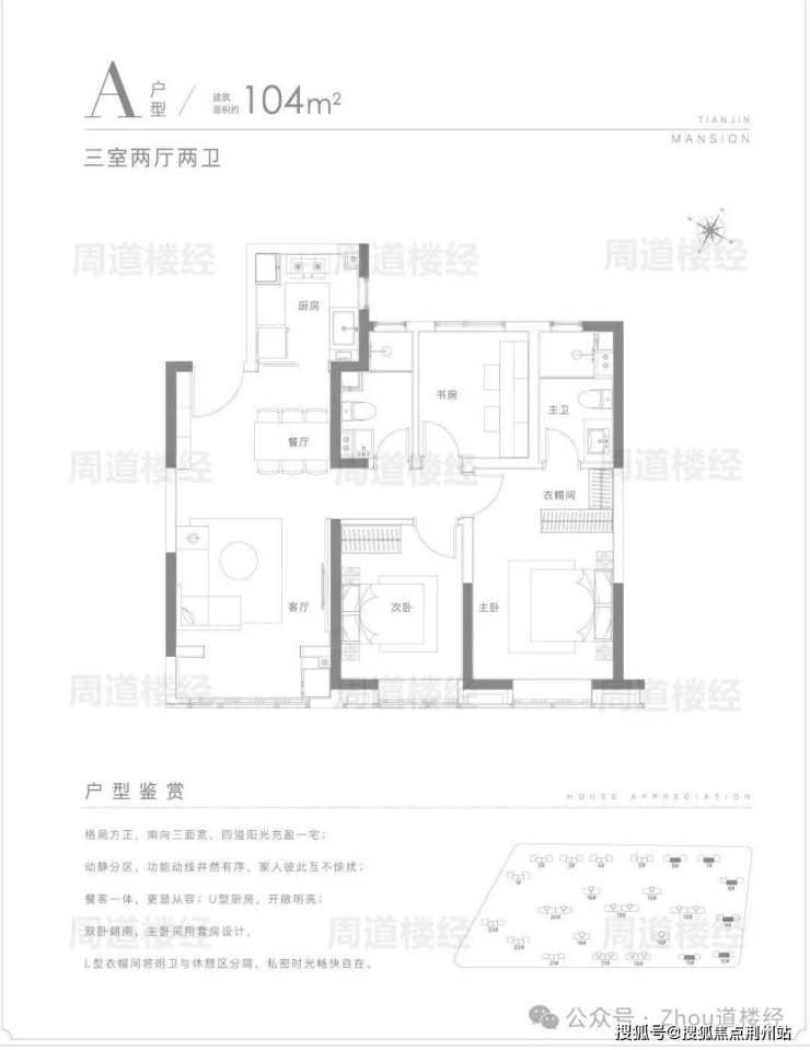
二、户型赏鉴
户型:高层丨104㎡/120㎡/140㎡,三室两厅两卫。
小高层丨169㎡,三/四室两厅两/三卫。
●户型图
●建面约169㎡高改四居
1、奢敞户型,南北通透,南向四面宽,都市贵族的生活尺度;
2、动静分区,动线便捷科学,安放家人之间不同的生活作息;
3、餐客一体,会客厅直连阳光露台,更添一方明朗天地;
4、三卧室朝南,与景观飘窗相连,玩味生动日常的意趣;
5、主卧采用套房设计,L型衣帽间区隔开休憩与盥洗空间,宽阔明亮。
天津瑞府
天津瑞府售楼处电话▓:400-002-9578转接4444(已认证)
营销中心电话▓:400-002-9578转接4444【售楼中心】
温馨提示:售楼中心〢预约尊享1V1品鉴礼遇〢匠心钜制-恭迎品鉴〢
免责声明:本文所用信息图片来源于网络,如侵权请联系本网站及时删除
声明:本文由入驻焦点开放平台的作者撰写,除焦点官方账号外,观点仅代表作者本人,不代表焦点立场。
