招商苏州道壹号(售楼处)官网 - 苏州招商苏州道壹号销售中心 - 环境 - 户型 - 价格 - 地址 - 楼盘详情 - 配套 - 电话 - 交房时间
扫描到手机,新闻随时看
扫一扫,用手机看文章
更加方便分享给朋友
苏州招商道壹号售楼处电话▓:400-005-0788转接4444(售楼处已认证)
苏州招商道壹号营销中心电话▓:400-005-0788转接4444【营销中心】
温馨提示:售楼中心〢预约尊享1V1品鉴礼遇〢匠心钜制-恭迎品鉴〢
免责声明:本文所用信息图片来源于网络,如侵权请联系本网站及时删除
1、中央河CBD“最后”宅地
园区招商永旺北地块位于工业园区钟南街东、苏州大道东南。
这条园区发展32年的中轴线,湖东CBD核心延伸带,中央河CBD,商业、教育、交通、医疗全配齐了,完全不用等配套落地。并且从未来规划来看,这块地很大概率将成为湖东中轴线上“绝版宅地”,地段稀缺性拉满!

中央河CBD↓↓↓两街夹一河 湖东中轴更加具象化了!
2、园区首个抬板社区
地段之外,招商永旺北还带来了园区首个“抬板社区”。
项目全域抬板设计,在地面层整体抬高了约3m做超级底盘,同时也保持了地下空间的设计,实现「三层」居住体验:
生活层:全域抬板设计
地面层:打造约4000㎡奢华会所
地下层:地铁直连家门(申报中)
其中生活层,也就是小区真正的住宅首层,位于约7.5m高台之上。
被抬高后的一楼视野,直接比肩过去的3楼体验,搭配新规后的超阔南向大面宽+超3.1米层高,采光、通透感、景观视野直接拉满。

3、约4000m²高配会所+约1500㎡架空泛会所
下沉庭院处规划约4000m²豪华会所!另规划约1500m²架空层泛会所!等于是地面+地上两个会所,规模之大苏州少见!
值得一提的是,这一次在具体功能配置上,招商把选择权给了客户,让业主进行投票选择落地什么样的会所场景。
未来这里可以是羽毛球场、泳池、健身房、棋牌室、茶室、私宴厅等,满足所有美好生活想象。

4、红线内外一体化设计
项目主动将红线外景观纳入目标成本,通过红线内外一体化开发,打造约1万方亲水景观带,L型滨水河畔公园(申报中),实现从公园里回家;
同时借由抬板进一步打造新加坡风情立体园林,还可实现「下沉庭院-板上游园-洄游景廊-阳台观景」四重景观体验。

5、园区首个新规洋房落地
户型方面,定位也比较清晰,没有盲目追求200平以上的超级大户型,而是主攻市场更需要且流速更快的中小户型!
主力建面约143/178m²两大户型!“刚刚好”的面积段!其中其中143m²套数占比达63%!
户型设计上,在得房率、空间灵活性、层高上均做了突破!加上飘窗、阳台的超大面积“赠送”(不计入产证面积),以及私享电梯厅的实际使用,实得率几近100%+!
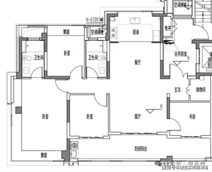
具体来看户型——
建面约143㎡4房2卫
户型规划过程稿,非最终版
建面约143㎡4房2卫,南向面宽可达约14.4米(中间套)至15米(边套)。
客厅是传统竖厅布局,面宽约4.5米;主卧面宽约3.6米,两个南向次卧分别是约3.3米和约3米,北次卧也做到了约3米的面宽且带飘窗。
再看阳台,这也是继沁百合、凤起潮鸣以及玫瑰园二期之后,园区第四个做“三阳台”的项目,面宽达到约10.8米,未来南向书房可向阳台拓展,提升空间利用率;
这里再提一下,虽然阳台是封闭的,但实际是“赠送”一半。
户型规划过程稿,非最终版
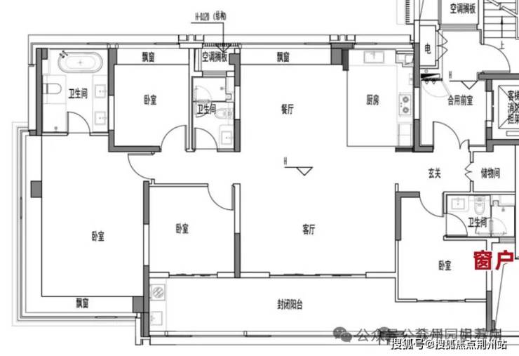
边套主卧配备270度飘窗,并且把承重柱移到了中间位置,向南采光与视野更好。
户型规划过程稿,非最终版
电梯合用前室东西两侧各自独立,且空间很大,可作为两户专属拓展空间。
建面约178㎡4房3卫
户型规划过程稿,非最终版
建面约178m²卫,和约143㎡一样,约178㎡户型也是做了三阳台,朝南次套房可以与阳台打通,增加进深。
面宽上,南向面宽约18.5米,客厅面宽升级至约6米,主卧在不含飘窗的情况也做到了约4米;
边户主卧和143㎡一样,配备270度飘窗,视野更加开阔。餐厅面宽也足够大,打了餐边柜也不显局促。
更大的亮点我觉得还是全明卫。南向立面通过凹槽设计,为朝南套房的卫生间预留了开窗面。
苏州招商道壹号售楼处电话▓:400-005-0788转接4444(售楼处已认证)
苏州招商道壹号营销中心电话▓:400-005-0788转接4444【营销中心】
温馨提示:售楼中心〢预约尊享1V1品鉴礼遇〢匠心钜制-恭迎品鉴〢
免责声明:本文所用信息图片来源于网络,如侵权请联系本网站及时删除
声明:本文由入驻焦点开放平台的作者撰写,除焦点官方账号外,观点仅代表作者本人,不代表焦点立场。
