【济南保利九宸赋】售楼处电话—百科详情【济南保利九宸赋售楼部24H预约热线】—实时动态--最新价格-户型图-容积率

搜狐焦点荆州站 2025-09-28 10:54:10
用手机看
扫描到手机,新闻随时看

扫一扫,用手机看文章
更加方便分享给朋友

🌈济南保利九宸赋售楼处电话☎️400-002-9578转接5555(专人接听) 🌈济南保利九宸赋营销中心电话:☎️400-002-9578转接5555【营销中心】 🌈温馨提示:拨打400电话,听到嘀声后,输入分机号5555即可!

🌈济南保利九宸赋售楼处电话☎️400-002-9578转接5555(专人接听)

🌈济南保利九宸赋营销中心电话:☎️400-002-9578转接5555【营销中心】

🌈温馨提示:拨打400电话,听到嘀声后,输入分机号5555即可!

保利九宸赋

作为CBD瞰山观湖的四代宅,保利九宸赋有不少亮点,目前,楼座分布图已经出炉:

最小户型152平,占比40%;最大290平;另外还有159/175/189/230/240平。赠送面积不少,主要是空中露台、设备平台、开敞式阳台。总价在500-1000万不等,精装交付。

小区位置不用多说,寸土寸金的老城区,配套完善,地块做了抬高设计,规划了11栋住宅,容积率2.6,包含6栋15-17层小高层、5栋21-25层高层,地上住宅计容总面积近10.6万方,614户。

从楼座分布图来看,4号楼、6号楼、8号楼为四代宅,户型为230平、240平、290平。

比较特别的是,为了能更好的欣赏西北方的河景、湖景、公园,以及东向的山景,项目的四代宅产品没有把大露台放在南侧。其他楼座南向为开敞式阳台+全面屏落地窗+铝板;北向赠送设备平台,部分房间也做了落地窗。

不过,为了做出高得房率的四代宅,小区有9000多平的不计容面积,导致10号楼的居住公寓高达20户,整个小区有25户,这一点需要注意。

二、中恒信二期云顶·嘉元

中恒信二期云顶·嘉元,就在新“地王”——省博西中海项目对面,地段相当优越,配套也很完善,不过周边基本都是老旧小区以及比较狭窄的道路。最近也快要入市了,目前户型图已经出炉。

产品面积很豪,最小面积200平,最大达到400平,总价预计500万起

户型设计中规中矩,没有太多亮点,估计将延续一期的风格,在精装配置/用材等硬件上下功夫。

(7月份航拍进度)

🌈济南保利九宸赋售楼处电话☎️400-002-9578转接5555(专人接听)

🌈济南保利九宸赋营销中心电话:☎️400-002-9578转接5555【营销中心】

🌈温馨提示:拨打400电话,听到嘀声后,输入分机号5555即可!

三、绿城瑞马·润百合

CBD的润百合是近期最受关注的改善盘之一,热度高,争议也很大。瑞马拿地,绿城开发,大概率将在8月份首开,2.6w的精装价格很有冲击力,总价在360-450万左右。

小区2.3容积率,3栋17层小高层、1栋5+7层洋房,148套房子,小高层户型为143、167㎡,洋房为167㎡。

作为CBD片区最后一宗住宅,项目的区位和配套是一大优势,但地块面积很小且形状不规则,还会有工业南路带来的噪音影响,这是最大的劣势。

但好在有绿城的加持,而且精装产品价格仅2.6w,比CBD同品质的次新房还低,很有性价比了。

虽然润百合有些众多缺点,但是,一旦价格到位了,房子的缺点荡然无存,全是优点。毕竟,单价2.6w、总价360万起就能在CBD核心区买一个绿城开发的、带会所的、精装小高层,这价格难道不香吗?

四、建邦星辰

经十路万象城旁的建邦星辰,目前的进度略显滞后,户型图发布后,至今还未有进展,据说计划10月份入市首开,购房门槛预计1000万。。。

作为顶级地段的超高层,争议性很大。3.0的容积率,基本都是大高层,高度最高140米,还有临路的噪音影响;但是,项目位置和配套绝佳,产品起步190平大三室,还有230、270、310平户型,妥妥的豪宅,期待一下项目的样板间吧。

🌈济南保利九宸赋售楼处电话☎️400-002-9578转接5555(专人接听)

🌈济南保利九宸赋营销中心电话:☎️400-002-9578转接5555【营销中心】

🌈温馨提示:拨打400电话,听到嘀声后,输入分机号5555即可!

五、瑞马科技城项目

位于悦澜山南侧、三发和岳府西侧,容积率2.3,是科技城几个楼盘中最低密的项目,目前虽然规划公示,但并没有释放太多信息,今年是否能入市还不确定。

项目的地块是抬高的设计,整盘规划4栋15-17层小高层,196套房子,户均面积147平,层高3.1米,外立面主要是大面积的铝板+少部分石材。不过,因为南排的写字楼,导致小区有15套采光不足的居住公寓。

🌈济南保利九宸赋售楼处电话☎️400-002-9578转接5555(专人接听)

🌈济南保利九宸赋营销中心电话:☎️400-002-9578转接5555【营销中心】

🌈温馨提示:拨打400电话,听到嘀声后,输入分机号5555即可!

六、中海省博西项目

中海省博西地块最近也开始有动作了,作为济南的新晋地王,这个项目的关注度非常高。目前产品现在还在规划中,今年不一定能入市,销售价格预计会突破4w每平,直达天花板。

七、中海时光之境

上周末,盛福片区中海时光之境的样板间、下沉庭院、会所正式开放,很快就要首开了。

首开计划推出1/10/11/12/13共5栋楼,涵盖145/152/155/170/210/252平所有户型,全部是精装,最高得房率能到134%,预计2027年年底交付,单价预计22000元/平起。

样板间做了155平和252平两个户型:

155平户型预计均价26000-28000元/平,总价420万左右;252平均价34000-35000元/平,总价870万左右。

样板间做的相当惊艳,尤其252平,100平左右大露台体验感很不错,客厅6.2米的挑高,三面通顶落地窗;155平空间分布的比较均匀,除了北侧书房小一点,其他3个卧室都显得挺宽敞。

不过,中海时光之境有一个绕不过去的缺点,就是2.6的容积率做出了70多套居住公寓。此外,大户型的高总价,也非常考验购房者对盛福片区的接受程度。

八、鲁投壹号院

这是鲁投在济南的第一个项目,也是中海的直接竞品,同为第四代住宅,目前只有城市展厅,正式售楼处还没有开放。

和中海相比,鲁投的品牌力弱一些,壹号院的地块面积也小一些,但更加低密,容积率2.0,规划了2栋10层洋房、5栋15-16层小高层,预计2027年12月底毛坯交付。

户型为143/156/175平,都做了270度环幕落地窗,产品设计不错,单价预计2.1-2.8w左右,总价320-500万,入手门槛和上限都要低一些。

🌈济南保利九宸赋售楼处电话☎️400-002-9578转接5555(专人接听)

🌈济南保利九宸赋营销中心电话:☎️400-002-9578转接5555【营销中心】

🌈温馨提示:拨打400电话,听到嘀声后,输入分机号5555即可!

九、界群·湖光玺悦

北湖片区难得的低密盘,一众大高层中的清流,针对的片区内想要升级置换的改善,项目计划8月份首开,推出88套房子,首开优惠力度据说会比较大。

小区容积率2.19,6栋住宅,262户,包含3栋17-18层小高层、3栋10层洋房,小高层户型为115㎡;洋房为125㎡、145㎡、175㎡。

开发商界群置业是首入济南,但在乐陵的口碑还不错。这次的北湖项目,打造铝板外立面+落地窗+双会所+星空顶车库,都是北湖甚至整个天桥区首个,比较难得。

十、保利明湖印

济南的老城区不缺购买力,缺的是品质较高的改善盘。保利明湖印作为区域里稀缺的改善盘,虽然缺点不少,但大概率会比较好卖,预计单价2.1-2.5w,总价320万起。

项目距离大明湖400米,周边生活配套全,北侧300米就是地铁口;另外就是产品,2.6的容积率,8栋15层小高层,主力户型155-235平,还有部分300平大平层,铝板外立面+赠送面积+社区会所,都是区域内的第一个。

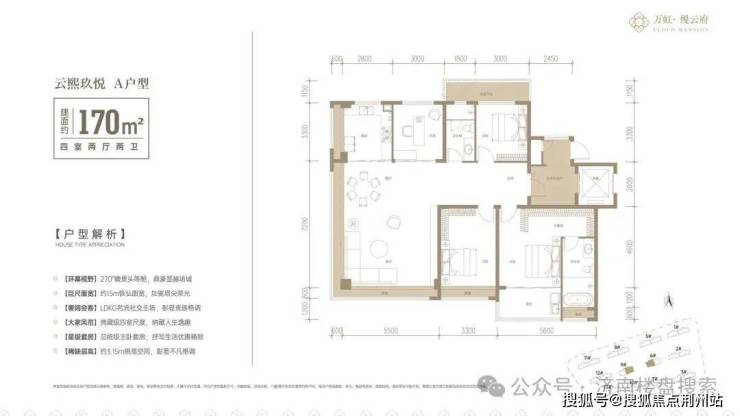
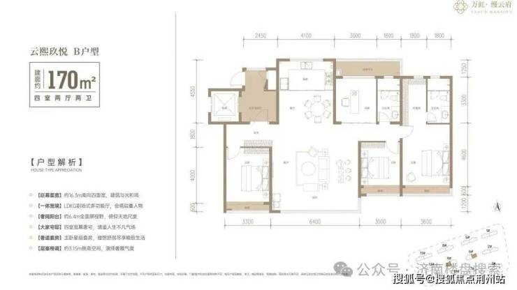
十一、万虹·缦雲府

工业北球墨片区低密洋房——万虹缦雲府,是一个优点多于缺点的楼盘。均价预计1.6-1.7w,总价200-300万,主要面向想在主城区买洋房,注重配套,并且不着急入住的刚改人群。

小区1.7的容积率,12栋5-11层纯洋房,2027年中下旬毛坯交付。主力户型包含127㎡、139㎡、170㎡,得房率最高96%。

🌈济南保利九宸赋售楼处电话☎️400-002-9578转接5555(专人接听)

🌈济南保利九宸赋营销中心电话:☎️400-002-9578转接5555【营销中心】

🌈温馨提示:拨打400电话,听到嘀声后,输入分机号5555即可!

项目离着cbd和高新区都比较近,周边地铁、商业等配套发展的已经比较全面了。并且不靠主路、铁路,避免了噪音干扰,优于部分盛福片区的楼盘;同时,缦雲府的地价又要比同区域的海信、龙湖、碧桂园更低,后期价格更可控。

十二、中电建国颂天青

港沟片区中电建国颂天青,主打旅游路旁的低密景观豪宅,目前东地块7号楼已经取证,预计不久后要首开了,价格还没有释放。

项目有两个地块,容积率1.2-2.0,以洋房、叠拼为主,有少量四代宅、小高层、联排别墅,户型比较多,偏实用性:

建面约135㎡观山小高

建面约143㎡-180㎡墅质洋房:部分首层带院,顶层复式+露台

建面约146㎡-162㎡庭台平墅:户户有院,层层退台

建面约223㎡-235㎡双院叠墅:下叠南北双庭院,上叠超百平星空露台

建面约280㎡奢院联排:前庭后院

不过,项目距离主城区较远,且缺少配套,区域的争议性比较大;另外还有港九路、凤鸣路的噪音影响,也是一个不利因素。

十三、金象泰榕悦府

白马山片区的低密洋房——金象泰榕悦府也快要入市了,位于能建麓誉府东南侧,预计均价13000-15000元/平左右。这个区域发展比较滞后,但产品和价格确实不错,主打性价比,针对的是周边的地缘人群。

南区和北区容积率均为1.7,首开南区,规划6栋8-10层洋房,层高3.1米,户型136/151平三室、179/200平四室。

🌈济南保利九宸赋售楼处电话☎️400-002-9578转接5555(专人接听)

🌈济南保利九宸赋营销中心电话:☎️400-002-9578转接5555【营销中心】

🌈温馨提示:拨打400电话,听到嘀声后,输入分机号5555即可!

声明:本文由入驻焦点开放平台的作者撰写,除焦点官方账号外,观点仅代表作者本人,不代表焦点立场。