【营销中心】苏州狮山上璟府售楼处电话_预约看房_楼盘详情-2026售楼处最新房价-户型图(房天下)售楼处电话_预约看房
扫描到手机,新闻随时看
扫一扫,用手机看文章
更加方便分享给朋友
苏州狮山上璟府售楼处电话:400-005-0788转6666(已认证)
苏州狮山上璟府开发商电话:400-005-0788转6666【售楼中心】
温馨提示售楼中心〢预约尊享1V1品鉴礼遇〢匠心钜制-恭迎品鉴〢
温馨提示本项目暂不接受临时到访,过来参观样板房请记得提前来电预约!
永旺北地块是截至目前整个园区核心板块范围内今年唯一一个纯新项目。
该项目位于湖东板块,地处钟南街东、苏州大道东南,地理位置优势自不用赘述。
去年年末,招商蛇口以27342元/㎡的楼面价拿下了永旺北地块,至今也仅三个月左右的时间。
点击添加图片描述(最多60个字) 编辑

当前,该项目于苏州中心的展厅已于上周末正式对外开放,并计划于本周六召开产品共创大会,同步公开案名。
从去年下半年开始,园区新房产品力进一步升级,进入顶豪争锋的状态。叠加一大批二手次新改善和豪宅进入市场,进一步分流了新房客群。
在这样一个市场行情下,永旺北地块想要走出独立行情,就只能在产品力上更下功夫。
所以在拿地没多久,该项目就开启了产品共创计划,邀请了行业专家顾问、市场研究团、产品设计团、意向客户团和客关服务团等五大共创团队,以打造深度符合人居需求的迭代性作品。
从已知信息来看,永旺北地块在产品力上较园区现有项目确实具备独特的创新性。
点击添加图片描述(最多60个字) 编辑

◎永旺北地块项目效果图过程稿
8栋11层的纯洋房,是园区第一个抬板社区。也正是基于此,让整个小区在景观上能跟红线外无缝衔接,成就一体化的景观。
从已经曝光的户型来看,招商也没有采用当下豪宅普遍选择的超大起步、纯大平层的规划。而是在深研需求的基础上,采用了适配改善需求的成长型户型,让更多家庭能够进入园区核心主场。
点击添加图片描述(最多60个字) 编辑

一方面,在低密化浪潮下,狮山新房主力依然是以高层、小高层、超高层为主;另一方面,前几年市场高峰期成交的深改类二手次新房批量入市,分流了新房客群。
从2024年绿城·逸庐两开即磬也可以看出,狮山板块的客群对于低密产品还是有较强需求度的。
2025年,狮山板块上新了一个纯新项目澜庭壹号院,这也是板块内唯一在售的低密项目。截至目前,该项目已经领取了三批次预售许可证,市场反馈良好。
近日,位于狮山板块淮海街东的狮山上璟府城市展厅正式公开。
该项目容积率1.3,拟建8栋3F合院、4栋4F叠墅、2栋10+1F洋房,纯低密社区。
点击添加图片描述(最多60个字) 编辑
◎狮山上璟府效果图
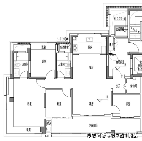
据悉,狮山上璟府整个社区户型面积约190-345㎡,全盘仅139户。
点击添加图片描述(最多60个字) 编辑

苏州狮山上璟府售楼处电话:400-005-0788转6666(已认证)
苏州狮山上璟府开发商电话:400-005-0788转6666【售楼中心】
温馨提示售楼中心〢预约尊享1V1品鉴礼遇〢匠心钜制-恭迎品鉴〢
温馨提示本项目暂不接受临时到访,过来参观样板房请记得提前来电预约!
免责声明(本文章所用信息图片来源于网络,如有侵权请联系本网站及时删除)
声明:本文由入驻焦点开放平台的作者撰写,除焦点官方账号外,观点仅代表作者本人,不代表焦点立场。
