星河·湖西源启售楼处电话→ 星河·湖西源启售楼中心电话→2026楼盘百科→楼盘网站→楼盘测评→售楼中心电话→楼盘百科→24小时热线电话→楼盘详情
扫描到手机,新闻随时看
扫一扫,用手机看文章
更加方便分享给朋友
星河·湖西源启
🌈🔥售楼处电话 ☎️400-005-0788转接3333 【售楼中心】【已认证】
🌈🔥营销中心电话 ☎️400-005-0788转接3333 【营销中心】【已认证】
🌈🔥售楼中心🌈🔥〢预约尊享1V1品鉴礼遇 🌈🔥〢匠心钜制-恭迎品鉴〢
免责声明【本文所用信息图片来源于网络,如侵权请联系本网站及时删除】
今年7月土拍中,苏州星鸿(星河&天鸿伟业)以总价约6.72亿竞得,成交楼面价14400元/㎡。

项目容积率仅1.25,规划拟建24幢住宅,包括22栋4F叠加+2栋11F洋房!其中洋房为四代宅。
作为苏州改善新规发布后的“1号”作品,项目整体抬升,带来城市全新低密浮岛墅区!
其中叠加首层“地上架空车库”,洋房首层架空打造多功能主题泛会所,强化社区功能;并且打造多连廊贯穿,真正实现无风雨归家!


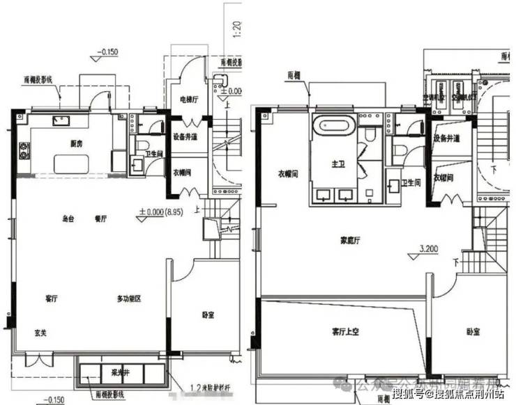
户型同步公示!据爆料,叠加建面约160-180㎡,洋房建面约141㎡,都是改善大户型。
洋房建面约143㎡4房2卫,4开间朝南,整体南向开间约14.5米,客厅开间约5m,主卧套房,北向生活阳台,分奇、偶数层,区别主要在于空中庭院。

7#为4F叠加,下叠建面约180㎡左右,南北双入户,6.7m超大方厅,全卧室朝南设计;二层挑空赠送面积超大。
星河·湖西源启位于吴中区郭巷街道林家潭路南侧、通达路东侧,就在龙湖·九里璟园南侧。
地块非常位置不错,出门7号线,正宗地铁盘;附近有郭巷实小、苏大附属尹山湖中学等;商业依赖尹山湖的歌林公园等,地铁6站可达苏州中心。
南侧不远处是即将重磅升级的郭巷老街片区,打造集文化、休闲、运动、商业等多元业态于一体的文旅街区,势必将带动周边区域的高质量发展。
作为区域“首个”低密别墅盘,吴中第二个底层全架空,星河·湖西源启的看点还是非常多的!
星河·湖西源启
🌈🔥售楼处电话 ☎️400-005-0788转接3333 【售楼中心】【已认证】
🌈🔥营销中心电话 ☎️400-005-0788转接3333 【营销中心】【已认证】
🌈🔥售楼中心🌈🔥〢预约尊享1V1品鉴礼遇 🌈🔥〢匠心钜制-恭迎品鉴〢
免责声明【本文所用信息图片来源于网络,如侵权请联系本网站及时删除】
声明:本文由入驻焦点开放平台的作者撰写,除焦点官方账号外,观点仅代表作者本人,不代表焦点立场。
