中建壹品外滩元境售楼处电话→中建壹品外滩元境售楼中心电话→2026楼盘百科→楼盘网站→楼盘测评→售楼中心电话→楼盘百科→24小时热线电话→楼盘详情
扫描到手机,新闻随时看
扫一扫,用手机看文章
更加方便分享给朋友
中建壹品·外滩元境
🌈🔥售楼处电话 ☎️400-005-0788转接3333 【售楼中心】【已认证】
🌈🔥营销中心电话 ☎️400-005-0788转接3333 【营销中心】【已认证】
🌈🔥售楼中心🌈🔥〢预约尊享1V1品鉴礼遇 🌈🔥〢匠心钜制-恭迎品鉴〢
免责声明【本文所用信息图片来源于网络,如侵权请联系本网站及时删除】
项目在完整保留里弄肌理与建筑风貌的同时,创新地将地上三层的立体空间结构,重构为

平层户型设计,并采用层层退台手法,延续了别墅特有的地下室、庭院与星空露台等空间附加值,最终打造出“风貌外观+平层格局+墅质生活”的“风貌洋房”,开创了上海住宅的全新品类。
效果图仅供参考 以实际交付为准
私域主权:一梯两户,六户一栋
真正的私密,从归家第一步开始奠定。
外滩元境整栋仅六户,一梯仅两户,定义了私密的底线。
这种“小圈层、全私域”的居住形态,让隐私与静谧成为日常底色,确保你的生活永远处于一个安静、尊贵的“私家小圈子”里。
风貌洋房,这一产品形态在上海楼市中尚属首例,甚至在全球范围内也难觅先例。
我们先用几张图来快速概览下其与众不同之处。
1、从建筑布局及风格特色来看,保留了低密风貌住宅街巷里弄的格局,以及露台铁艺栏杆、孟莎屋顶及老虎窗等建筑构件,彰显上海海派文化独有的味道和“腔调”。

2、从内部空间体系来看,地上三层,层高分别是3.6米、3.3米和3.3米;每个单元一梯两户,每户均拥有类独立电梯厅;一楼带地下室及庭院,并通过创新退台式设计为二楼和三楼打造私家空中花园,形成户户有花园的墅居生活方式。
3、从户型设计来看,一楼户型附赠超大地下室及双层庭院;二楼户型附赠星空露台;三楼附赠露台及其他空间;户型实得率最大可以超过200%!平均也能达到约150%左右!
这意味着,总价约1000万出头,即可入驻杨浦滨江九宫格风貌区。最大的洋房户型建面约174㎡,实得面积可能达到约300㎡左右,总价也仅控制在两千多万级别,极具冲击力。

效果图仅供参考 以实际交付为准
从规划方案来看,项目还有很多其他设计亮点:
电房、垃圾电梯、保障房、物业、K站集中布置转角空间;垃圾房入地,位于保障房下部,减少对商品住宅的影响;全人车分流,保障房及配套用房与商品房车行动线分流;等。
说到这里,项目的热销已经是可以预料的。对于预算一两千万的购房者来说,其低密院墅式生活方式,以及超高附赠空间带来的价格优势完全无法拒绝。
外滩云境产品革新的意义还不止于提供了一款高空间附赠及高质价比的创新产品;更加重要的是,TA实现了上海风貌住宅产品的破局,让改善客群能够有机会入手风貌住宅核心资产
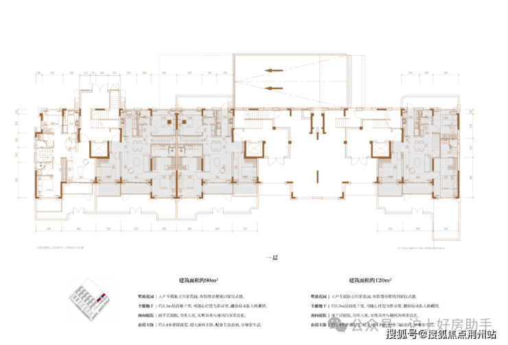
项目户型介绍
项目精装修交付,带电梯。层层退台,户户有附赠。整体得房率约80-86%,最终实得最高约210%~
⭐一楼:赠地下室+私人花园+下沉庭院(90/104/120/170㎡)
⭐二楼:赠露台+高得房率(82/100/ 110/140㎡)
⭐三楼:赠阁楼+露台+老虎窗(82/100/110/135㎡)
⭐另有三套联排231/286平预定中
建面约104㎡3房2厅2卫(一层下叠):


建面约99㎡3房2厅2卫(二层平叠):

建面约99㎡3房2厅2卫(三层上叠):

建面约120㎡3房2厅2卫/90㎡2房2厅2卫(一层下叠):


建面约110㎡3房2厅2卫/80㎡2房2厅2卫(二层平墅):

建面约110㎡3房2厅2卫/80㎡2房2厅2卫(三层上叠):

建面约90㎡/120㎡3房2厅2卫(一层下叠):


建面约80㎡2房2厅2卫/110㎡3房2厅2卫(二层平墅):

建面约82㎡2房2厅2卫/110㎡3房2厅2卫(三层上叠):

建面约82㎡2房2厅2卫/110㎡3房2厅2卫(四层上叠):

因此,你的选择无比清晰:
一层下叠,相当于“地上大平层+地下多功能厅”,附赠南北可对流的地下室和双下沉庭院,别墅生活一步到位。
二层平墅,相当于“空中私密花园”,约140㎡享受185㎡的空间感,独立大露台就是你的天空会客厅。
三层上叠,相当于“云端私邸+超额惊喜”,还有约54㎡惊喜空间,值得到实地感受!未来轻松实现三房变五房。
中建壹品·外滩元境
🌈🔥售楼处电话 ☎️400-005-0788转接3333 【售楼中心】【已认证】
🌈🔥营销中心电话 ☎️400-005-0788转接3333 【营销中心】【已认证】
🌈🔥售楼中心🌈🔥〢预约尊享1V1品鉴礼遇 🌈🔥〢匠心钜制-恭迎品鉴〢
免责声明【本文所用信息图片来源于网络,如侵权请联系本网站及时删除】
声明:本文由入驻焦点开放平台的作者撰写,除焦点官方账号外,观点仅代表作者本人,不代表焦点立场。
