2025天津金茂府售楼处电话/ 天津金茂府户型图/ 天津金茂府项目售楼处电话/地址/ 预约热线_房价_户型_楼盘详情
扫描到手机,新闻随时看
扫一扫,用手机看文章
更加方便分享给朋友
天津金茂府
售楼处电话▓:400-002-9578转接4444(已认证)
营销中心电话▓:400-002-9578转接4444【售楼中心】
温馨提示:售楼中心〢预约尊享1V1品鉴礼遇〢匠心钜制-恭迎品鉴〢
免责声明:本文所用信息图片来源于网络,如侵权请联系本网站及时删除
天津金茂府,以天津为名,占据运河之上优质的区位,以及深厚的人文历史文脉。因此,在景观设计上充分结合津韵在地文化,以运河流韵为灵感,打造了一轴三境的归家礼序。大门面宽约77米,高度约8.5米,以船帆的造型为灵感来源。
▲天津金茂府实景示范区实拍
移步门庭,一幅犹如奔涌不息的江面的巨幅景墙映入眼帘,这其实是液态大理石。

▲天津金茂府实景示范区实拍
甄选西班牙马里奥纳灰奢石,源自塞罗·穆里亚诺矿脉,全球仅约12%的“First级”原矿可媲美其纹理纯度。
穿过归家长廊,除了林涧飞瀑外,还选取了8棵形态优雅的松树挺立在庭院,寓意迎客八方。
▲天津金茂府实景示范区实拍
山石与坡地相呼应,形成了山、石、水、瀑、松的天然画卷。
▲天津金茂府实景示范区实拍
下沉庭院是与会所链接的重要区域,建筑立面采用船篷曲线的造型,迎合泛云舟的运河主题,作为依托,庭院中心打造了约210㎡的水系。
船帆和树木的倒影投射在水面,微风拂过,更有泛舟水上的悠然意境。壁挂的造型松树,与立柱的流水串联,在石缝间舒展开来,浑然天成。
▲天津金茂府实景示范区实拍
与此同时,还打造了约600㎡接待前厅+约2160㎡复合空间作为业主会所。集艺术、社交、健康于一体,涵盖书吧、私宴厅、绅士娱乐区、碧波泳池、健身瑜伽区等功能空间。
▲天津金茂府会所实拍
会所风格上,彰显海派艺术对城市精神的深度解构。设计萃取天津世纪钟的圆弧拱形元素为核心符号,融入建筑花格美学骨架,以浅色木纹石铺陈基底,搭配青玉石材穿插其间。
很多人一听到是金茂府,就觉得肯定都是大户型。但,天津金茂府还是非常人性化,设计了建面约109㎡、约111㎡、约121㎡、约132㎡、约138㎡、约139㎡、约165㎡、约183㎡等多种户型。
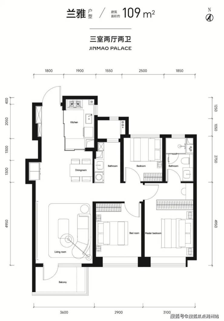
先看建面约109㎡的三室两厅两卫户型。
▲天津金茂府建面约109㎡三室两厅两卫户型图
整体南向面宽约9.6米,确保舒适的采光面。客厅面宽约3.6米,连接开敞阳台,拓展更多生活可能,你完全可以在这里打造一个私属空中花园。
玄关设计将仪式感和收纳功能有机结合,客餐厨连成一线,S墙的设计也非常实用。
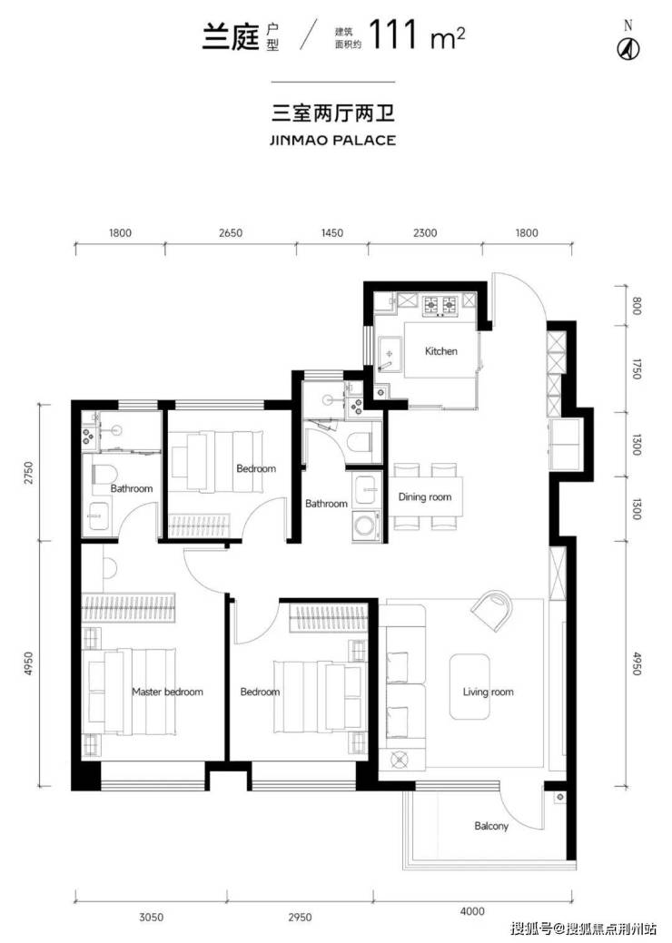
主卧套设计,打造主人房的私密空间。次卫干湿分离,方便其他家庭成员使用。南向双卧,也可以把北向的房间改造为书房或是健身区域。再来看建面约111㎡三室两厅两卫户型。
▲天津金茂府建面约111㎡三室两厅两卫户型图
天津金茂府
售楼处电话▓:400-002-9578转接4444(已认证)
营销中心电话▓:400-002-9578转接4444【售楼中心】
温馨提示:售楼中心〢预约尊享1V1品鉴礼遇〢匠心钜制-恭迎品鉴〢
免责声明:本文所用信息图片来源于网络,如侵权请联系本网站及时删除
声明:本文由入驻焦点开放平台的作者撰写,除焦点官方账号外,观点仅代表作者本人,不代表焦点立场。
