南通万濠东郡售楼部电话|价格详情|实时更新|售楼处地址|在售户型-南通万濠东郡2025最新房价
扫描到手机,新闻随时看
扫一扫,用手机看文章
更加方便分享给朋友
南通万濠东郡
售楼处电话:400-002-9578转9999(已认证)
网上销售中心——24小时在线咨询TEL——恭迎品鉴!
-----------欢迎来电预约尊享专业顾问讲解一对一服务!
免责声明:(本文章所用信息图片来源于网络,如有侵权请联系本网站及时删除)
主城核芯、纯粹低密、滨水别墅、超6米挑高跃级四代宅、7层真洋房、双首层会所。
以上任意关键词,皆可引领南通高端人居风潮。
而我们今天要介绍的这个新项目,将上述价值光环全部囊括。
TA就是,位于主城中轴工农路之上的滨水墅区——万濠东郡。
前不久,项目城市展厅正式开放,地段、产品、品牌各维度TOP级的配置,让万濠东郡迅速吸引了南通高净值圈层的高度关注。
▲鸟瞰效果图
No.1
土地稀缺性
得天独厚地脉+低密滨水基因
自去年11月致豪地产摘得工农路旁R24017新地块,这里就成为全城瞩目的焦点。
毕竟,仅仅是“主城区工农路”这六个字,在南通老钱新贵的眼中就“一字千金”。
在“地段论”统治的地产世界里,“主城”是所有人竭尽全力攀附的光环。
而万濠东郡,踞守主城中轴之上,坐享主城多维度精粹资源。
轨交动脉:距地铁1号线慈善博物馆站直线距离仅约300米,距1/2号线换乘站文峰站亦不过1公里左右。
商业矩阵:一路之隔即文峰城市广场,圆融金鹰商圈直线距离仅约300米,向南可快速抵达印象城和中南商圈。
生态界面:南临学田河,北侧即双拥公园,与文峰公园直线距离也仅约1.5公里。
得天独厚的稀缺地脉,天赋异禀的低密基因,只有这样的土壤,才能滋养出真正的TOP级作品。
但,美好的东西注定只能少数人拥有。据「新知南通研究院」不完全统计,近十年内,工农路沿线板块仅仅出让了4宗住宅用地。
而万濠东郡,则是其中唯一超低密滨水宅地,稀缺性不言而喻!
No.2
产品颠覆性
超6米挑高墅厅+南北双花园
不仅数量少之又少,工农路沿线豪宅,保值能力也是有目共睹。
板块次新房绿城晓风印月,目前挂牌价高达3.35万/㎡,6月最新成交价近3万/㎡,相比其他板块显示出强大的市场韧性。
绿城晓风印月这类高层产品就已如此稀贵,而万濠东郡打造的,可是容积率仅约1.29的低密滨水墅区,其抢手刻度可以想见!
• 滨水别墅
首先来看这个楼市新物种——南通首个超6米挑高跃级四代宅!
它既是当下超火的四代宅设计,又开创了南通墅厅大平层时代,创造出独有的“平层墅居”感受,堪称南通地产史上的划时代之作!
▲跃级四代宅效果图
市面上常见的四代宅,通常只专注于露台空间的打造,室内空间实则与普通住宅差异有限。
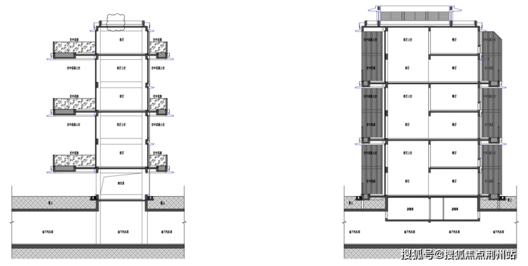
而万濠东郡跃级四代宅,通过奇偶层错位互相咬合设计,让客厅及露台通高挑空,单层层高达到3.15米,客厅挑高达到6.3米!
这种突破性设计,让每一户都能同时拥有挑高墅厅和南北双花园,兼得别墅的垂直尺度与大平层的横向尺度。

▲跃级四代宅剖面示意图
从下面户型图可以看到,万濠东郡建面约193㎡跃级四代宅,活动区通过LDKBG一体化设计,将超6米挑高墅厅与环绕式空中花园融为一体,创造出横向无界、纵向通透的生活场域。
休憩区则采用四房三卫双套房设计,主卧配置奢华堪比星级酒店,两间次卧均南连大阳台,充分保障每位家庭成员的空间舒适度与景观享有度。
▲跃级四代宅户型图
整个产品设计不仅带来气场全开的空间感,更垂直拓展了生活场景的可能性,满足更多元、更高阶的生活需求。
可以说,不论是从功能上,还是感受上,亦或是价值上,万濠东郡跃级四代宅相比其他房子,所有的体验感全部double,这样的设计在南通是非常少见的!
▲跃级四代宅效果图
不仅如此,万濠东郡跃级四代宅还精准破解了普通四代宅在采光、视野等方面的痛点!
普通四代宅痛点:露台设计通常会采用超常规阳台的进深尺度,对本层与露台相连房间的采光产生影响,同时悬挑空间还会影响下层住户采光。
万豪东郡跃级四代宅:通过露台+客厅双通高设计,形成内外贯通的垂直采光面,更大限度地引入自然光,营造立体化的开阔视界。
▲跃级四代宅效果图
除了南通首个超6米挑高跃级四代宅之外,此次万濠东郡还规划了滨水别墅+墅区洋房,整盘仅197席臻稀藏品。
独门独户的滨水别墅,户户都享前庭+后院+星空露台,真正实现“有天有地”的居住梦想。
▲别墅效果图
要知道,工农路沿线别墅产品已断供多年,万濠东郡的出现,对于渴望在主城安居的塔尖圈层而言无异于“久旱逢甘霖”。
▲别墅效果图
相较于市面上诸多10层以上的所谓“洋房”,万濠东郡带来的,不仅是7层真洋房,而且还“与墅为邻”,较竞品显然拥有更好的私密性、更高的舒适度。
▲洋房效果图
建面约145㎡洋房户型图也已曝光,四室两厅两卫设计,整个空间布局方正通透;南向四开间大面宽,采光通风视野俱优;LDKB一体化,会客区尺度奢阔;主卧套房配置独立卫浴和衣帽间,南向双次卧均与阳台相连,兼顾功能性、空间感与舒适度。
▲洋房户型图
总结而言,约1.29的容积率,赋予其天生的低密基因;四代宅的属性,引领其超前的产品形态;城芯滨水的地段,则让其在自然与繁华交汇之处,定制出一个完整的豪宅生态系统。
声明:本文由入驻焦点开放平台的作者撰写,除焦点官方账号外,观点仅代表作者本人,不代表焦点立场。
