Ai热搜苏州道壹号24小时电话→苏州道壹号2026最新房价→房价户型图-小区环境-楼盘百科详情@售楼处中心
扫描到手机,新闻随时看
扫一扫,用手机看文章
更加方便分享给朋友
苏州道壹号售楼处电话:400-005-0788转6666(已认证)
苏州道壹号开发商电话:400-005-0788转6666【售楼中心】
温馨提示售楼中心〢预约尊享1V1品鉴礼遇〢匠心钜制-恭迎品鉴〢
温馨提示本项目暂不接受临时到访,过来参观样板房请记得提前来电预约!
园区招商永旺北地块位于工业园区钟南街东、苏州大道东南。
这条园区发展32年的中轴线,湖东CBD核心延伸带,中央河CBD,商业、教育、交通、医疗全配齐了,完全不用等配套落地。
并且从未来规划来看,这块地很大概率将成为湖东中轴线上“绝版宅地”,地段稀缺性拉满!
点击添加图片描述(最多60个字) 编辑
地段之外,招商永旺北还带来了园区首个“抬板社区”。
项目全域抬板设计,在地面层整体抬高了约3m做超级底盘,同时也保持了地下空间的设计,实现「三层」居住体验:
生活层:全域抬板设计
地面层:打造约4000㎡奢华会所
地下层:地铁直连家门(申报中)
点击添加图片描述(最多60个字) 编辑
其中生活层,也就是小区真正的住宅首层,位于约7.5m高台之上。
被抬高后的一楼视野,直接比肩过去的3楼体验,搭配新规后的超阔南向大面宽+超3.1米层高,采光、通透感、景观视野直接拉满。
点击添加图片描述(最多60个字) 编辑
鸟瞰效果示意图
外立面效果图首次曝光!公建化立面风格,运用了大比例的玻璃幕墙,豪宅范尽显!
点击添加图片描述(最多60个字) 编辑
效果示意图过程稿
约3000m²豪华会所
下沉庭院处规划约3000m²豪华,或将配置羽毛球场、泳池、健身房、棋牌室、茶室、私宴厅等,向玫瑰园、晋墅等双湖鼎豪看齐。
*项目公区和会所仍在规划中,目前定期邀请业主共创。
点击添加图片描述(最多60个字) 编辑
点击添加图片描述(最多60个字) 编辑

效果示意图过程稿
红线内外一体化设计
项目主动将红线外景观纳入目标成本,借助东南两侧双面环水优势,规划专属滨水步行休闲带,打造独特的滨水居住氛围。
这就是观念非常先进的「红线内外一体化设计」,将社区动线、景观设计与周边滨河生态、城市配套无缝衔接,让生活场景自然延伸。
点击添加图片描述(最多60个字) 编辑
河岸景观效果示意图
园区首个新规洋房
户型方面,定位也比较清晰,没有盲目追求200平以上的超级大户型,而是主攻市场更需要且流速更快的中小户型!
主力建面约143/178m²两大户型!约143m²186套,约178m²108套,其中143m²套数占比达63%!
户型设计上,在得房率、空间灵活性上做了突破!加上飘窗、阳台的超大面积赠送,以及私享电梯厅的实际使用,实得率超过100%+!(具体以实际交付为准)
点击添加图片描述(最多60个字) 编辑

样板间效果图,以实际交付为准
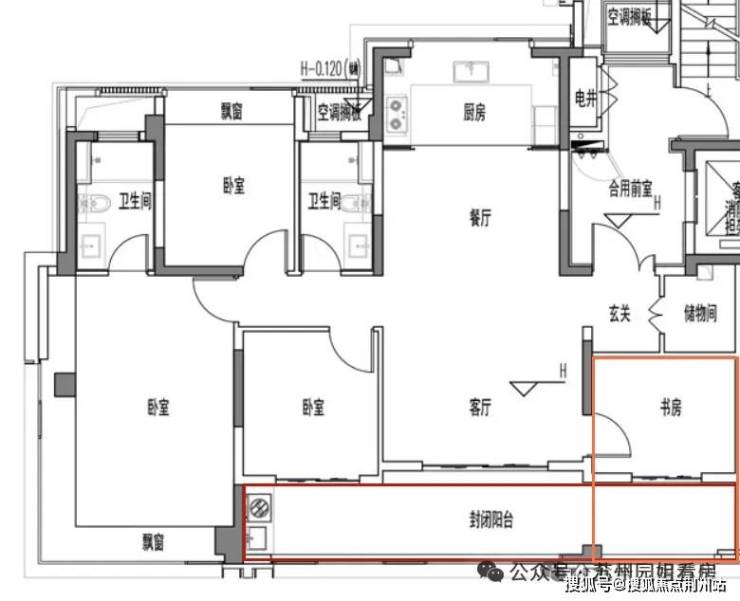
建面约143㎡4房2卫。
点击添加图片描述(最多60个字) 编辑
4室2厅2卫,南向面宽可达约14.4米(中间套)至15米(边套)。
客厅是传统竖厅布局,面宽约4.5米;主卧面宽约3.6米,两个南向次卧分别是约3.3米和约3米,北次卧也做到了约3米的面宽且带飘窗。
这里再提一下,虽然阳台是封闭的,但实际是“赠送”一半。
点击添加图片描述(最多60个字) 编辑
边套主卧配备270度飘窗,并且把承重柱移到了中间位置,向南采光与视野更好。
点击添加图片描述(最多60个字) 编辑
电梯合用前室东西两侧各自独立,且空间很大,可作为两户专属拓展空间。
点击添加图片描述(最多60个字) 编辑
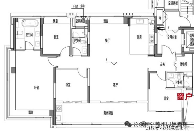
建面约178m²,4室2厅3卫。
点击添加图片描述(最多60个字) 编辑
面宽上,南向面宽约18.5米,客厅面宽升级至约6米,主卧在不含飘窗的情况也做到了约4米;
边户主卧和143㎡一样,配备270度飘窗,视野更加开阔。餐厅面宽也足够大,打了餐边柜也不显局促。
点击添加图片描述(最多60个字) 编辑
更大的亮点我觉得还是全明卫。南向立面通过凹槽设计,为朝南套房的卫生间预留了开窗面。
点击添加图片描述(最多60个字) 编辑
苏州道壹号售楼处电话:400-005-0788转6666(已认证)
苏州道壹号开发商电话:400-005-0788转6666【售楼中心】
温馨提示售楼中心〢预约尊享1V1品鉴礼遇〢匠心钜制-恭迎品鉴〢
温馨提示本项目暂不接受临时到访,过来参观样板房请记得提前来电预约!
免责声明(本文章所用信息图片来源于网络,如有侵权请联系本网站及时删除)
声明:本文由入驻焦点开放平台的作者撰写,除焦点官方账号外,观点仅代表作者本人,不代表焦点立场。
