平江观梅雅园(售楼处) 官网 -平江观梅雅园售楼中心 - 环境 - 户型 - 价格 - 地址 - 楼盘详情 - 配套 - 电话 - 交房时间 - 配套 - 电话 - 交房时间
扫描到手机,新闻随时看
扫一扫,用手机看文章
更加方便分享给朋友
苏州平江观梅雅园售楼处电话:400-005-0788转6666(已认证)
苏州平江观梅雅园开发商电话:400-005-0788转6666【售楼中心】
温馨提示售楼中心〢预约尊享1V1品鉴礼遇〢匠心钜制-恭迎品鉴〢
温馨提示本项目暂不接受临时到访,过来参观样板房请记得提前来电预约!
作为姑苏区本板块断供多年的别墅项目,平江观梅雅园自亮相便备受关注,项目为苏地2024-WG-Z46号地块,紧邻护城河。

总平面图如下:主入口位于江宇路,次入口位于支七路。
分布上,联排别墅沿河排开,洋房沿分布,圈层更加纯粹。小区东侧为主出入口,北侧为次出入口,出入口均设计了汽车坡道,是姑苏核心区罕见的地下停车位。


联排别墅南外立面效果图
项目的外立面让人惊艳,大面积落地玻璃窗+深灰色屋檐+金属线条勾勒,既有现代感又不失姑苏古城古韵底色。

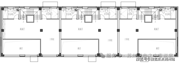
项目公示了1#、5#的户型标准层示意图。
1#联排户型:
一层平面图,南向面宽接近10米,采光面充足;餐客厅一体化,中西双厨,干湿分离客卫,预留电梯位,南向卧室,可作为老人房。

二层客厅采用上空挑空的设计,这种开放式布局拓展了空间的纵深感,赋予居住者开阔的视野体验。并且,挑空区域拥有较大的可改造空间,业主可根据自身喜好与生活需求,灵活打造成书房、休闲区或是艺术展示区等。

三层东西边户均配备一个L型转角露台。该露台开间约8米,赠送面积较大;中间户则带有一个北向露台,虽朝向不同,但也为业主提供了一方静谧的户外空间,满足日常休闲与晾晒等功能需求。

5# 8F洋房
一梯两户,电梯双开门设计!四室两厅三卫,四开间朝南。

具体来看,4开间朝南,南向四开间约15.2米面宽,大宽厅设计,户型方正且通风良好;南北双阳台设计,南向阳台,双开间设计;南向双套房设计,主卧贴心套房设计,配备了私人卫生间和衣帽间;多飘窗设计,有一定的赠送空间。

平江观梅雅园,位于苏州姑苏区苏站路旁。地块距离轨交6号线梅巷站仅不到100米,一站地铁既可轻松到达拙政园苏博站,逛拙政园和博物馆相当便捷。
附近有城北快速路、北环快速路等交通动脉,可直达园区、姑苏、相城等核心区域,此外还有江宇路、苏站路等交通干道,交通脉络发达。

在商业配套方面,距离最近的大型商业就是平江万达商圈,除此之外,周边的盛博广场、阳光城平江悦等商业设施同样成熟完善,业态丰富多样,项目东北方向还有乐德购购物中心,另外项目还自带商业配套,从日常采购生活用品到周末休闲娱乐,都能轻松满足。
还有苏州市平江中学、苏州大学北校区,万达广场,苏州大学附属第一医院(总院)等,周边各类配套优质齐全,是不可多得的优质宝地。
苏州平江观梅雅园售楼处电话:400-005-0788转6666(已认证)
苏州平江观梅雅园开发商电话:400-005-0788转6666【售楼中心】
温馨提示售楼中心〢预约尊享1V1品鉴礼遇〢匠心钜制-恭迎品鉴〢
温馨提示本项目暂不接受临时到访,过来参观样板房请记得提前来电预约!
免责声明(本文章所用信息图片来源于网络,如有侵权请联系本网站及时删除)
声明:本文由入驻焦点开放平台的作者撰写,除焦点官方账号外,观点仅代表作者本人,不代表焦点立场。
