中铁咏月台官方售楼处电话(中铁咏月台)官方网站-中铁咏月台营销中心欢迎您-楼盘详情•最新价格-户型图-容积率-2026.3.04售楼处
扫描到手机,新闻随时看
扫一扫,用手机看文章
更加方便分享给朋友
⭕苏州中铁·咏月台
⭕售楼处电话:400-005-0788转9999(已认证)
⭕售楼处电话:400-005-0788转9999(认证售楼处)
⭕温馨提示:本项目暂不接受临时到访,过来参观样板房请记得提前来电预约!
⭕免责声明:(本文章所用信息图片来源于网络,如有侵权请联系本网站及时删除)

|项目鸟瞰图
咏月台的价值,不止于单一优势的呈现,更在于对归家、社交、自然与美学的完整重构,为居住体验带来全面升维。
1. 人居焕新:苏州首个“首层全架空”社区
评判一个高端项目的诚意,往往看它是否敢于在“看不见的地方”投入成本。咏月台给出了一个教科书级的答案:牺牲可售的宝贵首层面积,只为换来一个宁静、安全且尊崇的归家体系。
这就是其核心创新——首层全架空。这不是简单的技术调整,而是对传统社区规划的一次降维打击。
它将整个社区的生活界面整体抬升约5米,从而实现2大生活场景的彻底革新:
第一,颠覆归家体验:全程无雨,平层入库。
从此告别陡峭的地库坡道与昏暗的地下空间。车辆通过缓坡直接驶入明亮、开阔的架空层,停好车,电梯厅近在咫尺。无论是暴雨倾盆还是购物归来,从下车到入户门,全程优雅从容,鞋不沾湿,重物省力。归家的第一刻,便是尊崇。
第二,颠覆社区安全:纯步行社区,实现人车分流。
所有机动车、非机动车被完全收纳于架空层,社区二层及以上,形成一个零车辆干扰的纯步行安全空间。孩子的肆意奔跑、老人的安心散步、邻里的温馨闲聊,所有美好社区场景的前提——十分安全,在这里得以实现。

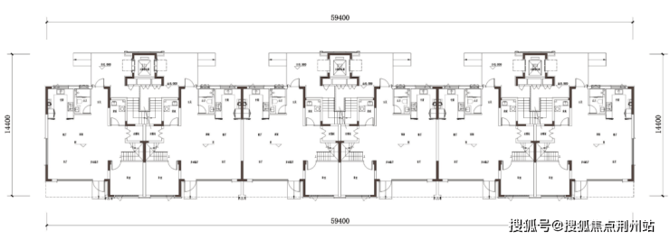
①容积率1.5,打造4F叠墅+四代宅洋房纯低密社区,仅186套。
根据已公示的规划方案,中铁咏月台容积率仅约1.5,全盘建筑限高40米,仅打造3栋4层叠墅和5栋10-11层洋房,共计186户,是个小而精的低密改善社区。

其中叠墅产品全盘仅36套,稀缺性突出。下叠面积约为186㎡和192㎡,上叠面积约为176㎡。

全盘仅36套的叠墅产品提供了极高的附加值。下叠建面约186-192㎡,配备南北双庭院、10米南向面宽及地下室赠送,客厅还带挑空;上叠建面约176㎡,拥有双露台+星空阁楼。


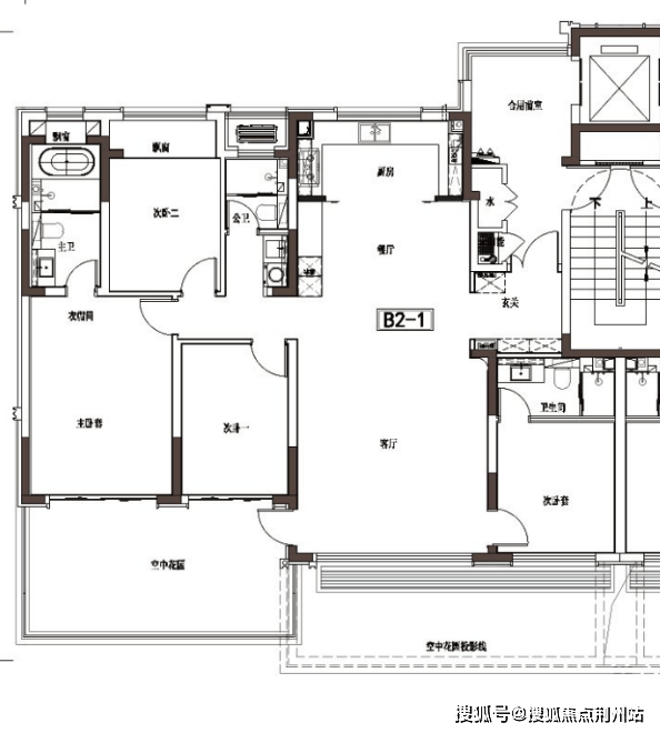
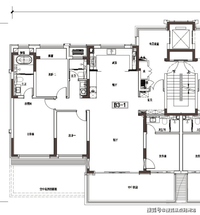
洋房产品包含两种类型。一类为四代住宅洋房,面积约162-164㎡;另一类为普通洋房,面积约132㎡。

项目中的四代洋房户型,设计了“错层双花园”系统:偶数层配备南向私密花园直连主卧,奇数层则设置社交花园衔接客厅。户型拥有约16.65米的南向超大面宽,采用LDKB一体化横厅设计,并配置双套房,得房率非常高。


另外还有宽境洋房建面约132㎡,四开间朝南,LDKG一体化设计,以较为友好的面积段+低总价+高品质,填补吴中城南改善的空白。
②苏州首个!真正的新规红利盘——首层全架空,车停地面、家在云端...
除了低密产品之外,中铁咏月台的最大亮点在于,这是苏州首批落实《改善型住宅技术要点》新规的盘,它创新性打造了苏州第一个“首层架空车库”。

大白话来说就是:它将传统的地下停车场抬升至地面一层,实现了多重突破性优势——
人车完全分流,实现"无雨归家",业主可从架空车库通过归家大堂垂直电梯直接入户;
车库平进平出,提升车行体验感和安全系数,并且车库可以拥有自然采光;
释放约2000㎡下沉庭院空间,用于配置物业服务、托育等功能;
减少地下开挖,降低了对城市环境的影响;
二层住宅相当于普通小区的三层高度,提升了低楼层住户的视野。
⭕苏州中铁·咏月台
⭕售楼处电话:400-005-0788转9999(已认证)
⭕售楼处电话:400-005-0788转9999(认证售楼处)
⭕温馨提示:本项目暂不接受临时到访,过来参观样板房请记得提前来电预约!
⭕免责声明:(本文章所用信息图片来源于网络,如有侵权请联系本网站及时删除)
声明:本文由入驻焦点开放平台的作者撰写,除焦点官方账号外,观点仅代表作者本人,不代表焦点立场。
