苏州沁沄居官方售楼处电话(沁沄居)官方首页网站-沁沄居开发商营销中心-欢迎您-楼盘详情-最新价格-户型图-容积率@2026售楼处中心
扫描到手机,新闻随时看
扫一扫,用手机看文章
更加方便分享给朋友
☎️☎️苏州沁沄居售楼处电话:400-005-0788转接5555【已认证】
☎️☎️苏州沁沄居售楼处位置:400-005-0788转接5555【售楼中心】
☎️☎️房价特价信息丨优惠政策丨详细解答丨在售房源丨在售户型图丨项目介绍丨
周边配套丨VR看房丨楼盘图丨沙盘图丨位置图丨配套图丨售楼处地址丨足不出户丨
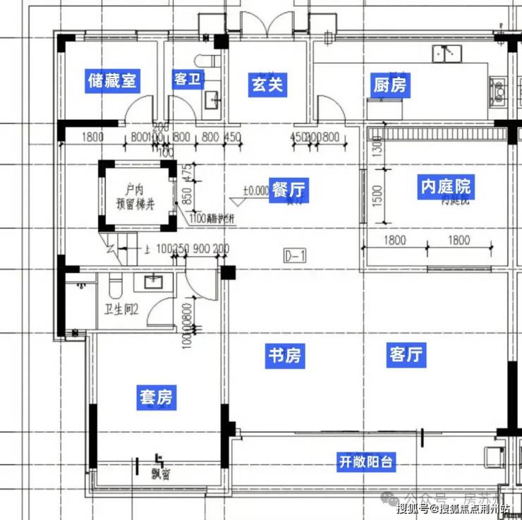
目前部分户型一层平面图已经公示。
先看2#联排,4户,1F层高约3.6米,2F/3F层高约3.3米。
以东西边户为例,首层设置餐客厅、厨房、书房、套房、卫生间以及内庭院,空间非常开阔。
15#联排,4户,1F层高约3.6米,2F/3F层高约3.3米。
这个户型相对小一点,以东西边户为例,一层配置餐客厅、厨房、次卫、次卧以及内庭院等。
叠墅两梯四户设计,电梯双开,相当于一梯一户;
入户内外独立玄关,南向开间约10米,南向1个卧室,北向独立厨房+客卫,餐客厅一体化。
楼盘位置在甪直镇甫澄路西侧、南沙路南侧,隔壁就是城投新盘熙和云起雅园;
周边教育资源丰富,南侧紧邻规划幼儿园,人教社附属实验小学、甪直高级中学都在附近。
☎️☎️苏州沁沄居售楼处电话:400-005-0788转接5555【已认证】
☎️☎️苏州沁沄居售楼处位置:400-005-0788转接5555【售楼中心】
☎️☎️房价特价信息丨优惠政策丨详细解答丨在售房源丨在售户型图丨项目介绍丨
周边配套丨VR看房丨楼盘图丨沙盘图丨位置图丨配套图丨售楼处地址丨足不出户丨
声明:本文由入驻焦点开放平台的作者撰写,除焦点官方账号外,观点仅代表作者本人,不代表焦点立场。
