天津城投时代之城售楼处电话→天津城投时代之城境售楼中心电话→2025天津城投时代之城楼盘百科→楼盘网站→楼盘测评→售楼中心电话→24小时热线
扫描到手机,新闻随时看
扫一扫,用手机看文章
更加方便分享给朋友
天津城投时代之城
售楼处电话▓:400-002-9578转接4444(已认证)
营销中心电话▓:400-002-9578转接4444【售楼中心】
温馨提示:售楼中心〢预约尊享1V1品鉴礼遇〢匠心钜制-恭迎品鉴〢
免责声明:本文所用信息图片来源于网络,如侵权请联系本网站及时删除
✨城投时代之城•二期 朗溪
【时代之城项目核心卖点】
天津城投国企品质+三地铁交汇+百万方大盘+多公园+双学府(天津实验小学东丽学校、天津一中东丽学校)
时代之城 二期优势:
💠位置再升级,距离地铁站约500米,河北区一路之隔
💠产品再升级,区域内唯一架空层产品,打造最高端园林景观
💠配置再升级,搭配业主会所及睦邻空间,彰显尊贵身份
💠立面再升级,采用金属线条加超扁平立面设计,更大气
💠户型再升级,各户型均有多平米赠送空间,出房率更高
一、项目基础信息
【占地面积】:4.45万
【建筑面积】:12.02万
【首开产品】:1#高层,27F到顶,113㎡边户三居、96㎡中户三居、123㎡边户三居
【容积率】:2.7
【绿化率】:40%
【采 暖】:地采暖
【出房率】:高层房本得房率73.6%~75.44%,实际得房率81.5%-83.5%;洋房房本得房率80.6%~83.35%,实际得房率87.1%-92.25%;
【梯户比】:高层2梯4户,洋房1梯2户;
【总层数】:高层27层,洋房7-11层;
【总户数】:1090
【交付时间】:2027年6月30日
【地位比】:1:1.37
【物业】:天津城投物业
【物业费】:高层2.95元/平米/月,洋房2.99元/平米/月,商业4元/平米/月
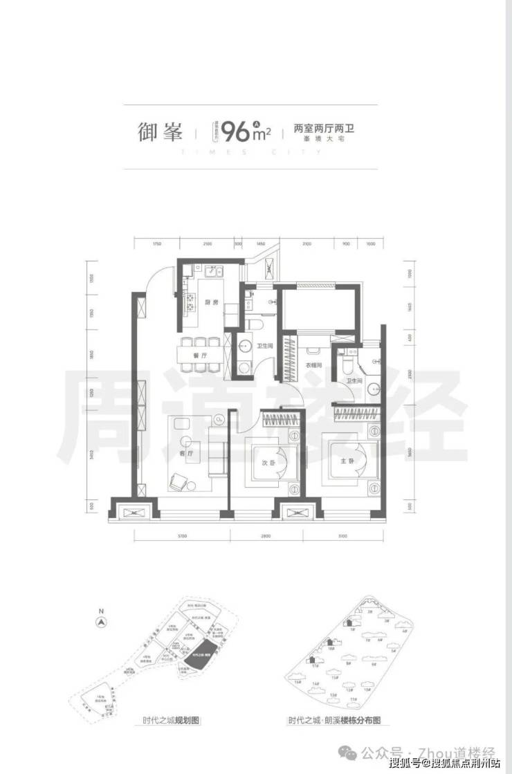
二、户型赏鉴
建面约96㎡户型
建面约113㎡户型
建面约123㎡户型
天津城投时代之城
售楼处电话▓:400-002-9578转接4444(已认证)
营销中心电话▓:400-002-9578转接4444【售楼中心】
温馨提示:售楼中心〢预约尊享1V1品鉴礼遇〢匠心钜制-恭迎品鉴〢
免责声明:本文所用信息图片来源于网络,如侵权请联系本网站及时删除
声明:本文由入驻焦点开放平台的作者撰写,除焦点官方账号外,观点仅代表作者本人,不代表焦点立场。
