【营销中心】天津绿城玉百合售楼处电话→天津绿城玉百合售楼中心首页网站→天津绿城玉百合楼盘百科详情→24小时电话→最新发布!
扫描到手机,新闻随时看
扫一扫,用手机看文章
更加方便分享给朋友
天津绿城·玉白合售楼处电话▓:400-002-9578转接4444(已认证)
营销中心电话▓:400-002-9578转接4444【售楼中心】
温馨提示:售楼中心〢预约尊享1V1品鉴礼遇〢匠心钜制-恭迎品鉴〢
免责声明:本文所用信息图片来源于网络,如侵权请联系本网站及时删除
绿城4.0全架空洋房 美学新著 迭新梅江
🏡【项目基础信息】
• 亮点:绿城4.0全架空洋房 梅江人居新封面
• 项目形态:小高层(18F)/洋房(6-11F)
• 绿化率:40%
• 容积率:2.0
• 产权年限:70年
• 总户数:330户
• 梯户比:小高层2T4/洋房1T2
• 户型:小高约99-114㎡/洋房约104-131㎡
• 装修状况:毛坯交付
• 物业费:4.28元/㎡
• 车位配比:1:1.2
• 行车方式:人车分流
🏆【品牌价值】
绿城品牌&侯台集团 双强联袂 玉质合鸣
侯台集团:
本土房企标杆,深耕津门30载,业务模块多样,涵盖房地产开发、自主工业园区建设、经营租赁、工程建设、商贸经营、投资并购等产业。以城市共建者之姿,与天津发展同频共振。
绿城品牌:
绿城中国,作为中国高端人居领航者,致力于实现“全品质、高质量、可持续”的发展,以建设绿城“好房子”为目标,历经30年淬炼,打造一座又一座奢宅标杆,引领人居迭代进阶。
绿城管理:
绿城管理控股有限公司及其附属公司(合称“绿城管理”),是中国房地产轻资产开发模式的先行者、引领者。绿城管理成立于2010年,是绿城中国(3900.HK)附属公司,也是绿城品牌和代建管理模式输出的主体。2020年7月,绿城管理在香港联交所主板上市(股票代码9979.HK),成为中国代建第一股。
玉质和鸣:
2025年,绿城品牌联袂侯台集团,携创新作品绿城·玉百合重回河西,4.0全架空超级底盘社区首映梅江,浸润繁华深处,绽放百合芬芳。
🔝【十大必买理由】
1、绿城琢玉
中国高端人居领航者绿城,历经30年淬炼,于天津深耕10载。2015年,绿城在梅江板块,以天津全运村为起点,正式与天津结缘,也成为大梅江片区的开局者、城市版图的共建者。10年间,绿城在天津陆续立著16座人居经典,每一个作品皆成为区域乃至城市的产品力典范。2025年,绿城再入河西,携手本土房企标杆侯台集团,于梅江之芯,以一席人文新著——绿城·玉百合,演绎城市奢居的至臻理想。
2、梅江之芯
每一朵百合都绽放在城市的芯上。此次百合序列首映津门,亦选择城市臻贵地脉,落子河西区梅江板块的中芯地段,承续这片天赋土地的奢宅基因,引领板块人居迭新。
3、发展之极
随着2021年天津市规划局网站公布的《河西区解放南路地区03单元西区控详规修改方案》,热电厂板块规划的逐步清晰,天津市南部地区活力微中心的定位凸显,落子陈塘居住区核芯的绿城·玉百合,将成为梅江发展4.0时代的封面作品,为下一个城市CLD(中央生活区)再续新篇。
4、集萃万象
绿城·玉百合拥享新梅江片区全维配套,医疗资源在侧;河西环宇城、山姆会员店、中冶和悦汇、龙湖天街等重点商圈环绕,梅江活力之芯规划约14公顷商服用地;梅江公园与中央绿轴公园绿意环绕,悦享丰盈。项目周边三条主干道环绕,解放南路、洞庭路、珠江道于此交汇,地铁8号线(建设中)、6号线、10号线三轨便捷通达城市。
5、空中奢境
绿城·玉百合勾勒4.0洋房奢境,首个全架空低密住区迭新梅江。项目巧妙利用原始场地的高差,通过多层次立体设计,将自然景观与建筑空间有机融合。下沉式庭院、观景云幕阳台的创新设计,令建筑不再局限于传统平面,而是通过高差转换与立体穿插,打造更高阶的奢居生活想象。
6、绿城美学
30年间,绿城始终走在行业审美前沿,此次以玉百合的惊艳呈现,作答领先“下一个十年”的建筑先潮。建筑取意百合花形态与身姿,温润弧面与大面积“蓝宝石”玻璃结合,搭配精致高级的线条感设计,以百合之优雅,代言天津人居封面。
7、立体山水
绿城·玉百合周边公园环伺,绿意围绕。同时,内部园林的打造汲取了中国江南园林的造园精髓与哲学意境,依循“双轴四境五进八景”的严谨规制,塑造一座度假式立体奢香山水园林。自此内外双园规划,为项目带来不可复制的生态低密属性。
8、馥香会所
绿城·玉百合创领梅江,打造约1700㎡的酒店式动静双艺术会所空间,户均可享面积大幅超越同期产品,内部规划9大核心主题,涵盖休闲、娱乐、运动、儿童成长等。金玉门庭,海派风情,优雅之境,还原生活本真。
9、臻质服务
项目引入绿城自持物业,绿城物业已连续13年荣获业主满意度第一,始终为客户提供高端服务,沁润居者日常。
10、典藏户型
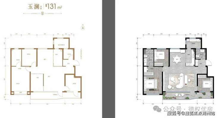
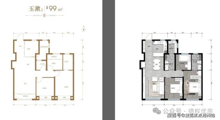
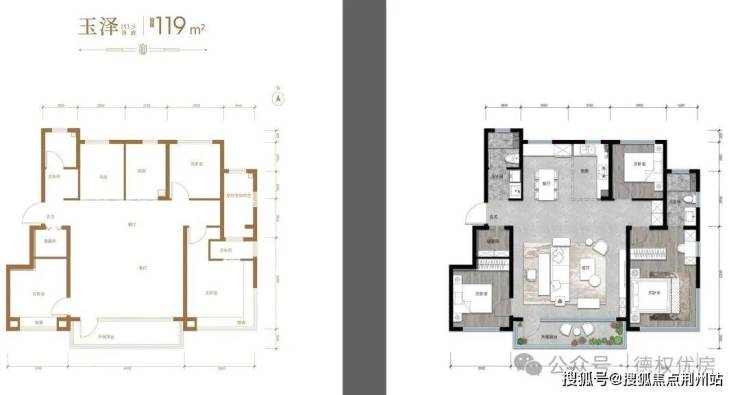
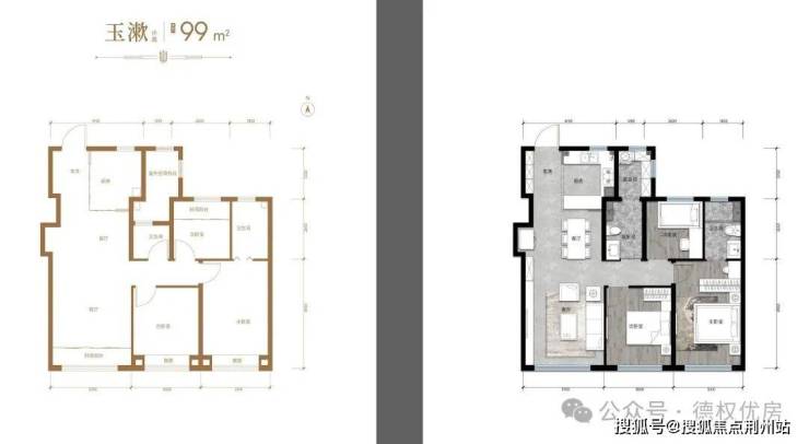
绿城·玉百合打造建面约100-130㎡美学奢宅,创新灵活空间容纳全周期居住需求,全落地窗设计通透明亮,无界观景;超高得房率,空间舒阔从容。
🏠【户型鉴赏】
天津绿城·玉白合售楼处电话▓:400-002-9578转接4444(已认证)
营销中心电话▓:400-002-9578转接4444【售楼中心】
温馨提示:售楼中心〢预约尊享1V1品鉴礼遇〢匠心钜制-恭迎品鉴〢
免责声明:本文所用信息图片来源于网络,如侵权请联系本网站及时删除
声明:本文由入驻焦点开放平台的作者撰写,除焦点官方账号外,观点仅代表作者本人,不代表焦点立场。
