万科·高福里首页网站-万科高福里售楼处电话-万科高福里楼盘详情-交房时间-地址-最新房价户型图-小区环境-楼盘详情-交房时间-周边配套-售楼处电话
扫描到手机,新闻随时看
扫一扫,用手机看文章
更加方便分享给朋友
上海万科·高福里
售楼处电话▓:400-002-9578转接4444(已认证)
营销中心电话▓:400-002-9578转接4444【售楼中心】
温馨提示:售楼中心〢预约尊享1V1品鉴礼遇〢匠心钜制-恭迎品鉴〢
免责声明:本文所用信息图片来源于网络,如侵权请联系本网站及时删除
前两天,上海市中心的豪宅项目万科·高福云境首批开盘了,据说当天有25套1.3-1.7亿的房子被一抢而空。而开盘前有网友在楼盘偶遇了演员胡歌夫妇,不知道他们心仪的是哪个面积段。

而被一抢而空的这些房子,可都是建筑面积约 590㎡的户型啊。高福云境一天的销售额,居然超过了去年全上海该价段以上的成交总额。(如上图)
02
项目简介
上海万科·高福里是位于上海市黄浦区淮海中路板块的核心项目,地处衡复历史文化风貌区核心地段,东接延中公园,南邻长乐路,西毗瑞金一路,北靠巨鹿路。(建设范围如下图)
项目地处“ 巨富长 ”黄金三角区,步行5分钟即可到达地铁13号线淮海中路站 ,毗邻南京西路 、 淮海路等五大核心商圈,周边环绕着环贸iapm 、恒隆广场等高端商业体。
项目由万科集团(持股24.99%)与上海高福房地产开发有限公司联合开发,总建筑面积约16.8万㎡,容积率2.66,绿化率≥25%。
项目包含1栋43层、150米高的超高层住宅(126套大平层)及47栋2-3层石库门风貌别墅。而这次开盘的这栋超高层住“高福云境”只是项目的公寓部分,西侧还有别墅在建设中。(如下图)
其实现在上海市中心像这样的“高低配”项目很多,基本都是一两栋塔楼外加一些风貌别墅。
我在前两天的文章里也提出了一个设想,有兴趣的朋友可以扩展阅读:《为什么开发商不把“会所”设在顶楼?》
03
户型解析
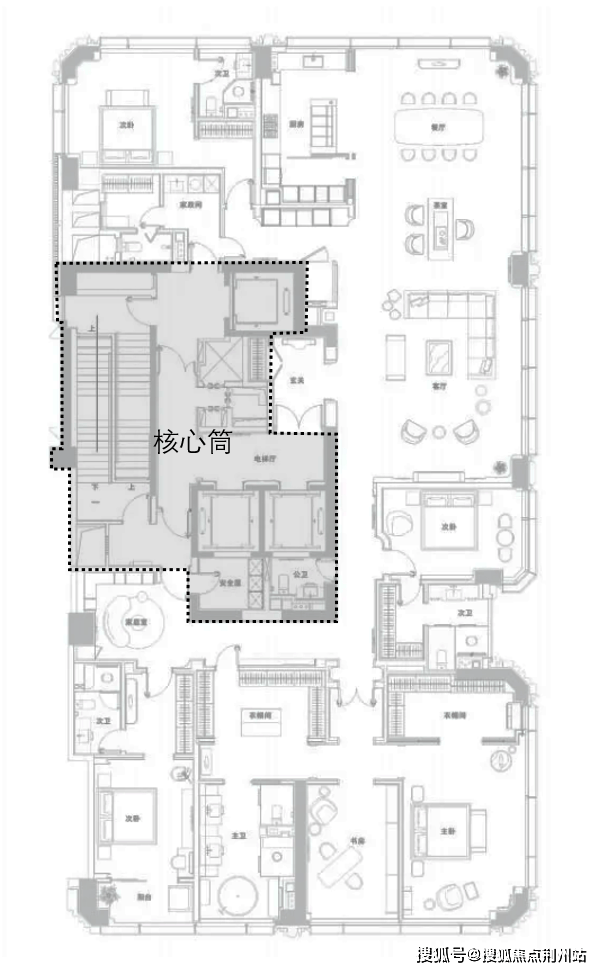
虽然这个项目的塔楼看上去只是一栋楼,但其实它是由两个单元组合而成的,如上图我把核心筒的位置标注了一下,最贵的590平户型位于右侧的高区(如上图A3位置)

但如果都是590平左右的大户型,市场未必能消化的了。所以又将平面进一步进行了分解,就形成了竖向上的面积分层,户型变成了约280,300,320,580四个面积段。(如上图)

而这个最贵户型就是位于高区的东边套,这个位置景观最佳,后面我会具体展开。(如上图)
万科·高福云境590户型,如上图是一个4+1房3厅6卫的户型。不管是从面积还是从地段来说,这都是顶奢产品了。
动静分区

几乎1:1的动静面积分区,而且几乎是对称的布置方式,自然是迎合了不少顶级富豪“迷之自信”的心理需求。至于其他的LDKS一体化设计等,在这么大的户型里其实就不值得一提了。

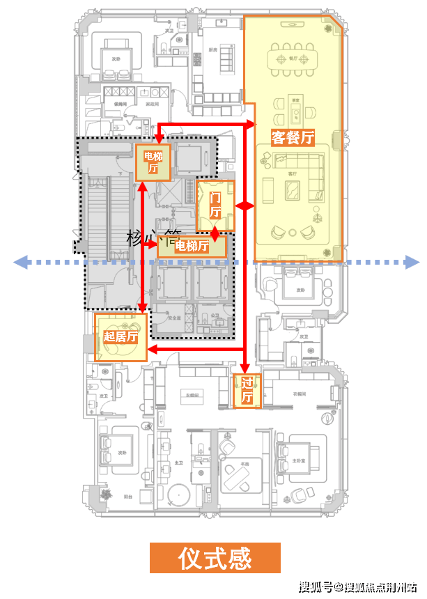
仪式感
这个户型有3个出入口,动线绕着核心筒做了一个洄游。以客厅出入口为例:从电梯厅到门厅,再到客餐厅,最后到卧室的过厅,在动线上形成了一个完整的序列,营造出了一定的仪式感。
但因为是洄游动线,所以不管是到了主卧区、还是到了客餐厅,它又可以绕到另外两个出入口。(如下图)
虽然这个户型的面积很大,但是特地花在仪式感上的并不多。只有进入客餐厅的位置做了一个门厅,其他都是结合着起居厅、电梯厅做的文章,这也比较符合万科对面积的“极致利用”理念。(如下图)

对于顶豪户型来说,仪式感和私密性是最关注的点,其他的分析我觉得也没什么必要,也就不展开了。
04
景观分析
分析完了户型的套内,我想:和一个户型关联程度最大的,莫过于是景观了。这个项目的景观很有特点,所以我专门用一个章节来展开。
首先,这个项目的东侧和北侧有两个公园,分别是博爱园和辅德里公园。虽然面积不算很大,但是市中心有这么大的绿地,对于一个项目来说是及其稀缺的资源了。(如上图)

其次,这个项目处于衡复历史文化风貌区核心地段,这一区域是上海历史建筑最为集中的区域之一,拥有石库门建筑群等大量历史文化遗产。(如下图)

而对于顶级豪宅来说,除了地面的景观之外,更关心的是空中的风景。之所以将最贵户型安排在东侧,将客厅和主卧室也靠近东侧,其实是有原因的。

因为东面可以直接看到上海的“陆家嘴三件套”,这算是最顶级的景观资源了。而北侧则是上海浦西的天际线。(如下图)

而项目的南侧因为没什么高大建筑,所以显得比较空旷,能够充分的享受阳光。(如下图)

这个项目之所以会被市场疯抢,可能也是因为区位比较特殊,景观资源比较丰富吧。

上海万科·高福里
售楼处电话▓:400-002-9578转接4444(已认证)
营销中心电话▓:400-002-9578转接4444【售楼中心】
温馨提示:售楼中心〢预约尊享1V1品鉴礼遇〢匠心钜制-恭迎品鉴〢
免责声明:本文所用信息图片来源于网络,如侵权请联系本网站及时删除
声明:本文由入驻焦点开放平台的作者撰写,除焦点官方账号外,观点仅代表作者本人,不代表焦点立场。
