苏州绿城兴贤澜颂(售楼处) 网站首页 - 绿城兴贤澜颂销售中心 - 环境 - 户型 - 价格 - 地址 - 楼盘详情 - 电话 - 配套- 电话 - 交房时间
扫描到手机,新闻随时看
扫一扫,用手机看文章
更加方便分享给朋友
🌈苏州绿城兴贤澜颂售楼处电话☎️400-002-9578转接5555(专人接听)
🌈苏州绿城兴贤澜颂营销中心电话:☎️400-002-9578转接5555【营销中心】
🌈温馨提示:拨打400电话,听到嘀声后,输入分机号5555即可!
项目是北新区板块比较少见的低密度项目,容积率仅 1.2,产品为3F联排、6F叠墅和11F洋房。其中项目的墅类在板块内甚至算是近几年的断供产品。
今年改善可以选这里吗?最新测评来了!

联排+叠墅+洋房!板块少见低密项目
绿城兴贤澜颂,即苏地2024-WG-Z34号地块,位于高新区经开区(镇)鸿禄路东、中虹路北,是2024年12月7日,苏州永昌置业有限公司以底价78463万元竞得,成交楼面价11500元/平。
今年5月份,绿城成功中标代建该地块,这意味着——新区再迎绿城高端别墅系列!
项目目前在新区永旺梦乐城公开了城市展厅,昨天公开示范区,这也意味着项目距离入市更近了一步!

根据规划,该项目总用地面积:56857平,容 积 率1.2,总 户 数375户。
项目拟建4栋11层洋房,3栋6F叠墅,32栋3层联排别墅,其中洋房为全装修交付,同时社区设计了私密庭院+下沉式会所。
项目大区营造1轴3心8大景观,以“京杭古韵,繁华姑苏”为设计主题,汲取<姑苏繁华图>八景的东方设计美学语言,营造闲适自在的山水园林度假氛围。

下沉式会所营造度假式的生活体验。
合院以金属型材+石材一体板搭配;全户型通透大面积玻璃运用;洋房深浅色调灵动搭配;洋房现代简约线条,舒展挺拔。
合院的中式屋檐,借景框景的建筑结构,合院古铜色金属色调,传统对称建筑结构。

面积段出炉 两种规划户型出炉
绿城兴贤澜颂目前还没有公布官方户型图,不过项目的户型面积段已经发布了!
合院:建筑面积约280、360、410、470平;
叠墅:建筑面积约170、187平上叠/中叠;建筑面积约270、300平下叠;
洋房:建筑面积约117、136、143平;

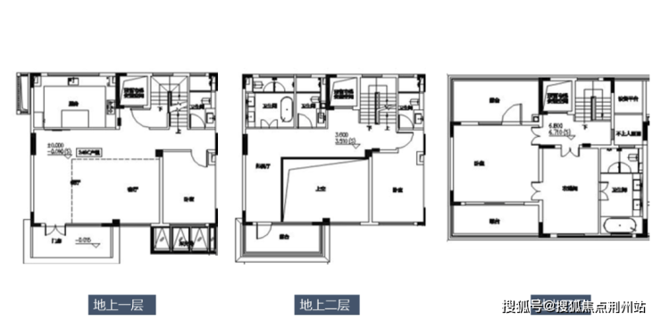
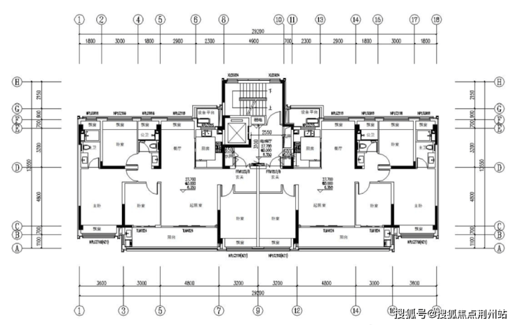
项目此前发布联排和洋房的规划户型图。
联排别墅户型】客厅挑空,大面宽

【洋房户型】四面宽,1梯2户高得房率


浒墅关板块
绿城兴贤澜颂,即苏地2024-WG-Z34号地块,位于高新区经开区(镇)鸿禄路东、中虹路北,属于浒墅关板块!
周边界面来看,其实居住氛围不错,北面是住宅小区阳山花苑,东面是汇金广场和住宅用地,南面是河流。

🌈苏州绿城兴贤澜颂售楼处电话☎️400-002-9578转接5555(专人接听)
🌈苏州绿城兴贤澜颂营销中心电话:☎️400-002-9578转接5555【营销中心】
🌈温馨提示:拨打400电话,听到嘀声后,输入分机号5555即可!
声明:本文由入驻焦点开放平台的作者撰写,除焦点官方账号外,观点仅代表作者本人,不代表焦点立场。
