东吴序营销中心(苏州东吴序售楼处中心)吴中东吴序小区欢迎您-苏州东吴序周边环境-户型-价格-地址-楼盘详情-户型配套-售楼处电话-交房时间
扫描到手机,新闻随时看
扫一扫,用手机看文章
更加方便分享给朋友
苏州东吴序
🌈🔥售楼处电话 ☎️400-002-9578转接3333【售楼中心】【已认证】
🌈🔥营销中心电话☎️400-002-9578转接3333【营销中心】【已认证】
🌈🔥营销中心电话☎️400-002-9578转接3333【营销中心】【已认证】
🌈🔥售楼中心 〢预约尊享1V1品鉴礼遇 〢匠心钜制-恭迎品鉴〢
免责声明:【本文所用信息图片来源于网络,如侵权请联系本网站及时删除】
规划4栋3F联排+2栋8F洋房,一共只有78套房子!

面积段已经曝光,精装洋房约169㎡!联排约215-245㎡!
正式户型图暂未出炉,可参考公示户型——
先看联排,地上3层,独立入户,面宽约11米。
首层是LDKB一体化设计+老人房,二层以上南向全套房+全明卫设计,还有超大的露台与挑空赠送~


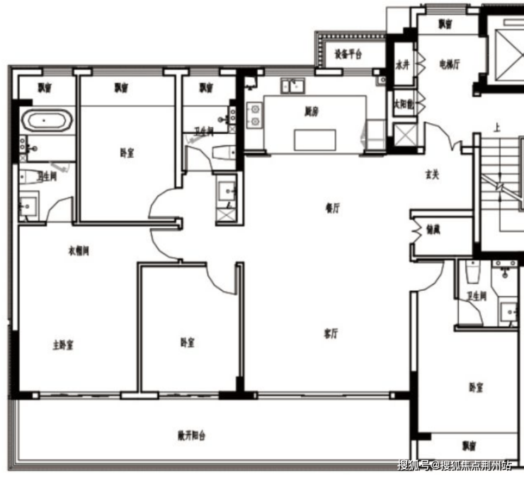
洋房约169㎡4房3卫,南向面宽约15米,入户带玄关+储藏室,全屋飘窗赠送,朝南双套房!
整个户型最大的亮点,必须是三联阳台,开敞设计,赠送面积相当可观!

洋房外立面窗墙比非常感人,阳台超长!

入户大堂品质和颜值都非常在线。

板块时隔5年再上新,又是罕见低密别墅盘,周边地缘终于等来了改善好机会!
苏州东吴序
🌈🔥售楼处电话 ☎️400-002-9578转接3333【售楼中心】【已认证】
🌈🔥营销中心电话☎️400-002-9578转接3333【营销中心】【已认证】
🌈🔥营销中心电话☎️400-002-9578转接3333【营销中心】【已认证】
🌈🔥售楼中心 〢预约尊享1V1品鉴礼遇 〢匠心钜制-恭迎品鉴〢
免责声明:【本文所用信息图片来源于网络,如侵权请联系本网站及时删除】
声明:本文由入驻焦点开放平台的作者撰写,除焦点官方账号外,观点仅代表作者本人,不代表焦点立场。
