紫荆府(售楼处) 首页 -武汉招商紫荆府销售中心 - 环境 - 户型 - 价格 - 地址 -楼盘详情 - 配套 - 电话 -招商紫荆府交房时间 - 配套 - 电话
扫描到手机,新闻随时看
扫一扫,用手机看文章
更加方便分享给朋友
武汉招商紫荆府售楼处电话:400-002-9578转6666(已认证)
武汉招商紫荆府售楼处电话:400-002-9578转6666【售楼中心】
温馨提示售楼中心〢预约尊享1V1品鉴礼遇〢匠心钜制-恭迎品鉴〢
温馨提示本项目暂不接受临时到访,过来参观样板房请记得提前来电预约!
紫荆位于前海妈湾听海大道,占地约1.5万㎡,住宅建面约6.6万㎡,容积率5.14,共有三栋住宅组成,层高36-37F,共485户,车位595个,车位比1.1.2,4梯5户,主推约96㎡稀缺三房、111㎡3+1房、122㎡四房、142㎡四房。户型设计了大客厅、宽景阳台、阔景飘窗等,拥有山海河多重景观资源,计划品质精装交付。户型采用建筑新规设计,户户大阳台,4梯5户,分布式电梯设计,独立电梯厅。

从位置上看,妈湾是唯一一个在三个湾区里面拥有270°视野,两面临海,容积率极低,未来有希望成为高端宜居生活住区。图中看清楚妈湾未来的配套规划,有沿滨海岸线建设金融博物馆、改革开放博物馆、国深博物馆、海洋博物馆、渔人码头、前海新中心地标等市政配套集群。
根据规划,妈湾有2.9平方公里的土地由招商局集团和前海管理局合资成立的公司统一开发运营,最新定位是前海深港国际服务城,与桂湾深港国际金融城共同组成了前海双核,是前海扩区后的首要、重点推进项目。
而在此前,妈湾先导区还曝出丝路长廊、海丝小镇、1.6平方公里的空中平台、前海新地标等规划,将建设国家馆、国际经贸组织和国际文化交流组织等集群,并引进国内、国际总部企业集群。
此外,妈湾还确定要牵手腾讯,对标世界第一个智慧城市迪比克,打造以5分钟步行生活圈为基本功能模块的智慧理想人居空间。湾是前海三湾中唯一拥有山海合一资源的板块。湾背靠大小南山,对望大铲湾腾讯科技城,既有内湾又有外海,拥有“山、海、林、城、岛、港、湾、河”等优势生态资源。
要知道,市政配套可以从无到有,但自然资源是不可再生亦不可复制。即使放眼全球,有着丰富生态资源的片区往往价值更高。妈湾还是前海三湾中面积更大、容积率更低的片区。妈湾面积高达726.5公顷,比桂湾(295公顷)和前湾(310公顷)的总和还要多出20%,而且容积率仅为1.28-1.48,可开发空间充足、舒适度高,大有可为。
此等优质的地理位置+优越的自然资源,是打造低密生态豪宅住宅区的不二选择,深圳很难再找出第二个这样的区域。这也就是官方不着急最先发展妈湾的原因。先建设配套、发展人才,再建房,增补前湾和桂湾的居住和公共服务功能,这样才是一个板块的良性发展。
交通配套周边共规划6条地铁线、2条城际轨道、1条妈湾跨海隧道及1个海空口岸。距5号线妈湾站约550m,听海大道贯穿前海,可短时间通达南山、福田、宝安,快速链接大湾区生活圈
商业配套领玺一期项目自带16.7万平商业,加上不远处颐湾府底商,基本可以满足日常生活。印里首期商业(约3万平),去年9月正式开业,会有愈欣书店、SEESAW咖啡、罗森便利店、丘大叔柠檬茶等多个品牌入驻
教育配套项目周边拥有15所幼儿园、4所义务教育学校,还有荔湾小学和深大附中等学校都在周边。此外项目靠近多所国际学校,拥有3000到5000个名额,包括荟同国际学校、礼德国际学校、英国国王学校(深圳分校)以及深圳哈罗国际学校。临近小区南侧有一块九年制教育用地,但目前未招标。入住早期可能要到妈湾南二外学校或者前湾南二外学校上学。
户型:新规设计、高使用率,规划主力为3-4房产品。
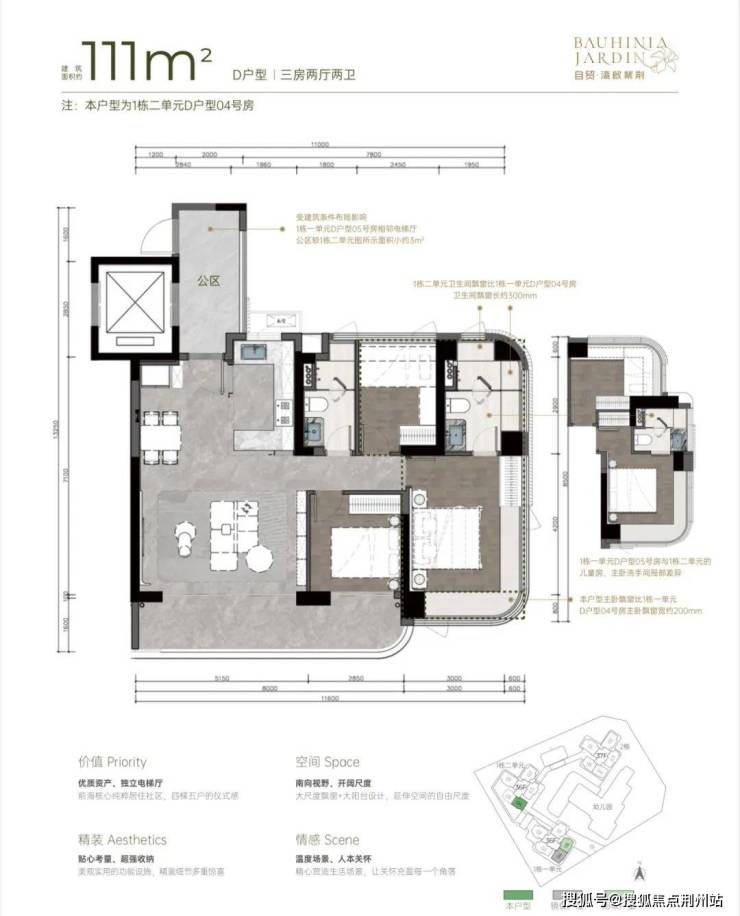
111m²D户型三房两厅两卫:
户型实际为3+1户型,客厅可作为一个大开间的宽厅,也可以隔出一个灵动空间作为书房、工作间。主卧空间南北通透,飘窗也得到了进一步的有效利用。同样是贯通式阳台联通客厅、卧室,阳台的宽度要比96㎡户型大许多,空间尺度提升明显,且有东南、西南两种朝向。
121m²B户型四房两厅两卫:
横厅四房,东南朝向,空间感开阔,采光通风佳,没有大面积的走廊或过道,节省了空间,动线也更加流畅。主卧拥有更加开阔的景观面,大面积的弧形无柱飘窗,将外部的自然光线引入室内,空间更加明亮宽敞。
122m²C户型四房两厅两卫:
双龙抱珠户型,书房分布于客厅另一侧,且难得是双面采光+270°景观视野。主卧南北通透,且拥有十分开阔的景观面。贯通式阳台联通客厅以及靠近动区的次卧,实现长观景阳台。
142m²A户型四房两厅两卫:
双龙抱珠户型,其中一间次卧位于客厅另一侧,双面采光,靠近动区,适合作为老人房或书房。客餐厅南北通透,兼顾横厅与竖厅优点,空间感足,利用率高,动静分离、干湿分离设计合理。贯通式超长宽境阳台,采光舒适度高。
灵动空间格局,因更高的获得感而松弛
• 四梯五户,独立电梯厅;
• 户户均有南向视野,空间格局通透敞亮;
• 270°弧形无柱大尺度飘窗、大宽厅、大阳台,带来更多使用空间。
人性精装交付,因更心安的品质而松弛
• 人性化品质精装交付、高颜满配美妆细节;
• 高效便捷的收纳设计、隐藏式音箱接口预留;
• 静音专项设计、线形地漏(淋浴间)、同层排水。
项目临近前湾公园,虽非一线临河或临海,但前湾公园的建成将形成一条延续性的生态景观长廊,为居民提供浪漫的休闲散步之地。
武汉招商紫荆府售楼处电话:400-002-9578转6666(已认证)
武汉招商紫荆府售楼处电话:400-002-9578转6666【售楼中心】
温馨提示售楼中心〢预约尊享1V1品鉴礼遇〢匠心钜制-恭迎品鉴〢
温馨提示本项目暂不接受临时到访,过来参观样板房请记得提前来电预约!
免责声明(本文章所用信息图片来源于网络,如有侵权请联系本网站及时删除)
声明:本文由入驻焦点开放平台的作者撰写,除焦点官方账号外,观点仅代表作者本人,不代表焦点立场。
