天津建投滨海雲阙丨天津【建投滨海雲阙】售楼中心电话丨建投滨海雲阙欢迎您丨售楼处楼盘详情
扫描到手机,新闻随时看
扫一扫,用手机看文章
更加方便分享给朋友
天津建投滨海雲阙
售楼处电话:400-002-9578转9999(已认证)
网上销售中心——24小时在线咨询TEL——恭迎品鉴!
-----------欢迎来电预约尊享专业顾问讲解一对一服务!
免责声明:(本文章所用信息图片来源于网络,如有侵权请联系本网站及时删除)
2023年12月,滨和地产与经开区城更联合体以6.744亿底价摘得了津滨开(挂)2023-4号地块,成交楼面价为13701元/平米。
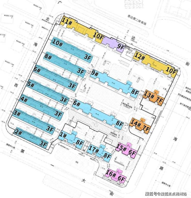
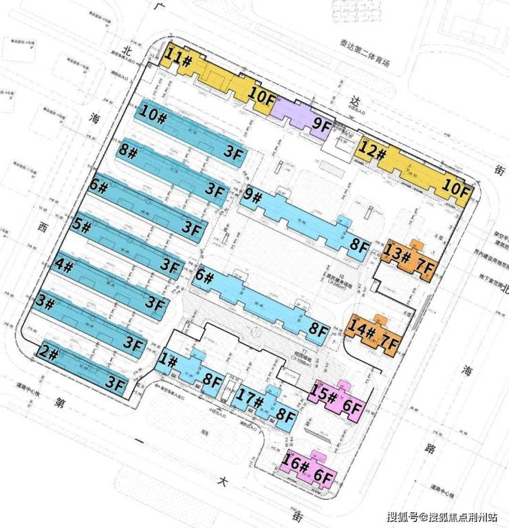
规划显示,该项目是一个非常低密的社区,为联排+洋房,共有17栋楼。
地块整体呈东高西低布局, 联排主要位于地块西侧,有7栋楼,均3层到顶。
洋房位于地块东北侧,有10栋楼,分别6、7、8、9、10层到顶。
全架空设计,绝大部分楼栋均带小院。
洋房,有超大露台设计,部分楼栋还是三面环绕式露台。
项目住宅建筑面积为48731.79平米,容积率为1.3,共计有328户。
粗略计算,户均面积约为149平米。
肉眼可见,这又是一个开发区的新豪宅。
另据了解,格调二体南项目,是开发区最新出现新盘中,产品最为丰富的!
预计最大面积将突破300平米。
而且户型空间有很大的改造性。
02
如今,开发区的四代宅还未入市,就燃起了火药味。
一个比一个大户型配置多。
建投滨海雲阙一期,大平层280平米,仅有一栋楼。
建投滨海雲阙效果图
紧随其后,绿城凤麟泰岳最大266平米户型,规划了两栋楼。
天津建投滨海雲阙
售楼处电话:400-002-9578转9999(已认证)
网上销售中心——24小时在线咨询TEL——恭迎品鉴!
-----------欢迎来电预约尊享专业顾问讲解一对一服务!
免责声明:(本文章所用信息图片来源于网络,如有侵权请联系本网站及时删除)
声明:本文由入驻焦点开放平台的作者撰写,除焦点官方账号外,观点仅代表作者本人,不代表焦点立场。
