【官网】苏州雅韵玖里售楼处电话(首页)-2026苏州雅韵玖里楼盘详情·最新价格-户型图·容积率-Ai热搜·最新动态-看房热线
扫描到手机,新闻随时看
扫一扫,用手机看文章
更加方便分享给朋友
苏州雅韵玖里售楼处电话▓:400-005-0788转接4444(售楼处已认证)
苏州雅韵玖里营销中心电话▓:400-005-0788转接4444【营销中心】
温馨提示:售楼中心〢预约尊享1V1品鉴礼遇〢匠心钜制-恭迎品鉴〢
免责声明:本文所用信息图片来源于网络,如侵权请联系本网站及时删除
目前姑苏区关注度、期待值最高的产品古城核心地段、低密别墅、朗诗科技系统顶级配套的王炸组合,叠加姑苏别墅的稀缺buff成为苏州改善市场的“香饽饽”
一方面,地段条件非常好。
护城河以内的黄金位置,位于姑苏区莫邪路以东、后庄路以北,地处苏州古城核心区。文化地标环绕,与平江历史文化街区一河之隔,紧邻相门古城墙,周边遍布苏州大学、耦园等人文地标,文脉底蕴深厚。
西北侧就是苏州潮奢商业新地标仁恒仓街,集高端零售、餐饮、文化体验于一体。1、2、4、6号线环绕,多条主干道交汇,出行效率极高。周边最近的朗诗相门绿郡二手房挂牌均价在5万左右,说明这个地段还是比较能打的。
另一方面,产品属性稀缺,只有94套科技别墅+洋房。
在寸土寸金的姑苏主城,容积率1.2的住宅项目极为罕见,保证了居住舒适度。项目仅规划5栋建筑,其中3栋6F洋房+2栋6F叠墅,总户数仅约94户,僧多粥少,就注定了它足够有热度,也不会愁卖。
项目主力户型都是大户型,直接瞄准了苏州的高端改善客群,另外还有朗诗科技系统赋能。
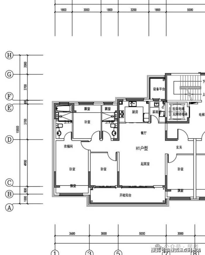
洋房户型4房2厅2卫还带家政间
3房朝南,南向总面宽约14.6米
LDKB一体化设计,客厅开间约5米
外接8米双联阳台连接南次卧
主卧开间约3.6米,全屋多飘窗
3-4层中叠南向面宽约10.1米
首层南向套房+约6.5米大横厅
公区面积超50㎡
重点是带大面积空中庭院
超大赠送面积
另外,除了朗诗这个人气盘之外,今年姑苏区还有3大纯新别墅,共同组成姑苏别墅F4,扛起姑苏别墅的大迭代。
①平江护城河旁!3F联排、大面积洋房!高清户型图曝光...
苏地2024-WG-Z46号地块,案名为云栖海棠里,位于平江街道梅巷站附近,紧邻护城河,地块占地约1.18万㎡,也非常迷你,成交地价18022元/㎡。容积率低至1.05,为商住用地,自带商业配套。产品规划以低密度别墅为主,拟建9栋3F联排别墅和2栋8F洋房。
联排约228㎡户型(参考)如下
大面宽的设计,并且赠送空间非常可观
一楼客厅上方可以挑空,顶层带超大露台
洋房约179㎡户型如下
4房2厅3卫
南向四开间约15.2米面宽
南向双套房+南北双阳台
入户玄关,带家政间
客厅和南次卧外接大面积开敞双联阳台
主卧套房设计,全屋多飘窗

苏州雅韵玖里售楼处电话▓:400-005-0788转接4444(售楼处已认证)
苏州雅韵玖里营销中心电话▓:400-005-0788转接4444【营销中心】
温馨提示:售楼中心〢预约尊享1V1品鉴礼遇〢匠心钜制-恭迎品鉴〢
免责声明:本文所用信息图片来源于网络,如侵权请联系本网站及时删除
声明:本文由入驻焦点开放平台的作者撰写,除焦点官方账号外,观点仅代表作者本人,不代表焦点立场。
