苏州【晋源雅院】丨2025营销中心真实发布丨售楼处电话-销售中心-环境-户型-价格 -地址-楼盘详情-配套-电话-交房时间
扫描到手机,新闻随时看
扫一扫,用手机看文章
更加方便分享给朋友
苏州【晋源雅院】
🍂 售楼处电话📞400-112-7077【24小时在线,周末无休】【📞已认证】
🍂 营销中心电话📞400-112-7077【24小时在线,周末无休】【📞已认证】
🍂 开发商营销中心-----欢迎来电预约尊享折扣-----匠心钜制恭迎品鉴

项目概况
位置:东华林街1号,紧邻金鸡湖和独墅湖,双湖一线湖景资源稀缺。
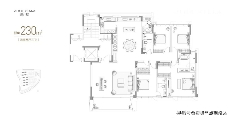
产品类型:低密洋房(约230-350㎡)与联排别墅(约415-717㎡),容积率仅1.02,户数约320套。
开发背景:星合控股深耕苏州20余年,代表作包括晋园别墅、水巷邻里等,产品以高端定位和稀缺性著称。
核心优势
地段稀缺:双湖板块仅剩不到1%的可开发用地,项目独占一线湖岸线资源。
产品设计:由新加坡SCDA建筑设计事务所操刀,外立面采用瓷纹釉面陶板+金属铝板格栅,洋房层高3.2米,别墅层高首层3.8米、二层3.4米、三层3.9米。
配套服务:约7000㎡下沉式会所,含恒温泳池、健身房、瑜伽房、宠物SPA等高端设施;社区绿化率达50%,园林景观由TROP设计,融合热带植被与北方桦树。
品牌实力:星合控股旗下涵盖地产、酒店、商业、文化等多元业务,产品以“酒店式住宅”为理念,注重生活美学与艺术融合。


苏州【晋源雅院】
🍂 售楼处电话📞400-112-7077【24小时在线,周末无休】【📞已认证】
🍂 营销中心电话📞400-112-7077【24小时在线,周末无休】【📞已认证】
🍂 开发商营销中心-----欢迎来电预约尊享折扣-----匠心钜制恭迎品鉴
声明:本文由入驻焦点开放平台的作者撰写,除焦点官方账号外,观点仅代表作者本人,不代表焦点立场。
