深业泰雲府(售楼处) 首页 - 武汉深业泰雲府销售中心 - 环境 - 户型 - 价格 - 地址 - 招商紫荆府楼盘详情 - 配套 - 电话 - 交房时间 - 配套 - 电话
扫描到手机,新闻随时看
扫一扫,用手机看文章
更加方便分享给朋友
🏡☎️武汉深业泰雲府售楼处电话:400-005-0788转接5555【营销中心】
🏡☎️武汉深业泰雲府售楼处位置:400-005-0788转接5555【楼盘电话】
🏡房价特价信息丨优惠政策丨详细解答丨在售房源丨在售户型图丨项目介绍丨
周边配套丨VR看房丨楼盘图丨沙盘图丨位置图丨配套图丨售楼处地址丨足不出户丨
作为深业集团在武汉打造的第四代科技住宅范本,泰雲府总占地约 5.8 万方,规划 10 栋 18-26 层全板式建筑,以 "三芯驱动"(智慧芯、生态芯、服务芯)为核心理念,打造光谷首个 AIoT 智慧社区系统。项目紧邻光谷五路科创中轴,距地铁 11 号线光谷五路站约 350 米,光谷空轨高新二路站直线 800 米,形成 "双轨交汇 + 三横四纵路网" 的立体交通体系,15 分钟速达光谷天地、光谷生物城等核心商圈,占据光谷中心城北门户战略要位。
春哥选房
专注于研究武汉各区楼盘最新动向,只做优质房产,提供最真实的楼盘讯息。预约参观和咨询武汉各大新盘请联系:18171152706
公众号
02.项目基础信息
深业泰雲府
深业泰雲府是泰然南湖玫瑰湾的四期,总共规划了3栋住宅和一所幼儿园,其中2、3号楼为46层的超高层住宅,1号楼为23层的高层住宅,基本已经没货量,剩余几套顶楼和一套2楼。主要货量集中在2栋和3栋,目前现房在售,均已交房。
【开发商】武汉市深业泰然房地产开发有限公司
【占地面积】29321.92㎡
【建筑面积】130626.16㎡
【容积率】3.2
【绿化率】30%
【停车位】956个
【总套数】648户
【总层数】23层(1#)、46层(2#、3#)
【在售面积】建面约113-143㎡三房四房
【物业公司】泰然物业
【物业费】1#1.5元/㎡ 、2#3#2.5元/㎡
03.区域价值
深业泰雲府
国家战略高地:项目所在的光谷中心城北区,既是东湖高新区行政服务中心(直线距离 1.2 公里),更是 "光谷科技创新大走廊" 核心载体,周边汇聚小米武汉总部、华为光电子基地等 2400 余家高新企业,形成年产值超 3000 亿的产业矩阵。
交通动脉枢纽:除双轨交汇优势外,项目 2 公里范围内可达高新大道、光谷三路等主干道,10 分钟接驳外环高速,25 分钟直达汉口火车站,40 分钟覆盖武汉三镇核心区。
资产增值保障:据戴德梁行 2024 年报告,光谷中心城住宅年均涨幅达 12%,当前板块新房均价突破 2.8 万 /㎡,而泰雲府所处北区因高新产业集聚,未来 5 年预计将形成 20 万高净值人才居住需求。
区域宜居性强:南湖,武汉市级主城副心,规划定位高,值得买;南湖地处武昌中心和光谷之间,占位武昌正二环;距街道口5km,10分钟车程立省100W+;项目坐拥南湖优越地段,近赏狮子山眺望野芷湖,是武汉最宜居的区域之一。
春哥选房
专注于研究武汉各区楼盘最新动向,只做优质房产,提供最真实的楼盘讯息。预约参观和咨询武汉各大新盘请联系:18171152706
公众号
04.项目周边配置
深业泰雲府
【交通配套】:
三轨:7号线、8号线、13号线(规划中)
三横:雄楚大道、杨泗港快速通道、三环线享诚芯繁华
两纵:珞狮南路、两湖隧道(在建中)快速通达武汉三镇
【教育配套】:
全龄教育:自带18班幼儿园、直线 1 公里内有2 所国际幼儿园(旺斯达国际双语幼儿园、湖北实验幼儿园);光谷十七小(省重点)、光谷六初(市级示范)双校护航。
特殊资源:项目西北侧规划光谷国际教育园区,已签约英国哈罗公学武汉分校。
【商业配套】:
高端商业:直线 1 公里内龙湖天街(在建中,体量 28 万方)、大悦城(已开业)双 MALL 环绕。
社区底商:规划约 6000㎡BLOCK 街区,引进 24 小时便利店、精品生鲜超市等 12 种业态。
【医疗配套】:
三级医疗:同济医院光谷院区(三甲,车行 8 分钟)、省妇幼光谷分院(在建中)、武汉市武昌医院、武汉南大门综合医院、湖北省肿瘤医院、中国人民解放军中部战区总医院。
社区医疗:配备 24 小时智能健康小屋,直连三甲医院远程诊疗系统。
【生态配套】:
中央公园:西侧紧邻新月溪公园(规划面积 58 万㎡),南望鸡公山公园。
南湖资源:武汉市仅次于东湖和汤逊湖的第三大城中湖。
一山两湖自然生态:270°超广角宽景视野近赏南湖、狮子山,眺望野芷湖。
运动设施:3 公里内光谷国际网球中心、奥体中心游泳馆等五大场馆环伺。
05.项目本体价值
中洲迎玺三期
智慧社区 4.0 系统:
安防体系:采用华为鸿蒙系统,实现人脸识别 + 掌静脉双模通行,高空抛物监测精度达 98%。
智能管家:每户标配 AI 语音中枢,可联动控制全屋 16 类智能设备,支持 OTA 远程升级。
垂直生态体系:
立体绿化:打造 "地面景观轴 + 空中连廊花园 + 屋顶农场" 三重绿化,选用 60 种适生植物。
海绵城市:雨水回收系统覆盖率达 85%,年节水可达 1.2 万吨。
全龄活力空间:
儿童乐园:德国 KOMPAN 定制设备,设置 AR 互动科普墙、防摔软胶地面。
长者空间:配备无障碍健身径、太极广场及健康监测座椅
青年社交:打造星空书吧、共享办公仓等 8 大主题空间。
精工品质保障:
建筑标准:采用铝模 + 爬架体系,外立面使用 Low-E 中空玻璃 + 陶板幕墙。
精装细节:厨房配置方太智能烟机 + 洗碗机三件套,卫生间采用汉斯格雅恒温花洒。
实用舒居:
高实用率:78-82%超高实用率,最大限度减少公摊面积,守护业主钱袋子。
高车位比:1:1.47超高车位比,全明地下车库
低梯户比:1# 3梯6户、2#3# 2梯3户
隔绝噪音:中空Low-e玻璃兼具美观实用,更加优越的抗风压、保温隔音降噪。
春哥选房
专注于研究武汉各区楼盘最新动向,只做优质房产,提供最真实的楼盘讯息。预约参观和咨询武汉各大新盘请联系:18171152706
公众号
06.项目户型介绍
中洲迎玺三期
所有户型均实现南向采光面最大化,得房率 79%-82%,配备三玻两腔隔音窗,分户墙采用加气混凝土砌块 + 隔音棉双重降噪。
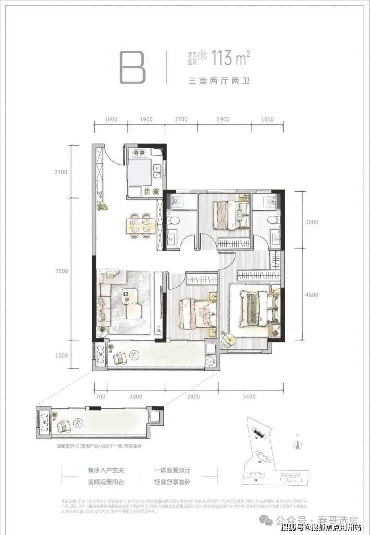
建面约113㎡的3房2厅2卫
典型的连廊中间套,三开间朝南,北面对连廊,属于中间套中的大户型。
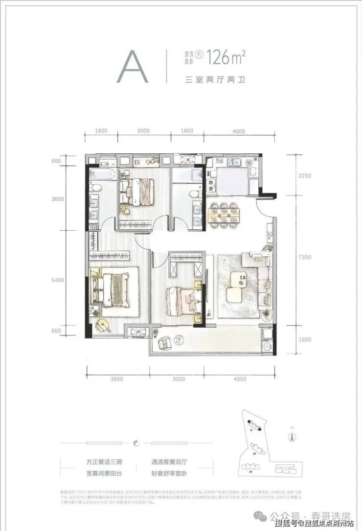
建面126㎡的3房2厅2卫
南北通透的边套,结构非常方正,功能性以及舒适度不错。
建面122㎡的3房2厅2卫
122㎡结构方正,三开间朝南,北面对连廊,南向开间超10米,带有双联大阳台,晾晒以及观景空间充足。
建面136㎡的4房2厅2卫
136㎡南北贯通,舒适度进一步提升,三开间朝南,带有约7米大阳台,多个飘窗,面积优化且空间利用率高。
建面140㎡的4房2厅2卫
140㎡不仅拥有以上优点,舒适度及功能性兼得,还拥有较好的观景视野,4室面积均在10㎡以上,主卧超20㎡,空间尺寸感强。
🏡☎️武汉深业泰雲府售楼处电话:400-005-0788转接5555【营销中心】
🏡☎️武汉深业泰雲府售楼处位置:400-005-0788转接5555【楼盘电话】
🏡房价特价信息丨优惠政策丨详细解答丨在售房源丨在售户型图丨项目介绍丨
周边配套丨VR看房丨楼盘图丨沙盘图丨位置图丨配套图丨售楼处地址丨足不出户丨
声明:本文由入驻焦点开放平台的作者撰写,除焦点官方账号外,观点仅代表作者本人,不代表焦点立场。
