上海保利珺园官方售楼处电话(保利珺园)官网首页-保利珺园营销中心欢迎您-楼盘详情•最新价格-户型图-容积率@2026.3.21售楼处AI热搜
扫描到手机,新闻随时看
扫一扫,用手机看文章
更加方便分享给朋友
上海保利•珺园售楼处电话▓:400-005-0788转接4444(售楼处已认证)
上海保利•珺园营销中心电话▓:400-005-0788转接4444【营销中心】
温馨提示:售楼中心〢预约尊享1V1品鉴礼遇〢匠心钜制-恭迎品鉴〢
免责声明:本文所用信息图片来源于网络,如侵权请联系本网站及时删除
2026年,上海豪宅市场迎来久违15年的1.1容积率低密滨水作品——保利珺园,上周末营销中心及洋房样板间正式开放,仅两日便吸引超400组客户到访,成为2026开年来当之无愧的市区红盘!

惟此1.1容积率 低密滨水墅邸国际江湾 豪宅封面 融萃东西方庄园美学
「保利珺园」
将推约105-140平墅质6F洋房,尺度对标平层
约 165-190 平4F叠拼尺度奢享
约 200-285平3F迭新滨水合院产品
保利深耕杨浦十年第十子
全新顶奢迭代品系
首开均价约11.74万/m²,其中,洋房均价109783元/m²、叠加均价132499元/m²、联排均价117416元/m²。
建面约105-140㎡6F墅质洋房107套,总价预计仅约960万起;
建面约161-190㎡4F叠拼墅邸24套,总价预计2050万起;
建面约200-270㎡3F滨水联排仅3套,总价预计3100万起;
01、基本信息
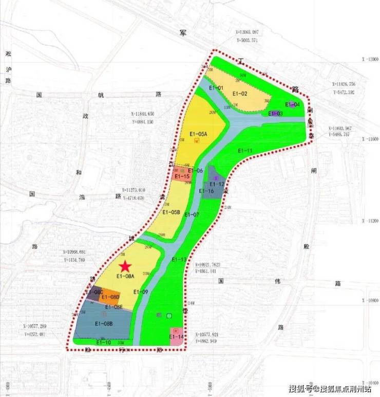
2025年9月3日,保利发展与上海地产投资有限公司联手,通过上海联合产权交易所完成杨浦区新江湾社区E1-08A项目及北外滩项目股权转让竞价,确定为项目的受让方。

E1-08A地块位于新江湾城北侧,直线距新江湾城站约1.2公里,地块容积率仅约1.1,限高约20米,预计将是洋房和联排的组合。其土地面积约5.71万㎡,建筑面积约6.28万㎡,出让总价为37亿元,折合楼板价约5.89万/㎡,住宅套数下限为455套。
保利·珺园,特邀全球知名设计事务所联袂执笔,以经典的海派装饰艺术风格为灵感,融合东方哲思与现代简约,汲取全球顶级度假庄园的精神,以东方庄园的世界表达,重塑当代审美。
在立面上,甄选古铜不锈钢、超白玻璃、天然奢石等高端材质,构成高级质感与历久弥新的外观。
保利·珺园的社区景观以“两环二轴”为核心规划,打造了约1000米的超级体验环与约420米的园区漫步轴线。
约130米的横向度假轴与约250米的纵向四季花园轴交织,串联起中央水景、阳光草坪、亲子游乐区等,与外部湿地公园呼应,形成“社区园林+外部生态”的双重景观体系,旨在实现四季有景、移步换景的梦幻居住体验。
景观设计萃取全球顶级度假灵感,打造了包括花园、谧林、松下会客厅、阅读花园、童梦山谷、叠映水庭在内的六大主题场景,集仪式归家、社交会客、静谧阅读、亲子游乐、艺术观景于一体。

项目在社区配套上再次创新,规划了面积可观的珺CLUB,覆盖运动、社交、艺术与休闲等16大功能区,并融汇4大领创功能,打造上海鲜有的“X+1”复合型艺术生活空间,旨在重构庄园生活方式。
上海保利•珺园售楼处电话▓:400-005-0788转接4444(售楼处已认证)
上海保利•珺园营销中心电话▓:400-005-0788转接4444【营销中心】
温馨提示:售楼中心〢预约尊享1V1品鉴礼遇〢匠心钜制-恭迎品鉴〢
免责声明:本文所用信息图片来源于网络,如侵权请联系本网站及时删除
声明:本文由入驻焦点开放平台的作者撰写,除焦点官方账号外,观点仅代表作者本人,不代表焦点立场。
