武汉南山·锦宸售楼处电话→武汉南山·锦宸24小时电话→武汉南山·锦宸2025最新房价→武汉南山·锦宸楼盘百科详情
扫描到手机,新闻随时看
扫一扫,用手机看文章
更加方便分享给朋友
武汉南山锦宸售楼处电话▓:400-002-9578转接4444(售楼处已认证)
武汉南山锦宸营销中心电话▓:400-002-9578转接4444【营销中心】
温馨提示:售楼中心〢预约尊享1V1品鉴礼遇〢匠心钜制-恭迎品鉴〢
免责声明:本文所用信息图片来源于网络,如侵权请联系本网站及时删除
南山锦宸,占地面积约2.18万方,总建面约6.6万方,容积率约2.1,共449户,机动车停车位561个,车位比1:1.25,包含2栋高层,1栋小高层以及建面约1214平米商业,3001平米养老用房。
推售阶段:主推1号楼,2、3号楼待推售,现房。

项目地址: 武汉光谷·民族大道·华师一附中旁(周店四路与渔帆路交汇处)
开发商:南山地产(深圳上市国企)
物业:深圳赤湾物业(一级资质)
产品类型:住宅
产权年限:住宅70年
水费:民水
电费:民电
物业费:3.54元/㎡/月
交房时间:现房
交房标准:毛坯
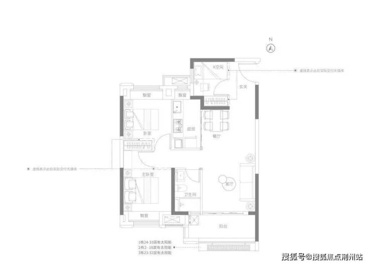
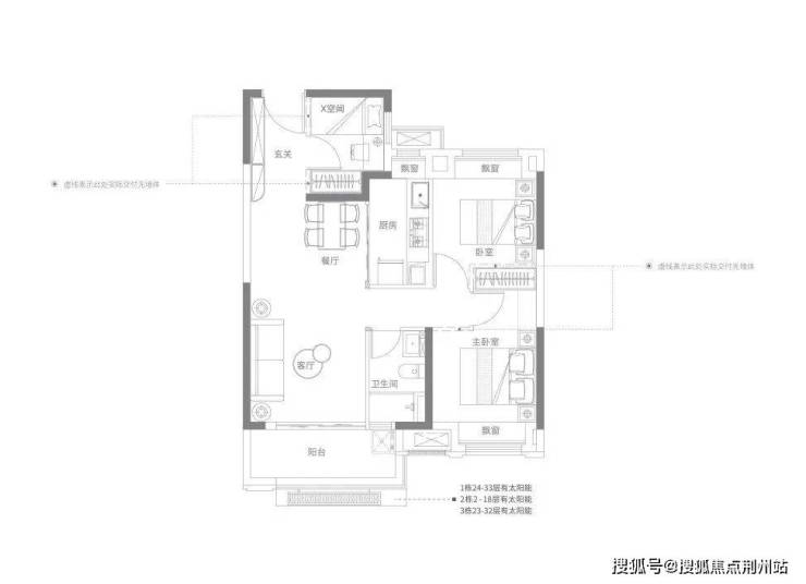
在售情况:88㎡
均价:折后10200元/㎡
户型图展示:
样板间:

区位:南山锦宸位于光谷民族大道三环线交汇处以西,周店四路与渔帆路交汇处,在楼市划分中属于光谷民族新城板块,行政划分属于东湖高新区,属于三环边。项目区位图
交通出行:自驾:项目距离三环线比较近,从附近的华师园路可以连接民族大道,快速上三环,上三环后,就可以通往光谷、武昌、汉阳等核心区,沿民族大道可以直达光谷广场。
区域内暂时无地铁,项目距离规划的9号线华师园路站最近,步行距离800多米,附近有公交572路,可以直达光谷广场与2号线换乘。另外,789路公交可以直达软件园以及金融港。
配套:商业上,小区自带一个生鲜超市,小区周边的社区商业比较成熟,日常所需没有问题,板块内有一个韵湖星光商业,距离项目直线距离约600多米。
三环内的光谷天地、光谷K11、保利国际中心等自驾也比较近,另外,小区附近有公交可以直达光谷广场。
教育上,项目自带一所幼儿园,区域内有一个九年一贯制学校华师汤逊湖学校,2018年开学,现在普高率已经超过60%,是一个潜力股学区房。
华师一附中光谷汤逊湖学校同时,附近还有武汉枫叶国际学校,以及湖北省师范中学——华师一附中。
武汉枫叶国际学校
华中师范大学一附中医疗上,区域内有武汉市第三医院光谷院区,以及湖北省中医院光谷院区,均是三甲医院。
休闲娱乐上,项目南面约400多米就是武汉最大的社区型湖泊公园韵湖公园,该公园占地300亩,体量非常大,另外汤逊湖距离小区也比较近。
武汉南山锦宸售楼处电话▓:400-002-9578转接4444(售楼处已认证)
武汉南山锦宸营销中心电话▓:400-002-9578转接4444【营销中心】
温馨提示:售楼中心〢预约尊享1V1品鉴礼遇〢匠心钜制-恭迎品鉴〢
免责声明:本文所用信息图片来源于网络,如侵权请联系本网站及时删除
声明:本文由入驻焦点开放平台的作者撰写,除焦点官方账号外,观点仅代表作者本人,不代表焦点立场。
