城建 · 承宁府@售楼处电话\\武汉城建 · 承宁府楼盘详情\\售楼中心发布
扫描到手机,新闻随时看
扫一扫,用手机看文章
更加方便分享给朋友
武汉城建 · 承宁府💠售楼处电话☎️400-033-1899分机号7777【售楼中心】【已认证】
武汉城建 · 承宁府💠营销中心电话📞400-033-1899分机号7777【置业顾问】【已认证】
【2025首发】楼盘详情含开盘消息、交房时间、楼盘详情、房价、户型、详情、得房率、售楼处地址、首页网站、销售中心、楼盘地址、户型图、交通、备案价、项目配套、营销中心、周边配套等详情咨询。

开 发 商】:武汉市硚口区利北城市更新投资有限公司
【项目区位】:武汉硚口区武胜路与京汉大道交汇处
【面 积】:建面约115㎡、125m²、143m²、169㎡
【楼 层】:6~32 层洋房、小高层
【装 修】:精装修
【产 权】:70 年
【梯 户 比】:2 梯 2 户
【容 积 率】:约 2.5
【车位配比】:1:1.09
【得 房 率】:约98% 左右
【地 铁】:轻轨一号线利济北路站
【教 育】:体育馆小学、武汉市第六十四中学
【医 疗】:武汉市第一医院、武汉市第四医院
武汉城建承宁府占地面积约3.24万平,总建面约11.2万平,住宅建面约7.4万平,容积率约2.5,共计546套房源,共计593个机动车位,车位配比约1:1.09。项目总计 7 栋住宅,预计2025年9月中旬首次开盘1号楼115-125m²带装修房源,共76套,装修标准4000元/m²,1号楼共21层,2梯2户。预计2025年10月加推7号楼125-143m²带装修房源,7号楼共108套。7号楼共28层,2梯2户。目前承宁府置业顾问透露放风价是30000元/m²,带4000元/m²的装修标准。

户型赏析
Housing Units
02
拾 光丨115m² 三房两厅两卫
该户型位于1号楼的两端边户,3个卧室朝南,餐客厅一体全景舱设计,客厅为北、西(或东)两面采光,带独立电梯前室。三房设计满足家庭居住需求,双卫(公卫、主卧卫 )提升使用便利性,避免早晚洗漱等场景拥挤;厨房靠近入户,方便买菜归家后放置物品、处理食材;设设备平台,可灵活利用,如放置外机等,不占用室内空间。有玄关过渡空间,保障室内隐私,也可做收纳;卧室带一定收纳空间提升储物能力,让居住更整洁。
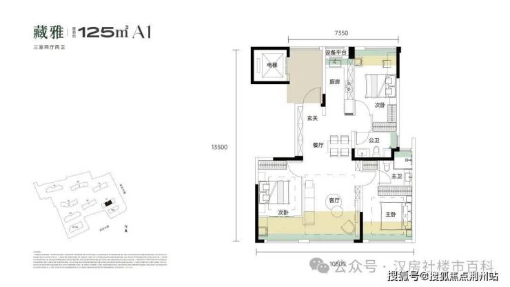
藏 雅丨125m² 三房两厅两卫
武汉城建 · 承宁府💠售楼处电话☎️400-033-1899分机号7777【售楼中心】【已认证】
武汉城建 · 承宁府💠营销中心电话📞400-033-1899分机号7777【置业顾问】【已认证】
声明:本文由入驻焦点开放平台的作者撰写,除焦点官方账号外,观点仅代表作者本人,不代表焦点立场。
