新盘必买:无锡溪山雲庐售楼处电话→无锡溪山雲庐Ai热搜24小时电话→2025最新房价→楼盘百科详情→售楼处更新发布@售楼处中心
扫描到手机,新闻随时看
扫一扫,用手机看文章
更加方便分享给朋友
🌈无锡溪山雲庐售楼处电话☎️400-002-9578转接5555(专人接听)
🌈无锡溪山雲庐营销中心电话:☎️400-002-9578转接5555【营销中心】
🌈温馨提示:拨打400电话,听到嘀声后,输入分机号5555即可!


产品力升级
纯新盘神仙打架
无锡最近一批即将上市的豪宅,卷得太厉害了!
比如,恒隆府。
恒隆府位于三阳广场旁,地段就不用多说了,无锡核芯中的核芯。
项目由1栋188米,1栋211米超高层塔楼组成,T1御峯建筑面积约310-360㎡,T2皓日建筑面积约105-185㎡。提供573个居住单元及约1000个停车位,项目产权是60年。
项目将于下周公开实体样板房,感兴趣的朋友可以关注一下。
恒隆府效果图
恒隆府的建筑立面是以“曲面屏”设计惊艳亮相的高端住宅。项目将金色铝板与玻璃幕墙以柔美曲线交织,勾勒出如丝绸般流淌的建筑轮廓。
这种“克制的丰富”,不仅是对当代先锋审美的回应,更暗含东方哲学中“厚积薄发”的智慧。
恒隆府效果图
🌈无锡溪山雲庐售楼处电话☎️400-002-9578转接5555(专人接听)
🌈无锡溪山雲庐营销中心电话:☎️400-002-9578转接5555【营销中心】
🌈温馨提示:拨打400电话,听到嘀声后,输入分机号5555即可!
项目大堂、会所及地库落客区,均为新加坡WJ设计,设计风格偏现代奢华。
地下大堂地面及墙面选用了“夜里雪”、“帕斯高灰”、“路易斯灰”大理石等多种珍稀奢石,每一块石材都经过精心的挑选与切割,纹理自然而独特。
恒隆府效果图
T1御峯打造天际高尚会所,汇聚全球高端生活方式,媲美顶奢酒店。规划了天阶恒温泳池、空中酒廊、健身瑜伽房、私宴厅、威士忌雪茄室,可以在这里举办家宴,或是接待合作伙伴,私享无锡顶流圈层社交。
恒隆府效果图
比如,绿城·崇宁府。
该地块位于梁溪区新生路与崇宁路交叉口东北侧,是龟背城核芯位置,恒隆广场、苏宁广场、百盛购物中心、八佰伴等优质商业集聚;地铁1、2、6(在建)号线贯穿全境,未来3条地铁线路快速通达全城。
坐拥解放路、中山路等多条城市干道;近享无锡中央车站,城市城际出行畅通无忧;连元街小学、东林小学、崇宁路实验小学等无锡重点头部学校云集,优教体系一步到位。

2024年无锡第5批次集中土地中,小娄巷南侧地块被鸿地地产拿下,成交楼面地价23307元/㎡,刷新无锡土拍成交记录。
绿城·崇宁府择址龟背之源,以约1.009低容积率,规划打造33席传世府院。
目前崇宁府小娄巷街区46号(谈氏宗祠旁)的城市会客厅正式公开!
绿城·崇宁府鸟瞰图
从效果图来看,外立面采取了现代东方的美学设计,巧妙运用石材、玻璃幕墙和金属等多种材质,石材的厚重、玻璃幕墙的通透、金属的质感、传统元素的运用,既彰显了东方文化的深厚底蕴,又透露出风雅格调。

设计过程稿,仅供参考,不作为交付承诺
绿城·崇宁府以宋代《营造法式》为蓝本,以传统歇山顶重现宋风建筑的恢弘气韵。
鱼鳞瓦轻盈层叠如诗行般流淌着东方韵律,赋予建筑尊崇的仪式感。
而现代材质的精妙运用,则让传统与当代在此交融,既沉淀千年文脉的深邃,又焕发风雅格调的灵动,成就文脉源点之上的当代传世藏品。

设计过程稿,仅供参考,不作为交付承诺
比如,天澜映象。延展阅读:绝了!刚刚无锡经开四代宅,户型图曝光
天澜映象位于经开区震泽路与南湖大道东南侧,这里汇聚了城市的顶级资源!
🌈无锡溪山雲庐售楼处电话☎️400-002-9578转接5555(专人接听)
🌈无锡溪山雲庐营销中心电话:☎️400-002-9578转接5555【营销中心】
🌈温馨提示:拨打400电话,听到嘀声后,输入分机号5555即可!
容积率约1.6,规划4栋第四代住宅小高层,8栋8层、2栋10层花园洋房,精心打造了建面约125㎡、147㎡花园洋房和建面约172㎡、235㎡第四代住宅。
售楼处预计将于本月底公开,同步公开建面约125、147㎡洋房实体样板间。
天澜映象鸟瞰图
近期,天澜映象建面约172㎡第四代住宅户型图正式曝光!得房率达到113%-116%!
建面约172㎡四代住宅奇数层:南向开间最大可达约17.3米,这样尺度在同面积段产品力堪称拔尖的存在!动静分离,没有太多空间浪费,露台超高赠送,得房率肉眼可见的高。
采用奇偶层错层设计,保证了私密性和采光性,主卧270°露台,形成无遮挡的全景视野。并且露台配置滴灌系统,节约不浪费。
天澜映象户型图
建面约172㎡四代住宅偶数层:户型方正,北露台与餐厅相邻,南露台与客厅连通,实现真正南北通透,这种采光感、通透性,在无锡市场几乎碾压级的存在。层高达到约3.15米,加上双层挑高的布局,户户拥有高达6.3米的挑高露台。
四开间朝南设计,南向面宽约15.9米;主卧套房设计,270°L型飘窗,纵享开阔视野与充足采光。
天澜映象户型图
再比如,山水·蟠珑。
项目位于山水城核芯,集萃2座5A级景区、1座4A级景区18座开放式公园,自然、人文、文旅资源聚集,定义无锡山水中轴与文旅圣地。
项目容积率约1.03,将打造34栋产品,建筑面积约367-660㎡纯法式合院 。
已公开万象城城市展厅,预计很快公开售楼处。
山水·蟠珑鸟瞰图
溯源卢浮宫东立面、巴黎皇家宫殿,保留1:1:6 黄金比例的经典塔司石材立柱;参照卢浮宫三段式古典构图,全石材立面,对称式布局,极富古典气韵。
山水·蟠珑效果图
五大空间场景,【尊贵入口形象】-【礼仪迎宾轴线】-【高奢主题花园】-【定制私墅景观】-【自然滨水绿带】,让每一次归家都成为穿越时空的礼遇。
近1000m²地下会所,对标世界级高奢酒店设计,聚合健身房、私宴厅、室内泳池等功能空间,和鸣塔尖生活志趣。
山水·蟠珑效果图
户型设计上,花园入户,部分户型南北双花园;户户有露台,部分户型南北双向露台;半围合式设计,隔绝外界纷扰;约6m挑高地下室,聚合多元功能。全套房设计,独立书房、会客厅等,私密有度。
🌈无锡溪山雲庐售楼处电话☎️400-002-9578转接5555(专人接听)
🌈无锡溪山雲庐营销中心电话:☎️400-002-9578转接5555【营销中心】
🌈温馨提示:拨打400电话,听到嘀声后,输入分机号5555即可!
山水·蟠珑效果图
近期,项目户型图正式曝光!
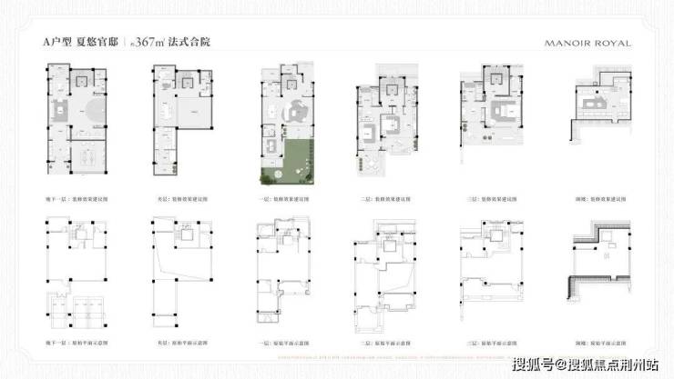
建面约367㎡夏悠官邸:
山水·蟠珑户型图
建面约439㎡卢浮官邸:
山水·蟠珑户型图
建面约535㎡凡尔赛官邸:
山水·蟠珑户型图
建面约660㎡枫丹白露官邸:
🌈无锡溪山雲庐售楼处电话☎️400-002-9578转接5555(专人接听)
🌈无锡溪山雲庐营销中心电话:☎️400-002-9578转接5555【营销中心】
🌈温馨提示:拨打400电话,听到嘀声后,输入分机号5555即可!
声明:本文由入驻焦点开放平台的作者撰写,除焦点官方账号外,观点仅代表作者本人,不代表焦点立场。
