点击查看>【武汉联投长江天元售楼处电话】楼座信息-得房率-售楼处位置丨价格详情-提前来电了解楼盘热销户型及优惠详情!

搜狐焦点荆州站 2025-09-24 15:03:19
用手机看
扫描到手机,新闻随时看

扫一扫,用手机看文章
更加方便分享给朋友

🌈武汉联投长江天元售楼处电话☎️400-002-9578转接5555(专人接听) 🌈武汉联投长江天元营销中心电话:☎️400-002-9578转接5555【营销中心】 🌈温馨提示:拨打400电话,听到嘀声后,输入分机号5555即可!

🌈武汉联投长江天元售楼处电话☎️400-002-9578转接5555(专人接听)

🌈武汉联投长江天元营销中心电话:☎️400-002-9578转接5555【营销中心】

🌈温馨提示:拨打400电话,听到嘀声后,输入分机号5555即可!

一、楼栋规划与户型设计

根据规划,联投时代中心共规划3栋住宅,总高42-43层,以及1栋写字楼、多栋集中式商业街区。

项目首开2号楼、3号楼,2号楼主推建面约180㎡户型,3号楼主推建面约130㎡、140㎡、170㎡户型。

①130㎡户型:三房两厅两卫,3号楼中间户,南北通透,三开间朝南;户型本身的布局还是比较方正的,并且有多处优化空间,厨房外还带一个生活阳台,可以用于后期晾晒,保留客厅阳台的纯粹性。但这一户型北面为连廊,加上客厅朝南设计,基本上没什么看江视野,主打优势是面积小,总价门槛低(项目内最低门槛)

🌈武汉联投长江天元售楼处电话☎️400-002-9578转接5555(专人接听)

🌈武汉联投长江天元营销中心电话:☎️400-002-9578转接5555【营销中心】

🌈温馨提示:拨打400电话,听到嘀声后,输入分机号5555即可!

②140㎡户型:四房两厅两卫,该户型南北通透、三开间朝南;因为3号楼的楼栋朝向、位置,属于北向看江,因此,这一户型的北面房间——次卧、儿童房拥有还不错的看江视野(中高楼层以上房源)。客厅空间相当的开阔,动静分区做的也比较好。

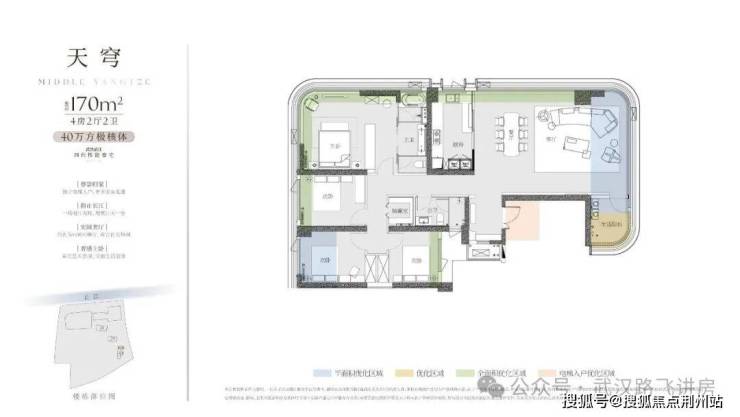
③170㎡户型:四房两厅两卫,整个户型的布局与江面基本平行了,对比3号楼另外两个户型,170平户型的看江效果要优秀不少,客厅(270度观景)、主卧、主卫、厨房这几处空间都拥有不错的江景视野,观景面还是比较可观的。不过为了看江,这个户型的进深做的比较大,通透性稍显不足。

🌈武汉联投长江天元售楼处电话☎️400-002-9578转接5555(专人接听)

🌈武汉联投长江天元营销中心电话:☎️400-002-9578转接5555【营销中心】

🌈温馨提示:拨打400电话,听到嘀声后,输入分机号5555即可!

④180㎡户型:四房两厅三卫,客厅、北向次卧拥有非常不错的看江视野,并且客厅可以270度观景;另外,东头这一户型的生活阳台、主卧套房也可以看江,观江面更大。但东头户型离3号楼较近,低楼层采光可能有所影响。

⑤240㎡户型:四房两厅三卫,项目最大户型,不光观江视野最好,价格肯定也是最贵的。这户型南北通透,南边采光面挺宽,客厅是约12米的超级大横厅,还做了270度转角设计,能270度看江,就连旁边的主卧套房也能看江,能看江的地方特别多。不过选房源要注意,1号楼西边户旁边挨着写字楼,主卧看江的角度会受点影响,比起来还是东边户看江的角度更大些。

🌈武汉联投长江天元售楼处电话☎️400-002-9578转接5555(专人接听)

🌈武汉联投长江天元营销中心电话:☎️400-002-9578转接5555【营销中心】

🌈温馨提示:拨打400电话,听到嘀声后,输入分机号5555即可!

声明:本文由入驻焦点开放平台的作者撰写,除焦点官方账号外,观点仅代表作者本人,不代表焦点立场。