中海姑苏第官方网站-中海姑苏第售楼处电话-中海姑苏第楼盘详情-交房时间-地址-最新房价户型图-小区环境-楼盘详情-交房时间-周边配套-售楼处电话
扫描到手机,新闻随时看
扫一扫,用手机看文章
更加方便分享给朋友
苏州中海姑苏第售楼处电话:400-005-0788转6666(已认证)
苏州中海姑苏第开发商电话:400-005-0788转6666【售楼中心】
温馨提示售楼中心〢预约尊享1V1品鉴礼遇〢匠心钜制-恭迎品鉴〢
温馨提示本项目暂不接受临时到访,过来参观样板房请记得提前来电预约!
基本信息
总占面积:约1.6万方
总 户 数 :186套
容 积 率 :1.8
绿化面积:约30%
车位配比:约1:2(371个)
物业服务:中海物业
产品类型:6栋14-17F小高层
产品面积: 130m²(三房两厅两卫)、155m²(四房两厅两卫)、180m²(四房两厅三卫)
装修标准:精装修交付
项目位于姑苏区胥江板块,紧邻龙湖胥江天街。所在地块苏地2023-WG-49号地块于今年9月1日,由中海在线下摇号环节竞得,成交楼面价28750元/㎡,溢价率15%;中海·姑苏第(备案名:胥涛雅筑)
点击添加图片描述(最多60个字) 编辑
央企中海 更懂姑苏
中海企业发展集团有限公司(以下简称“公司”)隶属于中国建筑集团有限公司,1979年创立于中国香港,1992年在香港联交所上市(股票代码:00688.HK,简称“中国海外发展”),2007年入选恒生指数成份股。公司拥有42年房地产开发与不动产运营管理经验,业务遍布港澳及内地80余个城市及美国、英国、澳大利亚、新加坡等多个国家和地区。
中海物业,上市公司,13个香港政府机构的御用管家,超1/5世界500强公司指定物业服务商。
中海地产深耕苏州19年,在6大区累计开发项目36个,连续多年斩获苏城市场占有率第一名。中海一直是板块的引领者,所谓中海所在中心在,在姑苏区布局了多个代表项目。
胥江府:中海在姑苏区首个作品,也是苏州新中式社区的代表作品。
凤凰熙岸:临近本案,曾多次斩获板块销冠。
竹辉环宇荟:苏州首个滨水园林开放式街区,新晋网红打卡点,引入了苏州最高端的酒店之一金普顿酒店,本案隐奢的设计灵感来源于该酒店的风格。
“两轨六轴“接轨TOD时代
古城之上的城市TOD,突破姑苏天际线,为苏州,重塑人居坐标。中海·姑苏第以TOD双轨交通为引领,擎速未来生活认识,将商业、居住、文化结合一体,突破空间桎梏,随古城澎湃向前。
中海·姑苏第,落子姑苏“城市浓度”高处,帷幄交通、商业、自然等醇熟资源配套,集“通商园游住”为一体的稀缺住区。
通 - 形成“两轨六轴“交通格局:地铁 2 号线 (南北向) 和 5 号线 (东西) ,无缝对接1/3/4号线贯穿苏州东西和南北两大动脉。紧邻劳动路、桐泾南路,链接城市大动脉干将西路、西环、南环人民路,半小时内通达全城。
商 - “邻”距离胥江天街,天街有超30%品牌苏州首店,潮流繁华在侧,多元时尚生活。
园 - 劳动公园下楼即享;漫步胥江步道,沿胥江支流抵达桐泾公园,生活诗意徜徉。
游 - 近邻胥门、盘门、平江路、拙政园、观前街等知名景点,品味苏式慢生活。
住 - 古城高端生活氛围浓厚,项目周边胥江小学、胥江实验中学等在畔;苏州市立医院、苏大二附院等医疗资源,于无声中的照拂家人。
社区规划
点击添加图片描述(最多60个字) 编辑

在产品上,项目以姑苏地脉为基,打造了集“无界、雅筑、桃源、精奢”为一体的 产品价值体系 ,规划有6栋14-17F小高层,建筑面积约130~183㎡隐奢精装大平层。
景观布局
点击添加图片描述(最多60个字) 编辑

中海·姑苏第打破自然与建筑的边界,将外部彩虹河、劳动公园与内部景观相融合,举步即达胥江景观带。 在景观打造上,取义江南古典园林精髓,以水、石、竹 为元素等,打造游心江南的四季景观。
建筑风格
点击添加图片描述(最多60个字) 编辑

汲取苏绣框镜灵感,借鉴竹辉金普顿酒店,以大面积玻璃幕墙,打造琉光美学立面;取意竹叶曲线,构建屋檐造型;同时,双精装酒店式入户大堂,繁华静谧随心切换。
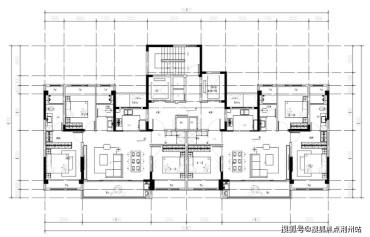
户型鉴赏
约130m²(三房两厅两卫)
点击添加图片描述(最多60个字) 编辑
点击添加图片描述(最多60个字) 编辑

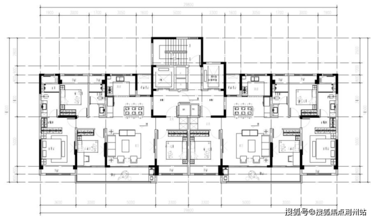
约155m²(四房两厅两卫)
点击添加图片描述(最多60个字) 编辑
点击添加图片描述(最多60个字) 编辑

约180m²(四房两厅三卫)
点击添加图片描述(最多60个字) 编辑
点击添加图片描述(最多60个字) 编辑

苏州中海姑苏第售楼处电话:400-005-0788转6666(已认证)
苏州中海姑苏第开发商电话:400-005-0788转6666【售楼中心】
温馨提示售楼中心〢预约尊享1V1品鉴礼遇〢匠心钜制-恭迎品鉴〢
温馨提示本项目暂不接受临时到访,过来参观样板房请记得提前来电预约!
免责声明(本文章所用信息图片来源于网络,如有侵权请联系本网站及时删除)
声明:本文由入驻焦点开放平台的作者撰写,除焦点官方账号外,观点仅代表作者本人,不代表焦点立场。
