武汉城建·江南岸售楼处电话(武汉城建·江南岸)网站-武汉城建·江南岸营销中心欢迎您-楼盘详情•最新价格-户型图-容积率@2026售楼处AI热搜
扫描到手机,新闻随时看
扫一扫,用手机看文章
更加方便分享给朋友
武汉城建江南岸
🌈🔥售楼处电话 ☎️400-005-0788转接3333【售楼中心】【已认证】
🌈🔥营销中心电话☎️400-005-0788转接3333【营销中心】【已认证】
🌈🔥售楼中心 〢预约尊享1V1品鉴礼遇 〢匠心钜制-恭迎品鉴〢
免责声明:【本文所用信息图片来源于网络,如侵权请联系本网站及时删除】

该项目地块狭长,一字排开,临江面很宽,楼栋基本都是东南朝向,西北向都是一线看江。
值得一提的是,项目被三弓路隔离成了两个地块,其中东侧地块仅2栋楼。且两个地块有独立的大门入口,都位于临江大道边上。

虽然东侧地块较小,不过,两个地块之间规划了一个空中连廊,将两个地块连接,如此一来两个地块的景观资源可共享。

前不久,邦泰璟和的实景示范区刚刚开放,大门,景墙,中岛,水景......展示面还是比较惊艳的。


晚上亮灯之后,看上去还是高大上的:



会所里有棋牌室、KTV、私宴厅、健身房等。




重点来看户型,作为一线江景房,户型设计的怎么样,对江景房来说至关重要。
该项目首开2、3、8号楼,均是两梯两户结构,每栋楼都只有一种户型,不同楼栋定位相对比较纯粹。
其中,2号楼中是建面约140平四房两厅两卫户型:
该户型是整个项目面积最小的户型,主卧、餐客厅朝北看江,观江视野不错。
两个次卧、书房朝南,南向也有一定的日照采光面,相对来说,兼顾了看江和南向日照,舒适度上比江南岸差不多面积的户型略有提升。需要注意的是,主卧紧邻电梯井的不利影响。

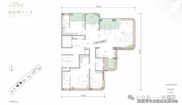
3号楼中则是建面约171平四房两厅三卫户型:
该户型双套房设计,客厅全景舱,有不错的看江视野,餐厅、书房均可看江。
不过比较大的主卧是朝南的,看不了江。好在,北侧还有一个主卧套房可以看江,不过这间套房靠近电梯井,可能有噪音影响。

这个户型跟武汉城建江南岸的大户型有些类似,客厅和主卧都做了全景舱,均有很好的看江视野,需要注意的是西边户的西晒影响。
武汉城建江南岸
🌈🔥售楼处电话 ☎️400-005-0788转接3333【售楼中心】【已认证】
🌈🔥营销中心电话☎️400-005-0788转接3333【营销中心】【已认证】
🌈🔥售楼中心 〢预约尊享1V1品鉴礼遇 〢匠心钜制-恭迎品鉴〢
免责声明:【本文所用信息图片来源于网络,如侵权请联系本网站及时删除】
声明:本文由入驻焦点开放平台的作者撰写,除焦点官方账号外,观点仅代表作者本人,不代表焦点立场。
