2025聚焦:武汉【中海·东湖玖章】售楼处电话→地址→武昌区【中海·东湖玖章】户型→武汉【中海·东湖玖章】价格→楼盘详情→【中海·东湖玖章】最新销售动态
扫描到手机,新闻随时看
扫一扫,用手机看文章
更加方便分享给朋友
武汉中海·东湖玖章售楼处电话▓:400-002-9578转接4444(售楼处已认证)
武汉中海·东湖玖章营销中心电话▓:400-002-9578转接4444【营销中心】
温馨提示:售楼中心〢预约尊享1V1品鉴礼遇〢匠心钜制-恭迎品鉴〢
免责声明:本文所用信息图片来源于网络,如侵权请联系本网站及时删除
楼盘整体数据
中海·东湖玖章共分两期开发,其中一期占地面积约2.19万方,总建面约13.7万方,容积率约4.11,总户数622户,机动车停车位1117个(一期814个,二期303个),非机动车停车位450个(一期221个,二期229个)。
幼儿园位于一期,中小学位于二期。
项目鸟瞰和一期楼栋分布图
项目地址:中北路198号
开发商:武汉中海海融房地产有限公司
产品类型:住宅
产权年限:住宅70年
水费:民水
电费:民电
物业费:待定
交房时间:2026年3月
在售情况:125㎡-175㎡
工科央企 品质生活创领者
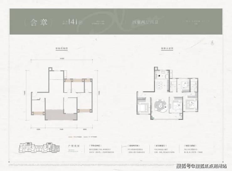
户型图:
区位与交通
区位:
中海·东湖玖章位于中北路和黄鹂路交汇处,在楼市划分中属于中北路板块,行政划分属于武昌区,位于内环线上,属于正内环。
项目区位图
交通出行:
自驾:项目附近既又内环线中北路,距离二环线也很近,走中北路可以直接上二桥到达武汉天地商圈,也可以走沙湖大道过长江隧道到汉口大智路、香港路,走岳家嘴立交可以上二环线,附近还有东湖隧道可以直达光谷板块,自驾非常方便。
地铁:项目附近有两条地铁线路,最近的是地铁4号线东亭站,直线距离约100多米,另外还有8号线的省博湖北日报站,直线距离约800多米,属于双地铁小区。

世界东湖,不止8000公顷悠然湖面,更是比肩黄鹤楼、长江大桥的三大城市名片,昂贵的3公里湖岸线,是国际赛事的城市秀场,是国家外交的政治舞台,是人文历史的国家宝藏。


武汉不缺湖,唯此内环湖。作为武汉传统豪宅版块,高阶圈层于此风云聚汇,出入不凡皆翘楚,进则楚河汉街、SKP奢享繁华,退则秦园东路人间烟火,进退之间尽显从容。

配套:
商业上,小区对面的世纪彩城有一些社区底商,直线距离约800米优一个麦德龙会员店,附近直线2公里范围内有徐东商圈和楚河汉街商圈,包括多个大型商业综合体,像群星城、中商世界里,还有今年年中即将开业的SKP,以及汉街万达广场等等。
skp效果图
教育上,根据拿地要求,小区自带一所幼儿园位于一期,另外还有一块中小学教育用地,在二期,关于这所九年一贯制学校,武昌区教育局负责安排武昌实验中学优质师资力量,预计2026年与住宅同步交付。
武汉中海·东湖玖章售楼处电话▓:400-002-9578转接4444(售楼处已认证)
武汉中海·东湖玖章营销中心电话▓:400-002-9578转接4444【营销中心】
温馨提示:售楼中心〢预约尊享1V1品鉴礼遇〢匠心钜制-恭迎品鉴〢
免责声明:本文所用信息图片来源于网络,如侵权请联系本网站及时删除
声明:本文由入驻焦点开放平台的作者撰写,除焦点官方账号外,观点仅代表作者本人,不代表焦点立场。
