热门推荐|蓝城·虎丘江南里(售楼处)首页网站-蓝城·虎丘江南里|图文详解-楼盘信息-户型图-售楼处电话-周边配套-销售中心—欢迎咨询
扫描到手机,新闻随时看
扫一扫,用手机看文章
更加方便分享给朋友
苏州蓝城虎丘江南里售楼处电话:400-005-0788转6666(已认证)
苏州蓝城虎丘江南里开发商电话:400-005-0788转6666【售楼中心】
温馨提示售楼中心〢预约尊享1V1品鉴礼遇〢匠心钜制-恭迎品鉴〢
温馨提示本项目暂不接受临时到访,过来参观样板房请记得提前来电预约!
项目建筑风格上,汲取新宋风,以现代手法转译!复刻歇山顶、鱼鳞瓦、悬鱼、正脊等八大宋风建筑细节。

园林规划以“一苑一巷一岸”为格局,引水入园,引画入境,精心打造约1200㎡中央景观花苑。

每户均配备1:0.5-1:1赠送,超高得房率;建筑高度与楼间距更以约1:2的黄金比例。

119户!主力面积约255-500平
虎丘江南里目前还没有公开官方户型图,不过项目户型面积段已经出炉,据官方消息,项目共计119户,容积率金1.01,主力户型面积段在255-500平!
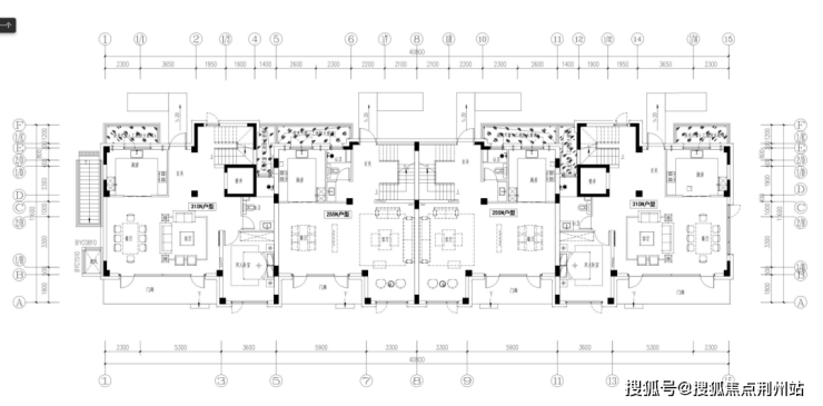
此前公示中,同样公布了两种一层平面图。

平面图上来看,6#是四联排,户型面积分别是310平和255平!

立面图上来看,6#的层高分别为3.5米、3.2米和3米!

平面图上来看,8#是五联排,户型面积分别是270平和255平!

立面图上来看,8#的层高分别为3.5米、3.2米和3米!
全岛墅居!虎丘湿地公园在侧
虎丘江南里,位于相城区黄桥街道华元路南、虎丘湿地公园东,属于黄桥/虎丘湿地公园板块,位置上来说,其实还不错的,整个小区都在一座小岛上,东边连接华元路,西边连接虎丘湿地公园,生态环境非常棒!



从周边配套来看,项目周边还是不错的。
交通上来看,主要还是依赖自驾,项目东侧有路连接华元路,往东连接活力岛和元和板块!南侧靠近阳澄湖西路,也是相城区主干道。
此外北面的中环北线,连接园区和高新区,东面广济北路也是相城区南北向主干道!
苏州蓝城虎丘江南里售楼处电话:400-005-0788转6666(已认证)
苏州蓝城虎丘江南里开发商电话:400-005-0788转6666【售楼中心】
温馨提示售楼中心〢预约尊享1V1品鉴礼遇〢匠心钜制-恭迎品鉴〢
温馨提示本项目暂不接受临时到访,过来参观样板房请记得提前来电预约!
免责声明(本文章所用信息图片来源于网络,如有侵权请联系本网站及时删除)
声明:本文由入驻焦点开放平台的作者撰写,除焦点官方账号外,观点仅代表作者本人,不代表焦点立场。
