中海越湖雲启-售楼处(绍兴)中海越湖雲启首页网站-2025新首页欢迎您-恭候莅临
扫描到手机,新闻随时看
扫一扫,用手机看文章
更加方便分享给朋友
(绍兴)中海越湖雲启
🚩售楼处电话【已认证】🌈 :400-033-1899转接 5555☑️
🚩营销中心电话【已认证】🌈 :400-033-1899转接5555☑️
🌴温馨提示:本项目采用预约制,前来营销中心请提前拨打400热线电话预约,感谢您的配合🌴
尊重土地尊重人文筑造精品”一向是中海地产对待每一块土地的态度。入绍13载,履迹世界的中海地产再次与迪荡C位土地碰撞出绚丽的火花,打造“新台门院墅首作”--中海·越湖雲起。
2025年4月,经过73轮竞拍角逐,中海成功竞得平江路东侧地块。
随后,中海携旗舰级产品“中海·越湖雲起”亮相,这也是全国第六座,绍兴首座“雲起系”产品。

中海·越湖雲起,主打“新台门院墅+四代洋房”双系产品。
其中,四代洋房建面约135-155㎡、新台门院墅建面约195-420㎡。

项目占位迪荡CBD,周边配套一应俱全,尽享城市便利。
东面是迪荡小学、迪荡中学,书香氛围浓郁;西面约250米(直线距离)是梅龙湖,北面约500米(直线距离)是迪荡湖,休闲资源丰富。
直线约1.5公里范围内,还有中关村绍兴水木湾区科学园、世茂天际中心、世茂广场、绍兴百度大厦(在建)、地铁4号线(在建)、越东路高架等,购物、就业、出行皆有保障。

前段时间,项目位于复旦科技园1号楼20层的城市展厅已经开放。
现在,建面约135㎡、155㎡的洋房户型图和建面约195㎡、220㎡的院墅户型图也已亮相。

户型鉴赏
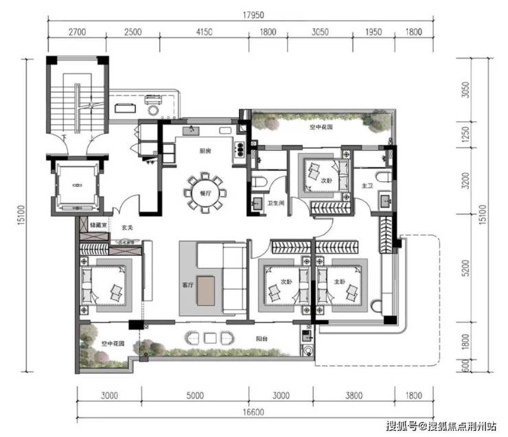
雲栖丨四房两厅两卫
▼ 建面约135㎡户型图 奇数层
▼ 建面约135㎡户型图 偶数层
四叶草布局,整体约11.4米南向采光
客厅约4.6米开间,奢阔尺度
奇数层南向阳台/露台约7.6米,偶数层约8.4米
主卧套房设计,推窗享受双层挑高空中花园
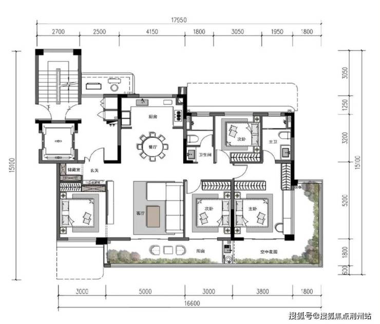
雲幕丨四房两厅两卫
▼ 建面约155㎡户型图 奇数层
▼ 建面约155㎡户型图 偶数层
四开间朝南布局,奇数层整体约14.8米南向采光,偶数层约16.6米南向采光
客厅约5米开间,大平层的享受
奇数层约11米南向阳台/露台,偶数层约8米阳台&超大L型空中花园
主卧全景舱设计,双面采光,享受大自然阳光的沐浴
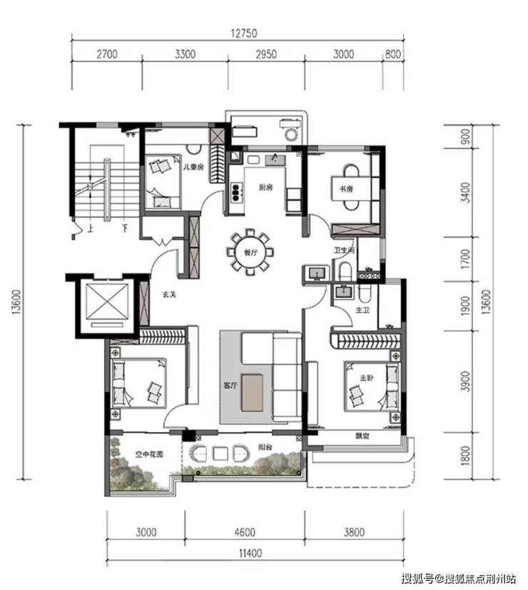
璟雲丨四房两厅三卫
上叠首层:
超15㎡入户花园,侍弄花草,回归生活本真
LDKB一体化,约80㎡家庭私域,阔绰居家排场
约14㎡阔尺U型空间,动线合理,至臻味蕾享受
约12㎡观景阳台,环幕视野,风光尽收眼底
上叠二层:
南向三室设计,阳光平权,关照每位尊贵成员
约18㎡星空露台,无界风光,与天地自然独来往
配备独立淋浴室,阔绰舒适何惧,尽显私密与体贴
主卧套房,步入式衣帽间、豪华卫浴,尊崇格局
行雲丨四房两厅三卫
LDKB一体化,超71㎡奢阔空间,缔造层峯排场
南向双卧套房,独立位于,妥帖关照名仕生活
约42㎡套房,豪华衣帽架、独卫,优雅从容之境
约6.85米南向观景大阳台,奢享四季风光生活
(绍兴)中海越湖雲启
🚩售楼处电话【已认证】🌈 :400-033-1899转接 5555☑️
🚩营销中心电话【已认证】🌈 :400-033-1899转接5555☑️
🌴温馨提示:本项目采用预约制,前来营销中心请提前拨打400热线电话预约,感谢您的配合🌴
声明:本文由入驻焦点开放平台的作者撰写,除焦点官方账号外,观点仅代表作者本人,不代表焦点立场。
